Palazzo Vittoria Building Renovation
ARCHITECTS
Clab Architettura
DESIGN TEAM
Clab Architettura
PHOTOGRAPHS
Andrea Ceriani
AREA
345 m²
YEAR
2025
LOCATION
Bardolino, Italy
CATEGORY
Residential Architecture, Renovation
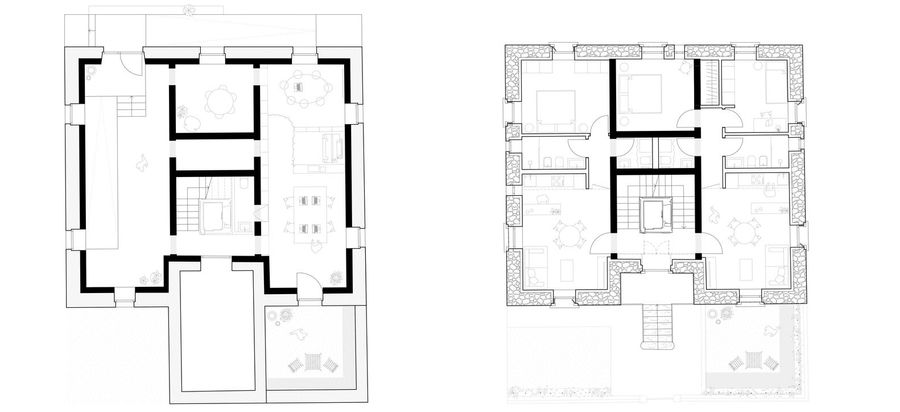
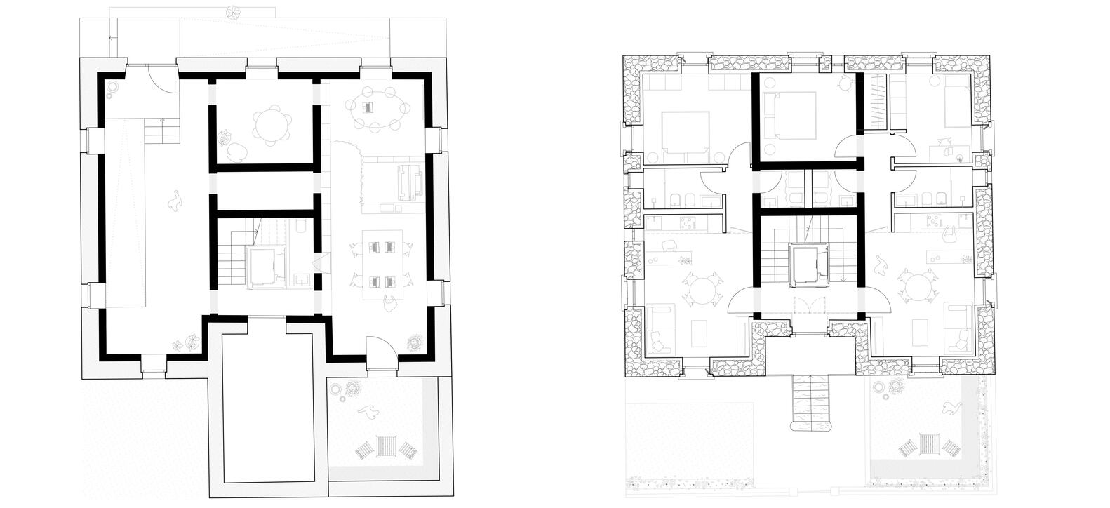
Built around 1925 and located along the tree-lined avenue that once connected Bardolino's town center to the Lake Garda railway station (now dismissed), Palazzo Vittoria has undergone a renovation project aimed at reconciling a conservative approach to the historic structure with a contemporary reinterpretation of both its interior and exterior spaces.
To ensure structural longevity and extend its service life, the building was completely emptied, preserving only the perimeter walls, which were subsequently consolidated using a patented system of high-strength steel bands (Active Stitching System for Masonry Structures).
The new structural framework was completed with the addition of a reinforced concrete basement slab, a vertical core of load-bearing masonry walls, new horizontal floor systems, and, finally, a timber attic forming the crowning roof structure.
The selection of materials, reinforced concrete, cement-based composites, and laminated timber, was intended to evoke, through a contemporary architectural language, the villa's early 20th-century origins, a period marked by the growing use of prefabricated components and concrete elements (such as the original perimeter base walls), among the earliest steps toward the modernization of construction techniques.
The internal layout follows principles of structural and spatial rationalization, resulting in ordered, clearly oriented, and accessible environments, further enhanced by the integration of ramps into the circulation scheme.
Externally, the intervention respected the pre-existing fabric, with the sole exception of a new lower courtyard on the southwestern side of the plot, designed to provide natural light and a private outlook to the basement level.


































