ARCHITECTS
Jorgelina Tortorici & Asociados
LEAD ARCHITECT
Arq. Jorgelina Tortorici, Arq. Nicolás Lanza.
TEAM
Arq. Jorgelina T,ortorici Arq. Nicolas Lanza, Arq. Romina Calzi, Arq. Magali Gigena
PROGRAM
Residential
MANUFACTURERS
EGGER, Blum, Canteras, Carpeal, DE OTRO TIEMPO, Dekton, HYDRA, MSH, Moras Puertas, Roca, SBG, by Europe
LANDSCAPE DESGIN
Cecilia Grant
PHOTOGRAPHS
Alejandro Peral
AREA
4467 ft²
YEAR
2022
LOCATION
Bella Vista, Argentina
CATEGORY
Houses
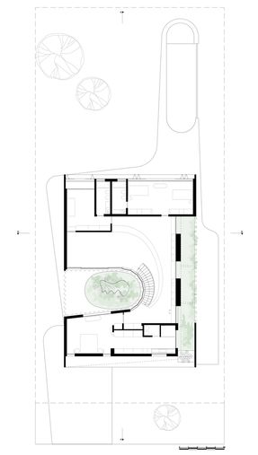
In a gated residential neighborhood, with wooded grounds and traditional houses, “Oval” stands out as a large geometric block that hides an empty space inside.
The project originated with the idea of an oval patio, generating a "U" shape that embraces this space, transforming it into an interior. From the patio the house is organized and emerges.
The design plays with the contrast between an exterior resembling a rigid box with straight lines and an interior of plastic and organic spaces defined by concrete and glass boundaries.
The program needed to resolve how a house could welcome and embrace its visitors. From the semi-covered entrance, a gate hides the oval patio, leading into a single large double-height space for public use. The service area is resolved in a southern side block.
Enriching the journey in the most organic way possible, creating different situations, framing views, merging the internal with the external were fundamental premises in the design of each space.
The kitchen, the heart of the house, is strategically positioned where everything can be overseen. Integrated with the dining area, it connects to the rest of the space. Appliances are concealed within the cabinetry, maintaining a sleek and integrated appearance.
The living area, in double height, feels contained, almost floating between two exteriors—the gallery and the oval patio—offering intriguing cross views.
The upper floor resolves with a "U"-shaped slab, bedrooms overlook the central void.
One wing accommodates the children's bedrooms and the other the master suite. It's a grand void that unites and transforms that connection into an incredible passage. There are no corridors in “Oval”, only moments, paths. Spaces fulfill functions and also propose something more than just connecting spaces.
Solar orientation was studied meticulously. Aluminum sunshades were used to cover and protect according to orientation, folding to shield windows from direct sunlight.
For privacy at the front, a continuous facade of aluminum, resembling wood, was chosen, some parts fixed and others sliding or folding.
Towards the rear, a more transparent facade opens up, using sunshades that adjust as needed for each space. Cross ventilation and natural light were essential considerations in each room.
Concrete has always been the characteristic material of our homes. It forms the structure and identity. Without its structural possibilities, our spatial designs wouldn't be possible.
The ground floor features Tundra Grey marble, utilized for its textures and possibilities, creating a unified flooring decision from the entrance to the underwater pool.
Upstairs, oak flooring provides warmth and a tactile comfort necessary for walking barefoot. In the basement, a free-use area receives natural light and ventilation through two custom-designed skylights.
“Oval” is an opportunity, an excuse to explore the plastic side of concrete. The curve was the element that permeated from major decisions down to the smallest details. Material intersections were infused with this plasticity and captivating geometry.
We are passionate about details; we have meticulously designed everything. The furniture and the entire palette of materials composing this masterpiece were handled by our studio.












































