Galeo Pavilion
ARCHITECTS
Stanaćev Granados
INTERIOR AND FURNITURE DESIGN
Stanaćev Granados
GREEN ROOF LANDSCAPING
Joaquín Lobato
CONSTRUCTION
Mauricio Barría
LIGHTNING
Stanaćev Granados
STRUCTURE
Stanaćev Granados
AREA
60 m²
YEAR
2021
LOCATION
Matanzas, Chile
CATEGORY
Other
The project, known as the Galeo Pavilion, was commissioned by a client seeking a separate lodging unit on their coastal property in Chorrillos, central Chile, intended primarily for adolescents and their guests, while remaining near the family's main holiday residence.
The client's brief was exceptionally direct, requiring an 8 by 8-meter freestanding pavilion on an already prepared clearing, with earthworks completed and construction slated to start within one month.
This tight framework of clarity and urgency fundamentally dictated the architectural response, necessitating rapid, precise decisions regarding the pavilion's form, structure, and material choices, all while accommodating the already shaped landscape.
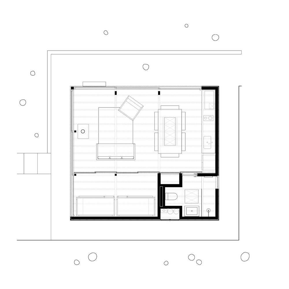
The resulting structure is both compact and highly flexible, designed to seamlessly function as a semi-private dwelling and as a communal gathering space.
The pavilion's location on a plateau adjacent to the main family house required a sensitive positioning; its floor was aligned with the principal residence's level, demanding independence for its occupants alongside a visual and contextual continuity with the existing home.
This negotiation led to the introduction of a green roof, which visually merges the structure into the terrain, making it appear as a landscape continuation when viewed from the main house, simultaneously acting as a buffer against heat and noise.
Its architectural form is deliberately simple: a rectilinear volume capped by the green roof, with its expression defined by a continuous glazed band inserted between the roof and the solid walls.
This glass strip reflects the surroundings, visually lightens the building's massing, and creates a sense of permeability without compromising enclosure, giving the pavilion an appearance of being both grounded and light.
Toward the sea, the façade is defined by large, full-width sliding glass doors that can entirely open the structure to the horizon, dissolving the interior-exterior boundary and transforming the living area into a semi-open terrace or quincho—a quintessential Chilean space for barbecuing, gathering, and socializing.
In stark contrast, the rear and lateral façades are opaque, clad in darkened pine boards for privacy and restraint, thus expressing the pavilion's dual role: extroverted toward the landscape, introverted toward the domestic environment.
The interior is organized for maximum flexibility, dedicating the majority of the floor plate to an open-plan living and dining space with an integrated indoor barbecue to support social interaction.
The sleeping quarters are cleverly integrated behind movable panels that conceal six bunk beds, which can be retracted and stacked to merge into the main room, allowing the space to seamlessly shift between a spacious gathering hall and a hybrid communal-sleeping environment.
A disciplined material palette was employed to achieve clarity and spatial cohesion within the compact volume, primarily focusing on locally available pine and plywood for cost-effectiveness and ease of execution within the tight schedule.
The structural frame is laminated timber with a black stain, while walls, partitions, and furniture use colorless-stained plywood and solid pine, establishing a continuity of tone and texture that minimizes visual clutter and allows functional elements to recede.
This material strategy, combined with the design's transparency, maximizes the perception of space within the modest footprint;
the glazed band introduces diffuse daylight and views of the sky, and the sliding façade admits abundant sunlight and ventilation, essentially transforming the pavilion into a semi-outdoor room in favorable weather.
The result is a flexible environment where interior and exterior are continuously interwoven, with visual connection to the horizon maintained even when the structure is closed.
The project’s construction relied on the preconditioned site and the use of efficient assembly methods and materials familiar to the local workforce, simplifying logistics and supporting the tight schedule without compromising the design intent. Ultimately, the Galeo Pavilion’s core function as a quincho reinterprets a familiar Chilean cultural practice—the semi-exterior space for collective gathering—within a contemporary architectural language, effectively positioning it between private dwelling and collective gathering.























