Leisure Center Jules Ferry School Group
ARCHITECTS
Demain Architecture Paysage
FLUID ENGINEERING
ABAC
FIRE SAFETY ENGINEERING
ABAC
CONSTRUCTION ECONOMICS
SF Fournier
ACOUSTICS ENGINEERING
Amplitude Conseil
PROJECT MANAGEMENT
CEAC
GEOTHERMAL ENGINEERING
Inddigo
DEMOLITION
DIE + ATTAC
ASBESTOS REMOVAL
DIE + ATTAC
EARTHWORKS
Chambon Construction
STRUCTURAL WORK
Chambon Construction
STRUCTURAL ENGINEERING
ETBA
WOOD STRUCTURE
Timber Lempdes
FRAMING
Timber Lempdes
ROOFING
Timber Lempdes
FACADES
Timber Lempdes
METALWORK
SMSL
WOODWORK
Menuiserie Genevrier
PLASTERING
Bonglet
PAINTING
Bonglet
CEILINGS
Bonglet
INTERIOR WOODWORK
Menuiseries Bougerol
SCREEDS
Brunhes Jammes
TILING
Brunhes Jammes
FLOORING
Cartech
HEATING AND COOLING
Machado
SANITARY FACILITIES
Machado
VENTILATION
Machado
PLUMBING
Machado
ELECTRICAL WORK
Domelec
ROADS AND UTILITIES
GATP/DEAT
GREEN SPACES
GATP/DEAT
GEOTHERMAL
Auvergne Forage
PHOTOGRAPHS
Vladimir de Mollerat du Jeu, Demain
AREA
660 m²
YEAR
2025
LOCATION
Cébazat, France
CATEGORY
Schools, Sustainability
ABSTRACT
Located on the hillside of a residential neighborhood, as an extension of the Jules Ferry school complex, the new Cébazat leisure center is a compact, single-story building.
This new facility restructures the entrances, playgrounds, and walkways of the nursery and primary schools, while blending harmoniously into its surroundings.
Its multi-sloped roof promotes smooth integration into the urban fabric and creates generous interior volumes, giving the place a warm, homely atmosphere that is suitable for children.
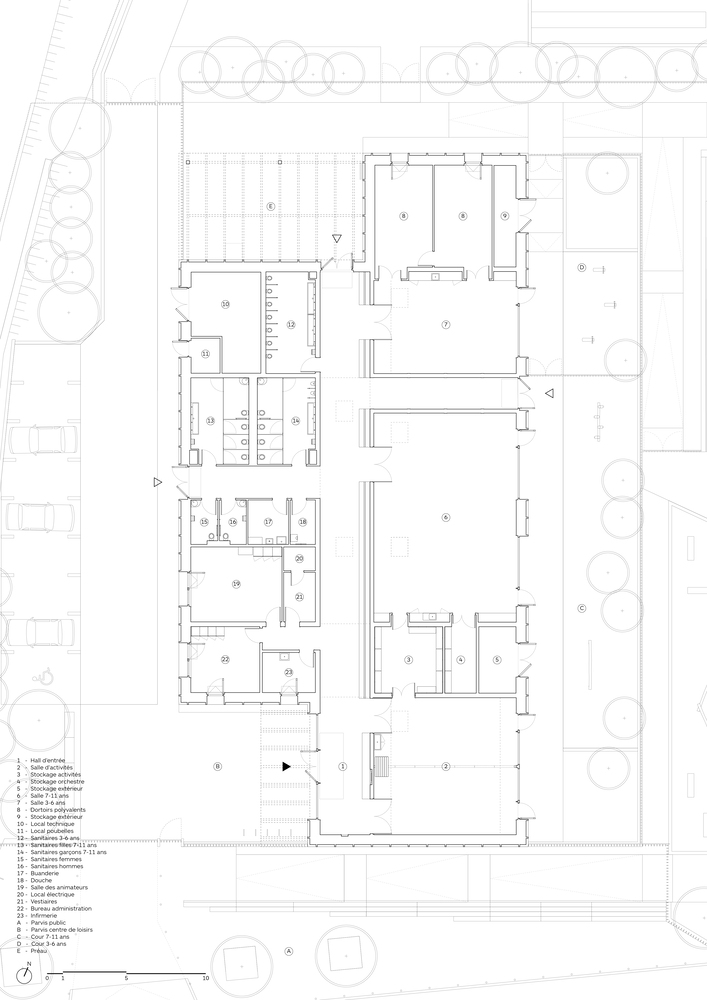
The building comprises three large activity rooms and two multi-purpose dormitories, all facing east towards the playgrounds and educational areas. A wide central circulation area, bathed in natural light, also serves as a living space in its own right.
Designed to provide a healthy, fun, and eco-friendly environment, the building has a timber frame, straw insulation, and exposed beams. The hemp block partitions and earth plaster reinforce this bio-based design, rooted in living materials.
ONE SITE, THREE LEVELS
The project takes advantage of the topography of the land by being located on the upper part of an existing plateau, directly connected to the street.
This choice limits the amount of earthworks required and respects the integrity of the site. The single-story building opens onto Rue de Terre Blanche and features a generous, shaded forecourt that is accessible to all thanks to the creation of a ramp and steps.
This reception area is equipped with street furniture: bicycle racks, seating, lighting, and plants. Two walkways structure circulation and usage.
An upper walkway, planted with trees, extends from the forecourt and is dedicated to technical access and staff. A lower walkway, reserved for schoolchildren, connects the school playgrounds and the leisure center.
The compactness of the building frees up vast outdoor spaces for playgrounds, and sheltered areas provide a transition between the interior and exterior: a covered playground for the main entrance to the south and a recreational playground directly connected to the children's walkway to the north.
The architectural style, sober and domestic, is expressed through a multi-sided roof that echoes the surrounding houses, existing school buildings, and the natural landscape. The use of local materials and local contractors reinforces the project's roots in the local economy.
The exteriors are being redeveloped according to the principles of oasis courtyards in order to offer children a temperate, green, and inclusive environment: existing trees are being preserved, and vegetation is being densified to create islands of freshness.
A range of local, edible, and climate-change-resistant plants is being deployed in different layers. The ground is being made permeable through the use of grass pavers, planted areas, and organic mulch.
The courtyards are designed as shared, accessible, and multifunctional spaces, with a balance between active and quiet areas: vegetable gardens, balance games, picnic areas, seating, sports fields, sandpits, etc. These uses have been defined in consultation with the users.
A NEW IDENTITY FOR THE SCHOOL COMPLEX
The building's architecture is based on three principles: -1 Controlled compactness optimizing façade surfaces,
-2 Two volumetric recesses to clearly indicate the entrances: an entrance courtyard to the south and a recreational courtyard to the north,
-3 A multi-sided roof creating a familiar and domestic silhouette, close to the world of early childhood.
The spatial organization of the leisure center is structured around a central circulation area that connects the two entrances and is designed as a living space: reception area, changing rooms, information point, etc.
Two secondary circulation areas allow flows to be separated: one for staff, the other leading to the courtyard and toilets.
The activity rooms face east, towards the courtyard, while the service and administration rooms and toilets open onto the west, towards the service road. Large glass openings provide a visual connection between the circulation area and the rooms.
The archetypal multi-pitched roofs contribute to the quality of the interior spaces by creating generous volumes and revealing the structure.
The structural principle of the building is simple and scalable: solid wooden rafters stretched between the ridge purlins and wall plates limit the number of support points, allowing freedom in the layout of the spaces and scalability of the building.
Following a regular grid pattern, the façades are punctuated by vertical studs that give relief to the cladding. Three gable widths meet the different programmatic needs.
CUSTOMISED LAYOUT AND SIGNAGE
Particular attention was paid to the quality of the interior spaces to meet the specific needs of the center and the children.
The generous interior volumes follow the sloping rooflines, giving pride of place to wood. Custom-made furniture, also made of wood, blends harmoniously into this environment, combining aesthetics and functionality.
Benches equipped with storage space, adapted work surfaces, and built-in cupboards contribute to the coherence and ergonomics of the premises. Designed to promote the children's well-being, spatial awareness, and sensory development, particular attention has been paid to the color scheme of the rooms.
A warm atmosphere is created by the combination of colors and materials: wood in the framework, panels and false ceiling, linoleum flooring, shades of red on the hemp walls and cork panels, and green introduced selectively on specific elements such as worktops and tiles.
Signage has been designed specifically for the leisure center. The archetypal roof panels have become the symbol of the building.
This signage is used on the signs at the entrance to the building and on the window decals on all the windows. All the signage has been made from a brushed aluminium sheet. The names of the rooms have been agreed upon with the users.
NATURAL AND SUSTAINABLE MATERIALS
The building reflects a committed and local approach, serving its users. The use of bio-based and local materials has enabled us to create a healthy building for children.
The project is designed with a wooden frame and structure with straw insulation. Much of the wood used comes from the Massif Central region.
The interior partitions are either made of hemp blocks and earth plaster or wooden frames with perforated wood panelling. The ceiling cladding and furniture are also made of wood. The floors are natural linoleum.
The base is low-carbon concrete. Particular attention has been paid to the durability of the wood used outdoors. We have used pre-greyed cladding to ensure controlled ageing over time. In addition, the exterior joinery (BTMC certified) is painted to guarantee a lifespan of more than 10 years.
The project is virtuous in terms of its compactness, inertia, and good insulation, but also in terms of its energy production and consumption system.
In terms of ventilation, a Provençal well naturally ventilates the sanitary facilities, and a dual-flow ventilation system with an adiabatic module serves the large rooms. For heating and cooling, the leisure center uses geothermal energy coupled with a water/water heat pump.
This reversible winter/summer system allows the various spaces to be heated and cooled economically via the floor.
All technical equipment is carefully integrated into the architecture: ventilation grilles are carefully laid out, ducts are concealed in the ceilings, manifolds are integrated into the furniture, and the roof is PV-ready.












































