Xiazhi Ferry Terminal, Xiazhi Island
ARCHITECTS
Atelier Z+
PARTNER IN CHARGE
Wei Zhou, Bin Zhang
PROJECT ARCHITECT
Yanlin Jin
PROJECT TEAM
Yue Xu, Yu Lu (Intern), Mengfan You (Intern), Wenhao Xu (Intern), Shuai Song (Intern)
CONCRETE BARREL SHELL STRUCTURE DETAILED DESIGN
China Construction First Group Co., Ltd.
CONCRETE BARREL SHELL STRUCTURE SUBCONTRACTING
China Construction First Group Co., Ltd.
CONSTRUCTION DRAWING DESIGN
Zhejiang University Of Technology Engineering Design Group Co., Ltd
CONSTRUCTION GENERAL CONTRACTOR
Zhoushan Jiahong Construction Engineering Co., Ltd
FLOOD LIGHTING DESIGN
Zhejiang Geyin Lighting Technology Co., Ltd
CLIENTS
Zhoushan Putuo Transportation Investment And Development Group Co., Ltd.
STRUCTURE CONSULTANT
And Office For Architecture & Structure
PHOTOGRAPHS
Min Yang
YEAR
2021
LOCATION
Zhoushan, China
CATEGORY
Industrial Architecture, Public Architecture, Landscape
Xiazhi Island is located in the southern part of the Zhoushan Archipelago, between Taohua Island and Liuheng Island.
The Zhapeng Wharf, where the ferry terminal is located, is situated at the northernmost protruding topographic singularity of the northwest coastline.
It is a triangular site bounded by the Z-shaped seawall on the outer side and the S-shaped coastal road on the inner side, adjacent to the Zhapeng Village to the south.
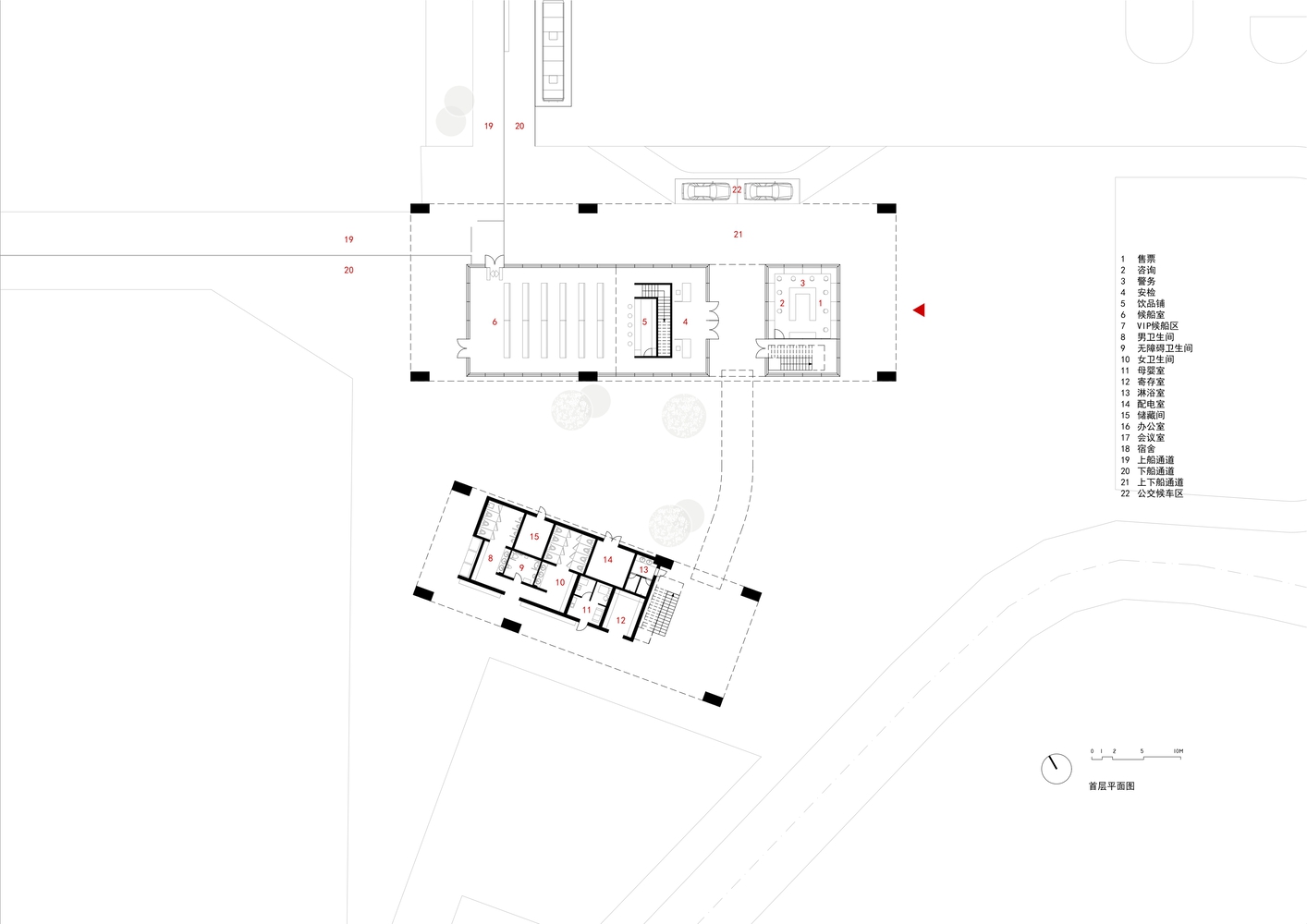
The Xiazhi Ferry Terminal is not only the main entrance and exit of Xiazhi Island but also symbolizes the connection between people and the ocean, tradition and the future.
We regard the whole station area as an open public space and to release the coastline, which becomes the core of the site strategy. Two concrete barrel shell structures are applied to form two volumes that intersect at an angle on the site, are proportionally matched, and transition from hill-shaped to arched-shaped.
The splay opening between the two shells facing the station square is connected by a curved light steel arched corridor. This layout continues the hints of the trace of site's topographical changes and the preservation of its construction history as designed in conceptual plan.
The existing ferry terminal building can be sustainably reused, and the eastern boundary of the large shell still serves as a reminder of the disappeared inwardly folded seawall.
We explore and translate the daily acts and symbolic meanings carried by the ferry terminal as a link between ocean and island.
When facing the sea, these two structures present gentle semi-circular arches, while facing the island hills, they appear as solid triangular pitched roofs, symbolizing the transformation and transition from the vastness of the ocean to the safe shelter of the island.
This materialization of the concept of "Ferry as Transition" not only reflects the interpretation of the dynamics of arrival and departure from the island but also inspires deep reflections on belonging and travel, settlement and exploration.
The barrel shell structures adopt a variable cross-section shear-wall-supported concrete shell structure.
Two large elliptical arch caves of misaligned different sizes are opened on each side of shear walls of the shell structure, which brings lateral openness and abundant natural light to the interior space, and forms a huge coverage supported by only six quasi column piers.
In terms of material selection, we intentionally give two different textures to the inner and outer surfaces of the shell. The inner cavity of the shell adopts pure fair-faced concrete to echo the inherent beauty of the structure.
The outer surface of the shell is covered with sky-blue glazed round ceramic tiles, which have a fish-scale-like gloss and symbolize the island's fishing culture.
When overlooking the building and the sea from the hillside, the gloss of the glazed ceramic tiles has an extremely similar silky texture to the shimmering sea surface, further enhancing the anchoring effect of the new ferry terminal in this unique location.















































