ARCHITECTS
2321Architects
LEAD ARCHITECT
Ryuichi Ozaki
STRUCTURAL ENGINEER
Soaps
PHOTOGRAPHS
Hiroki Kawata
AREA
109 m²
YEAR
2025
LOCATION
Saitama, Japan
CATEGORY
Houses
"Weave" takes its name from the ideas of interlacing and spinning. The house pursues a living environment with a tangible "grain," woven from natural materials, passive performance, and everyday culture.
Rather than leaning one-sidedly on technical metrics, it layers light and wind, materiality, and the rituals of daily life with care, seeking a stance that is attentive to the environment and a form of architecture that stays close to how people actually live.
We understand "living" as a dynamic loop among hubs such as work, school, and home; the interweaving of those routines is the essence of dwelling.
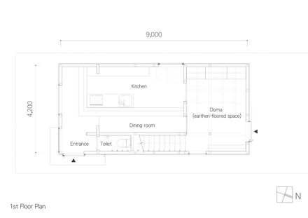
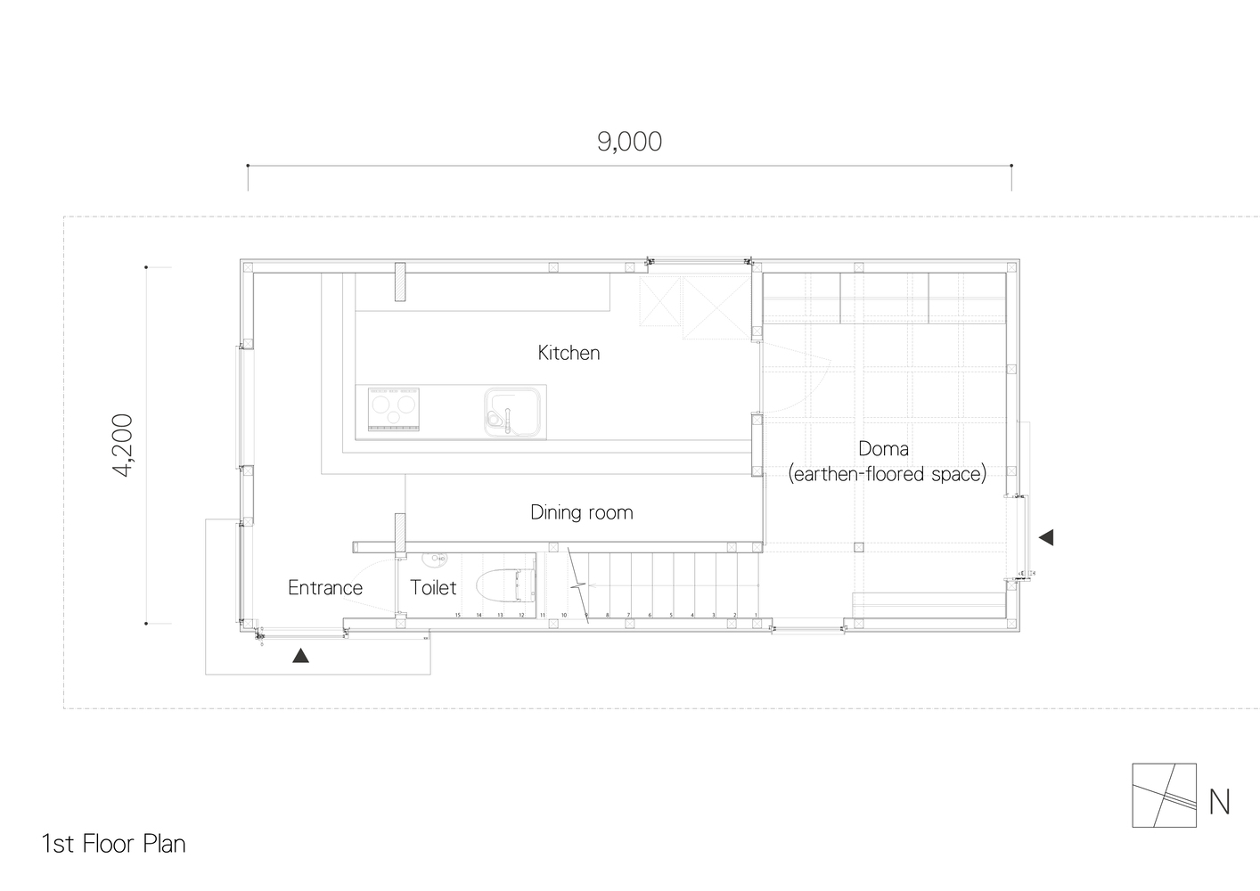
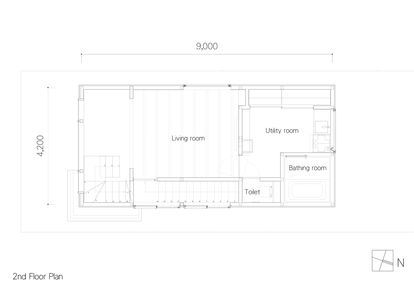
WEAVE is a family house for a couple in their thirties and their three children, set in a broad residential district of Saitama.
Because the client grew up here and selected the site with distances to work and schools in mind, the project was conceived as a singular place that will continue to be woven into the neighborhood day by day—a home that gently receives the beginning and the end of each day.
Here, "grain" refers to the subtle quality formed by light and shadow, the feel of materials, and the accumulation of everyday actions.
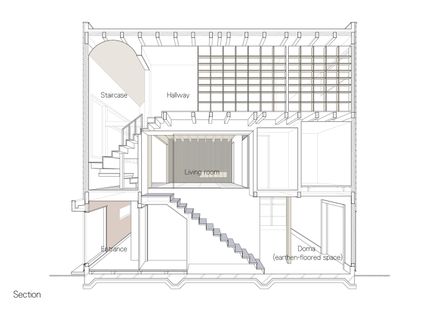
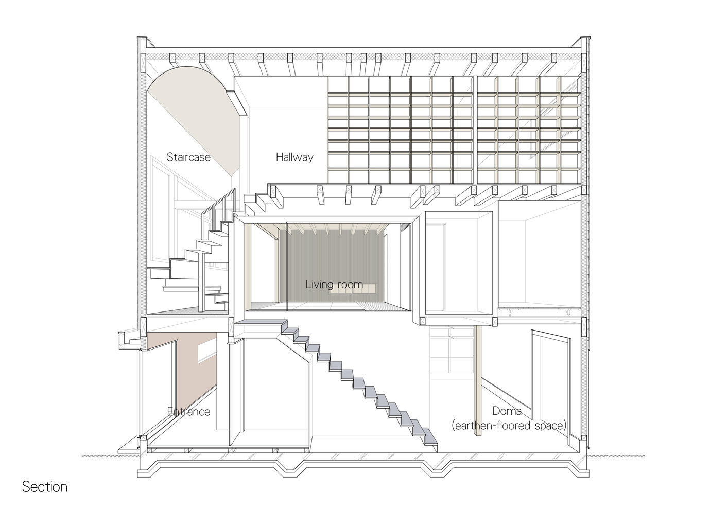
Space rises along the flow of movement, with elements appearing in sequence as time passes: a curved metallic ceiling that catches daylight smoothly; wall paneling with a rippled profile that recalls waves; 60-mm exposed timber beams; and bookshelves densely filled with volumes.
Kept at a hand scale, these pieces compose a rhythm that speaks to both touch and sight. In particular, the softened edges of the paneling catch daylight like warp threads, binding layers of material and behavior together.
Environmental response is embedded not as a show of form but as an ordinary act of adjustment. Openings are calibrated so that the winter-solstice sun reaches deep into the rooms, while vacuum-insulated glazing with solar control suppresses heat gain.
Stepless roll screens enable intuitive tuning—"wearing" the environment as one might choose seasonal clothing.
With only the minimum of machinery, the design leverages cross-ventilation and the rhythms of heat storage and release to balance the benefits of daylight with the control of thermal loads.
Rather than putting performance figures front and center, scales and textures are composed so that the user's own gestures naturally become energy-saving behavior.
WEAVE avoids ostentatious technology and domineering form, functioning instead as a quiet apparatus for daily life.
By interlacing circulation, materials, and atmosphere, it unifies functionality, creativity, and environmental sensibility—drawing out a beauty of living in accord with nature within the everyday premise of a nuclear family in a suburban neighborhood.
The aim is not a house that shows off technology, but one in which beauty settles into daily gestures—the spirit entrusted to the name "WEAVE."





























