30+8 Social Housing Units On Josep Togores Street
ARCHITECTS
Vivas Arquitectos
LEAD ARCHITECT
César Vivas Millaruelo, Cristian Vivas Millaruelo
ENGINEERING AND CONSULTING > STRUCTURAL
Manuel Arguijo Y Asociados Sl
ENGINEERING AND CONSULTING > SERVICES
Estudis D’enginyeria De Les Illes Sl
ENGINEERING AND CONSULTING > ENVIRONMENTAL SUSTAINABILITY
Dekra
GENERAL CONSTRUCTION
Marco Menéndez Y Missió 21 Arquitectes
PHOTOGRAPHS
José Hevia
AREA
2840 m²
YEAR
2025
LOCATION
Palma, Spain
CATEGORY
Social Housing
English description provided by the architects.
Land use and transformation — The site is located to the north of Palma, in a heterogeneous area that has been urbanized in several phases.
Low-density housing and agricultural areas predominate. The structural solution is inspired by traditional systems, where the structure itself defines and houses the spaces, integrating load-bearing and habitability functions.
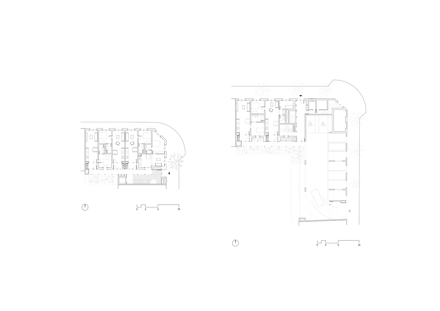
The project focuses on two aspects: appropriate integration into the urban and physical environment, and a functional solution adjusted to the program. The main building occupies a corner plot with an "L" shape and a buildable depth of 11.5 meters.
It consists of a ground floor and four levels designated for housing; the basement and part of the ground floor are allocated for parking with 30 spaces. A second building, on a rectangular plot, includes a ground floor and first floor with 8 housing units.
COMMUNITY TRANSITION
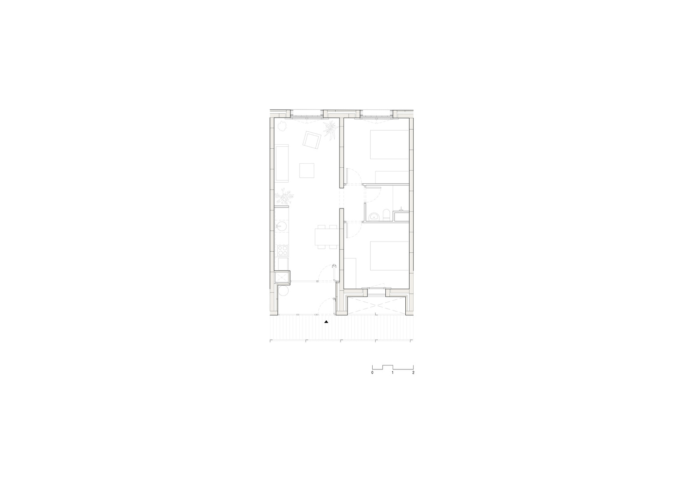
Access is organized through a lobby that leads to an interior courtyard from where, via covered walkways, the units are distributed. This scheme encourages neighborly relationships and establishes a gradient of privacy from the communal space to the private. The apartments, with one or two bedrooms, enjoy double orientation and a hallway-free layout, with a central kitchen visually connected to the living room.
A multifunctional southwest gallery ensures privacy, enhances thermal comfort, and allows for solar capture in winter and cross-ventilation in summer.
EFFICIENT CONSTRUCTION AND OPERATION
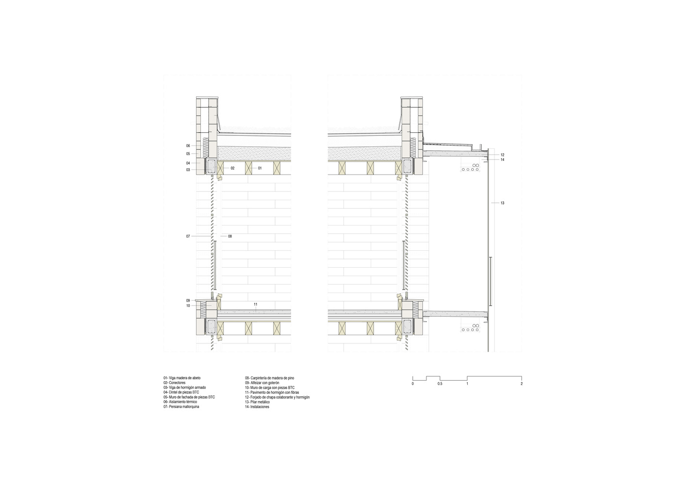
The structure combines wooden slabs and load-bearing walls made of BTC (compressed earth blocks).
This material, produced locally in Mallorca, reduces transportation emissions and supports the island's economy.
By not requiring high-temperature firing, it decreases energy consumption and carbon footprint. Its porosity allows for transpiration, improves indoor air quality, and prevents condensation.
BTC provides high thermal inertia, regulating indoor temperature and reducing the demand for artificial cooling. Its insulating capacity decreases acoustic and thermal transmission, increasing comfort and reducing the need for other materials.
From a structural standpoint, it offers high compressive strength, low degradation, fire and pest resistance, with minimal maintenance.
Its combination with prefabricated wooden slabs allows for rapid, adaptable, and sustainable construction.
AESTHETIC QUALITIES AND CULTURAL INTEGRATION
The use of BTC prolongs the constructive traditions of Mallorca, such as the coastal houses, where local materials defined the structure and adapted to the Mediterranean climate.
These systems integrate material and environment, providing identity and cultural coherence.
In the context of the climate crisis, the use of the earth as an indigenous resource represents a sustainable option that reduces the carbon footprint and reinforces the connection between architecture, territory, and community.
This approach preserves the island's cultural identity while responding to current environmental challenges.























