House Of Espinheira
ARCHITECTS
Partner4build
GENERAL CONSTRUCTION
Filomeno Pequicho - Majestic Ideas
LEAD ARCHITECT
João Luis Rocha Bento, Susana de Abreu Calvão de Oliveira Bento
PHOTOGRAPHS
Pedro Machado Photographer
AREA
155 m²
YEAR
2025
LOCATION
Caldas da Rainha, Portugal
CATEGORY
Residential Architecture, Houses
English description provided by the architects.
The House of Espinheira was conceived from a concept that combines the pragmatism of form and the materials that provide resistance or protection from natural elements, resulting in a work of refined language.
Its genesis lies in a initial gesture of folding, an architectural origami emerging from the simplicity of a paper napkin, exploring the relationship between form and function.
The volumetric composition reflects a formal purity that manifests in the honesty of the materials used.
Exposed concrete shapes the surfaces of the walls and the roof slab, lending the construction a timeless robustness and a sculptural character.
The concrete, with its raw texture, becomes the protagonist, highlighting the materiality and emphasizing the presence of time on its surface.
The garden terrain is shaped by a single wall of exposed concrete that extends from the house, where an exterior staircase abuts, creating continuity of the built body and allowing access to the basement designated for parking.
These elements not only structure the terrain's slope but also reinforce the minimalist language of the construction, integrating it into the landscape.
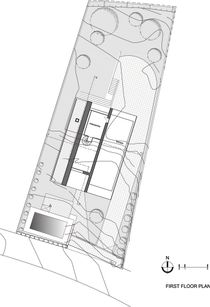
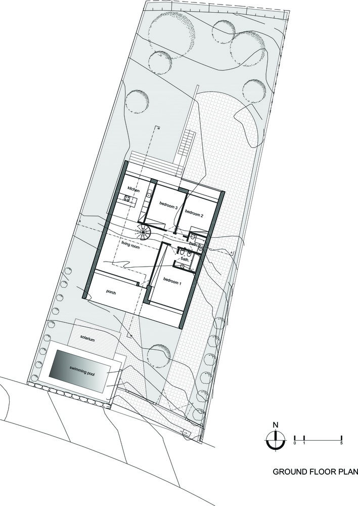
The programmatic organization of the house prioritizes spatial fluidity and interaction between environments.
On the ground floor, the three bedrooms and social areas are arranged, while the living room and kitchen in open space open up in a double-height, expanding spatial perception and allowing for the existence of a mezzanine intended for an office suspended over the kitchen volume.
This solution not only enhances the verticality of the space but also establishes new perspectives and internal visual relationships.
The house develops around its own plot, turning inward to maximize the incidence and quality of natural light.
The openings are strategically placed to capture direct and indirect light, modulating illumination and creating dynamic atmospheres throughout the day, in a color palette that "paints" the gray of the exposed concrete. The sides of the house, in turn, are opaque, shielding from neighboring plots.
The water element, represented by the swimming pool, plays a fundamental role in the composition of the outdoor space.
The pool is set within a scenario marked by a pre-existing natural stone wall, which dialogues with the other materials and reinforces the identity of the location.
This rustic element establishes a relationship of contrast and continuity with the exposed concrete and wood, composing a balance between the artificial and the natural, the old and the new.
By reducing architecture to its essence, this project highlights materials as primordial elements of the living experience.
The house, in its apparent simplicity, transcends the mere function of shelter, becoming a sensory and plastic expression of matter, light, and space.






























