
Round About Baths
ARCHITECTS
Burolandschap
LEAD ARCHITECT
Pieter Daenen
PHOTOGRAPHS
Pieter Rabijns
AREA
420000 m²
YEAR
2024
LOCATION
Tongeren-Borgloon, Belgium
CATEGORY
Public Space, Train Station, Cultural Architecture

English description provided by the architects.
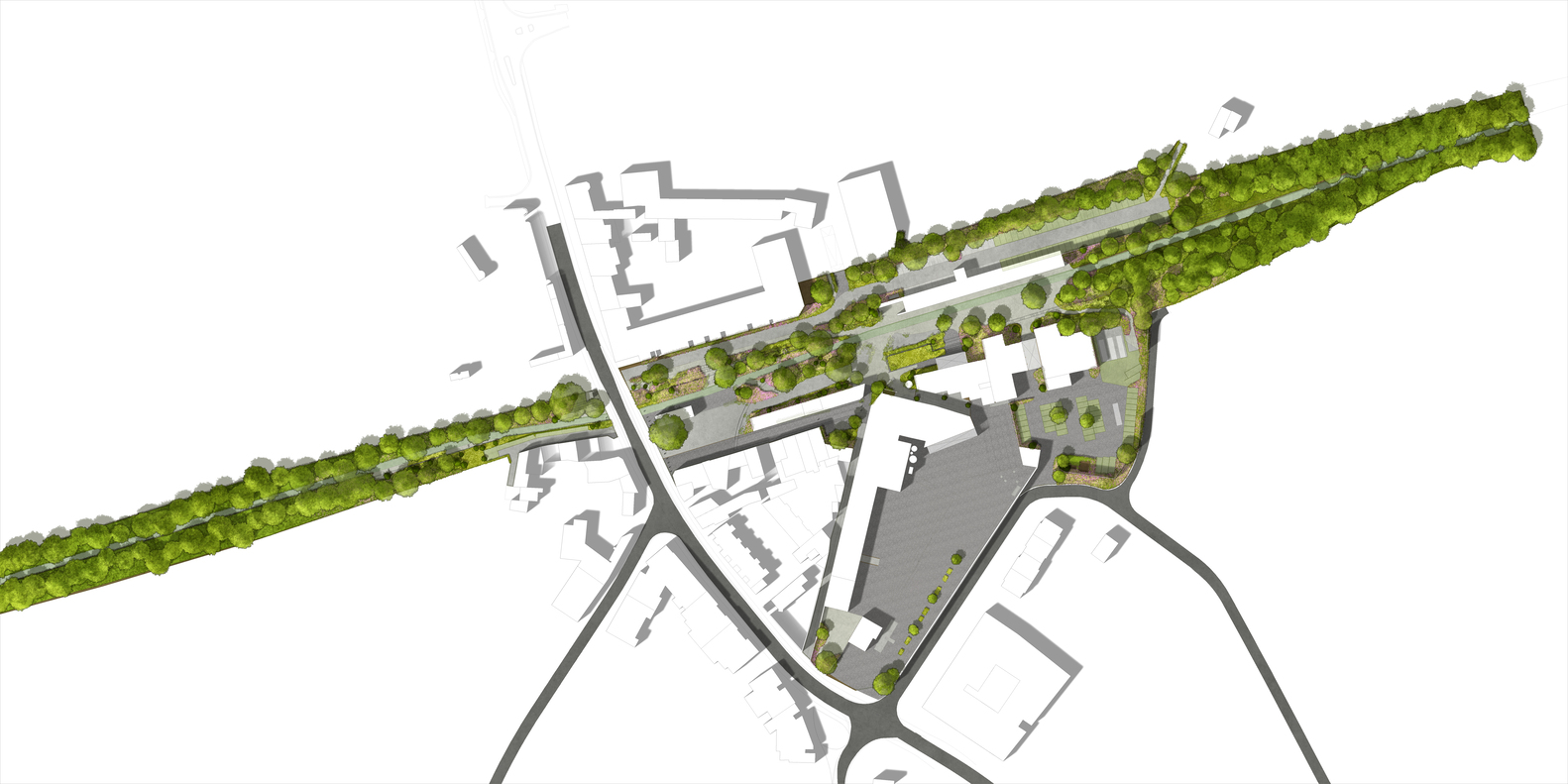
The station area of Borgloon has undergone a transformation into a vibrant meeting place and a symbolic gateway to the 'Fruit Route'.
The Loon Fruit Station features a unique planting concept, immerses visitors in the rich history of fruit cultivation, and references the former railway line that once traversed the landscape in several ways.
The thorough transformation of Borgloon's station area is part of the realisation of the Fruit Route. The "Fruit Line" is the nickname for railway line 23, which was constructed in 1879 between Sint-Truiden and Tongeren, primarily used to transport fruit and sugar beets.
The tracks were dismantled in 1971, but the route is still visible today as a straight line cutting through the landscape, now serving as a cycling path. The Fruit Route connects Sint-Truiden, Borgloon, and Tongeren through a long green corridor.
After the railway was decommissioned, the station area served as a storage site for the city's technical services, a purely functional use.
Since 2007, the city has been working on repurposing this site, which holds exceptional heritage value. In the shadow of the syrup factory and the fruit experience centre, the station square is undergoing a true metamorphosis.
The project includes the redevelopment and organisation of the former station area into a visitor site, as a cycling hub along the former Fruit Line, and as a base for walkers and cyclists. The Fruit Route literally runs straight through the station area.
The station site has been transformed into a lively meeting place that references the rich history of the fruit processing industry. The Fruit Station acts as a symbolic gateway to the Fruit Route.
From this central location, visitors embark on a journey to discover the Haspengouw landscape along the historic fruit line.
At the Fruit Station, they are offered an inspiring introduction to the route and a first glimpse into the unique fruit culture that characterises the region.
The new pavilion, elegantly designed by A2o architects, refers to the former station building and consists of an elongated volume with alternating covered, semi-covered, and open spaces, forming the platform of the station.
The versatile Fruit Station includes a reception area, a bicycle repair station, a resting spot, and space for events.
The Fruit Station incorporates a unique planting concept with a rich layering of native perennials, newly introduced biodiverse herbs, shrubs, wild and botanical roses, and fruit-related trees. These elements reflect the historical fruit industry of the site.
The historic station square is being redesigned as an homage to its original character. Original cobblestones are carefully reinstalled in part to retain the authentic atmosphere.
Some of the historical train tracks are reinstated in their original location, while others are reinterpreted with a modern concrete design. This design features concrete railway sleepers and tracks, conceived as modular elements that fit seamlessly together.
They are alternately recessed or level with the ground surface, creating a dynamic linear pattern across the site, a subtle reference to the historic rail lines and the site's rich railway heritage.
All paving and prefabricated elements on the site are meticulously composed using local limestone as the base material, a stone widely used during the site's historical heyday.
This limestone forms the foundation of the paving concept. In various zones, loose stones of different sizes are also applied, allowing for the development of special flora and fauna, thus increasing biodiversity.














