The RA House
ARCHITECTS
Fernandes Atem Arquitetos
LEAD ARCHITECT
Ricardo Fernandes, Juliana Atem
ARCHITECT
Ricardo Fernandes
LIGHTING PROJECT
Verônica Barreira
LANDSCAPE
Bruno Ary
STRUCTURAL CALCULATION
Marcos Andrew Rabelo Soeiro
CONSTRUCTION
Fernandes Engenharia
INTERIORS
Juliana Atem
PHOTOGRAPHS
Felipe Petrovsky
AREA
377 m²
YEAR
2022
LOCATION
Brazil
CATEGORY
Houses
English description provided by the architects.
The RA house was designed for clients who wanted to build their permanent home away from the urban center.
The family, though large, had shrunk to its core when the adult children grew up and became independent.
Therefore, the house needed to simultaneously focus on the couple's practicality while also providing ample space for frequent family gatherings around the kitchen and adjacent areas.
We sought to meet this premise by creating continuous, integrated spaces with minimal hierarchy and adapted to the local climate.
These spaces suggest natural light and cross ventilation, combined with the creation of generous shade, as appropriate strategies.
The house seeks to recapture the atmosphere of the residential space that resides in the residents' memories. Reminiscences of domestic life around the kitchen, the integration of interior spaces with nature, and the welcoming materiality guided the design concept.
The scale, program layout, and materials employed seek to affirm the values of simplicity, harmony, and austerity present in modern Brazilian architecture.
The RA house represents a process of investigation into spatiality and tectonics initiated in previous projects. The pavilion-like layout stems from the site's west-facing orientation and seeks to maximize the south side to capture the predominant ventilation.
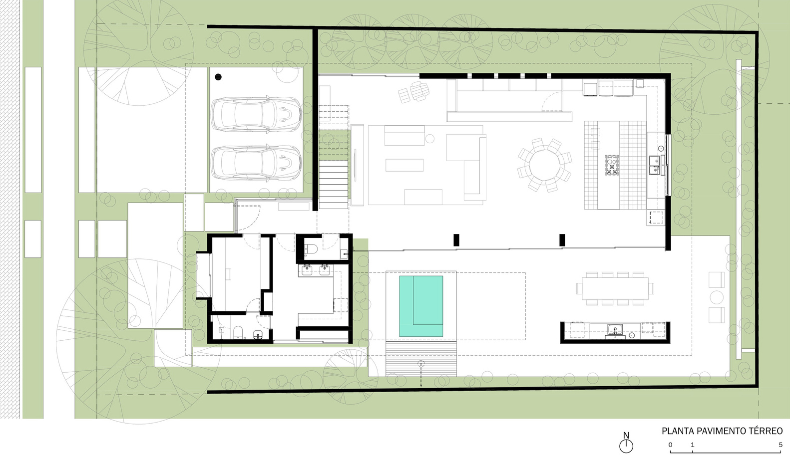
The social (ground floor) and private (upper) areas occupy the north portion of the lot and open onto large terraces on the south side.
The service areas, as well as the vehicle shelter, are located in the front portion of the lot and protect the living areas from the setting sun and street views.
The materiality is characterized by the exposed concrete slab resting on the ground floor walls, sometimes clad in natural stone (gray quartzite) and sometimes with locally manufactured hydraulic tiles, and by the expressive roof that floats prominently above the upper floor walls, providing constant diffused light.
The independent reinforced concrete structure consists of a system of pillars and inverted beams within a rigorous geometry.
This system culminates in the upper floor slab, which forms a platform on which self-supporting masonry rises, supporting a network of wooden beams that support the double-tile aluminum roof with a layer of thermal and acoustic insulation.
In plan, the structure is constructed in modules measuring 4.80m x 6.00m in the main span to the north (garage, social and private areas) and 4.80m x 4.80m in the lateral span to the south (services and leisure).
On the ground floor, concrete is the prominent material. It is present in pillars, slabs, and beams and shares the spotlight with the wood ceiling, stone, and tile walls, creating the desired intimate scale for the interiors.
Lush vegetation along the site's boundaries provides a backdrop that reinforces the tactile aspects of the materials. Upstairs, wood floors, ceilings, and structures predominate, lending the cozy feel necessary for private areas.
The masonry is neutral, with a satin-finish finish. Natural light is abundant. The side terrace has a wooden slatted floor that allows rainwater to infiltrate.






























