
East Block - Versatile Space
ARCHITECTS
El Sindicato Arquitectura
LEAD ARCHITECT
Nicolás Viteri, Xavier Duque, María Reinoso
GENERAL CONSTRUCTION
Micra, Pensar en madera
TECHNICAL TEAM
Pablo Hidalgo
PHOTOGRAPHS
Andrés Villota, Eduardo Espinosa
AREA
180 m²
YEAR
2023
LOCATION
Quito, Ecuador
CATEGORY
Office Buildings, Store
English description provided by the architects.
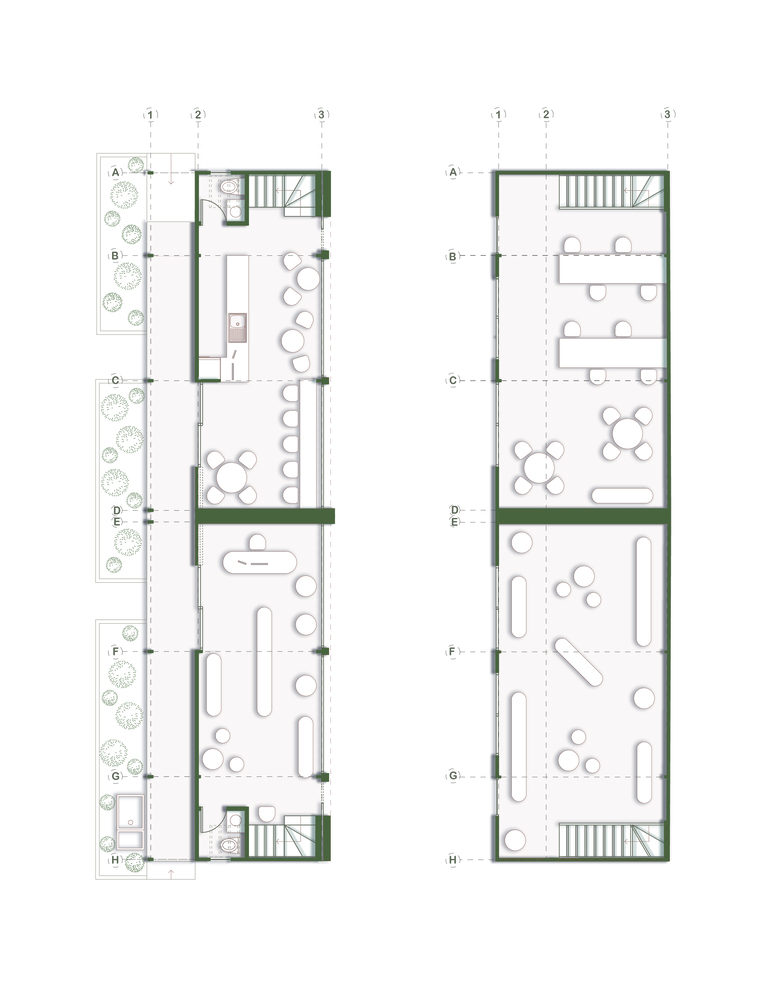
In the heart of Cumbayá lies "Bloque Este," a building that seeks to redefine the relationship between architecture and the natural environment.
This project houses two commercial spaces and transforms a long blank wall into a new functional façade.
"Bloque Este" is strategically located between an old boundary wall and the also old central garden of Espacio Versátil.
The building avoids standing out and aims to harmoniously integrate with the surroundings, giving primary importance to the large avocado tree and its surrounding gardens.
The functional façades extend both toward the street and the garden, creating a visual dialogue between the two spaces.
In a street dominated by blank façades and hard materials, "Bloque Este" proposes, through an almost transparent ground floor, a visual connection between the garden and the street.
Pedestrians, previously faced only with asphalt, now enjoy a view enriched by nature.
We perforated the existing wall with exhibition spaces and access points from the street, and aligned partitions toward the garden to ensure continuous and attractive visual relationships.
The construction is based on a foundation slab, a simple wooden and dry masonry framing system.
The exterior coverings of fired clay tiles (tiles) and the subtraction of parts of the boundary wall highlight the simplicity and functionality of the design.
The architecture presents itself discreetly, allowing nature to take center stage. "Bloque Este" not only enriches the urban landscape of Cumbayá but also establishes bridges between the built environment and nature.



























