Apricity Development Brand Headquarters
ARCHITECTS
Soar Design Studio + Ray Architects
LEAD ARCHITECT
Ray Chang
DESIGN TEAM
Lin Yi-Syuan, Wang Qi-Ning
PHOTOGRAPHS
Studio Millspace
AREA
728 m²
YEAR
2024
LOCATION
New Taipei City, Taiwan
CATEGORY
Office Buildings
English description provided by the architects.
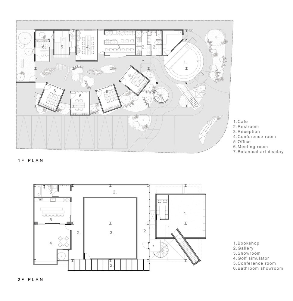
At this developer's headquarters, the factory steel frame outlines the layout, echoing with its founding origin of a brick kiln.
Spaces are deconstructed and sequentially inserted. Diverting from the commercial setting, the design emphasizes "openness to the community" and shares its brand vision with the public, weaving a reinterpreted factory aesthetic and a Taiwan forest impression into the city.
The design points: -1. Deconstructed and reconfigured form responds to the fabrication of factories and organic urban facades -2. Inviting premises mix with public & retail space, blurring corporate buildings' sense of boundaries. -3. Open and flowing massing connects with the exterior, offering a meandering, freely wandering experience.
The client, a developer focusing on building upon the sense of place, leverages its brand headquarters as a manifesto of city friendliness and innovative urban aesthetics.
Departing from a normative boxy structure, the design articulates the vision of the brand through an unconventional architectural expression.
The building integrates public and retail spaces with an inviting architectural gesture, blurring the sense of boundaries often induced by a corporate building.
Through this multi-functional design, the project attempts to reinterpret the collage-like urban realm in Taiwan, carefully fusing the natural mountain atmospheres and architectural language of the industrial buildings into a new metropolitan prototype.
The building composition responds to the logic of "form follows function," like when at a factory, a control room is added ad hoc when needs emerge.
The group of volumes adopts various geometries, representing organic forms through observation of a factory. These units are inserted into the steel structure grid, angled according to the contour of the site.
The fan-shaped placement blurs the hierarchy of the elevations and circulation. The body of continuous corner spaces animates the light and shadow throughout the day.
The external staircase linking the ground and first floor, deliberately disjointed, resembles the fragmentation of factory spaces.
Materials commonly found in factories are employed authentically, with minimal embellishment, embracing the rawness of industrial environments.
Forests, cityscape, and factory structure are familiar organic ecologies in Taiwan.
These three "distinctively Taiwan" and organic entities are carefully combined into an architecture rich in local culture.
Beyond mere forms, they are transcended to reflect the society's inner state, resulting in an intertwined representation of nature, architecture, and urban culture.
Not only is it a narration of city fabrication observation, but this project also translates and reinterprets the collage-like, organic disorder of the current urban form—often seen as negative—into an exciting, engaging, and new architectural language.
It offers a different perspective to our culture, forcing contemplation and reconciliation with the accumulated past, and asserting the necessity for a transformative change.





























