
Concept House
ARCHITECTS
Joao de Barro Arquitetura
LEAD ARCHITECT
Diogo Mendes Gonçalves
DESIGN TEAM
Raphaella Beatriz Mendes
COLLABORATORS
Larissy Kelly Caixeta, Lucas Borges Pereira
ENGINEERING
CM Engenharia - Cristiano Elias Rabelo Magalhães
LANDSCAPE DESIGN
Bia Abreu Paisagismo
MANUFACTURERS
GRAPHISOFT, Lumion, CASA DOS VIDROS E PISOS, EMMIG, FUNCIONAL MÓVEIS, ILUMINÉR ILUMINAÇÃO, Portobello, Trimble Navigation
PHOTOGRAPHS
Keniche Santos
AREA
403 m²
YEAR
2025
LOCATION
Brazil
CATEGORY
Houses
English description provided by the architects.
In Patrocínio, Minas Gerais, stands a residence that redefines the concept of contemporary living, harmonizing the lightness of a metal structure with the solidity of stone and the warmth of cumaru wood.
This exemplary project was meticulously designed to establish a deep connection with the lush natural surroundings, offering a sophisticated refuge that is intrinsically linked to its environment.
The architecture, modern and minimalist in style, is characterized by its horizontality and use of pure volumes.
The exposed metal structure not only ensures stability but also provides striking visual lightness, allowing for large spans that flood the spaces with natural light and promote cross ventilation.
Wood-textured aluminum brise-soleils not only add a natural touch but also function as elegant solar filters, controlling light incidence and ensuring privacy.
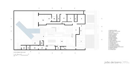
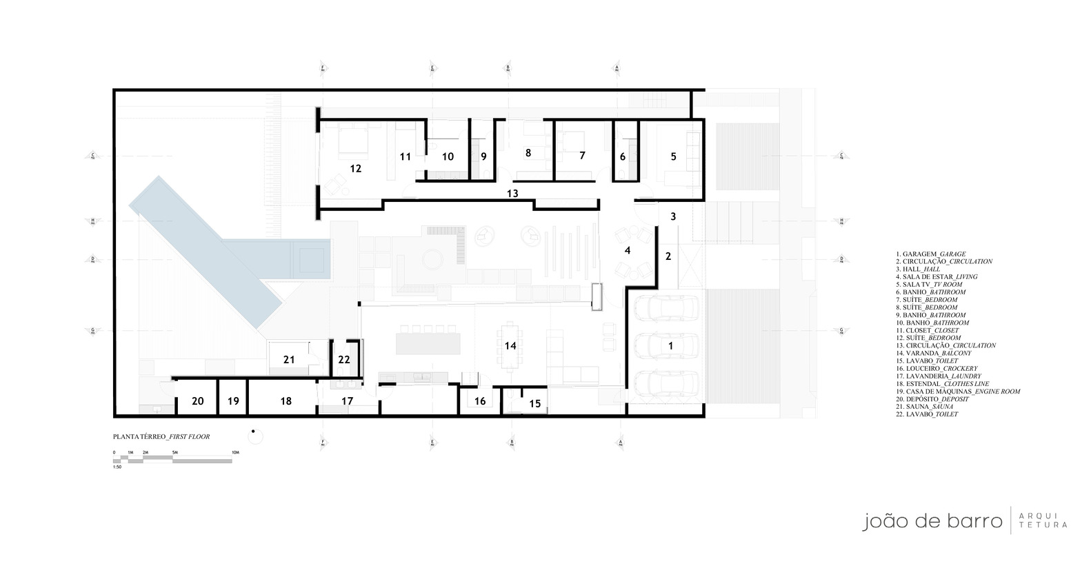
One of the most innovative and functional features of the project is its U-shaped layout.
This strategic configuration clearly separates the private area of the house — dedicated to bedrooms and private spaces — from the social area, ideal for gathering and entertaining.
The entrance hall acts as an articulation and transition point, elegantly directing flow to each sector while ensuring ideal circulation and privacy.
In addition to the metal structure and wood-textured brise-soleils, natural stone is widely used, cladding both interior and exterior walls, adding texture and a visceral connection to the Minas Gerais soil.
For the extensive decks surrounding the pool area, natural cumaru wood was chosen, celebrating its beauty and durability.
Notable features of the residence include strong landscape integration, where tropical gardens extend from the interior spaces, and a complete leisure area with a pool, sauna, spacious decks, and a hammock area for relaxation.
The gourmet kitchen, with its contemporary design, opens to the outdoors, reinforcing the idea of social living.
Thermal and lighting comfort are priorities, optimized through intelligent design and natural ventilation.
Every detail — from stone to wood paneling — contributes to a sophisticated and welcoming environment.
This house in Patrocínio is more than a building; it is an architectural manifestation that celebrates construction innovation, spatial functionality, and the timeless beauty of natural materials, offering a lifestyle that inspires well-being and a genuine connection with nature.



































