Stroud Green Housing Center
ARCHITECTS
Owain Williams Architects
MAIN CONTRACTOR
Keenan Construction
INTERIOR DESIGN
Owain Williams Architects
CLIENT
Stroud Green Housing Co-operative
PHOTOGRAPHS
French + Tye
MANUFACTURERS
Lunawood, Claybrook, Keenan Construction, Lindab, Russwood, The Colour Flooring Company, Thermapine, Velfac
GROSS INTERNAL FLOOR AREA
26 M2
AREA
38 m²
YEAR
2025
LOCATION
London Borough of Haringey, United Kingdom
CATEGORY
Residential Architecture, Public Architecture, Offices
Nestled in line with the boundary walls of its neighboring Finsbury Park properties, the timber façade of a new housing association office meets the quiet street it now calls home.
Embodying the question of how small something monumental can be, Owain Williams Architects has transformed a disused concrete garage into a single-story freestanding office building that faithfully serves as the headquarters of the Stroud Green Housing Co-operative.
Responding thoughtfully to its context and community, the building almost takes on an earnestness in the way it carries itself, projecting a quiet self-consciousness in its role of public service.
Despite its compact footprint of just 38 square meters, the building gives the impression of being much larger than it is, demanding exaggerated ritualistic gestures that deepen its identity as a civic place.
Through clever use of volume and form, the modest center sits with assured confidence in its place – a public building, but in miniature.
Before its relocation, the center operated from a confined site around the corner. The space had dutifully served its purpose; however, after decades of good use serving the residents, the tiny footprint stood in the way of the forward momentum of the charity's mission.
Owain Williams Architects were approached to lead the exploration of three potential office sites for the housing association, with the search limited to residual land surrounding the existing center.
The chosen location, previously a concrete garage, increasingly a hotspot for antisocial behavior, was selected for its north-facing orientation, enabling the building to passively ventilate and cool itself.
The architects were first contacted in 2019, with design work beginning in 2020. However, the site remained untouched for several years while the organization secured funding. Construction eventually began in 2024 and was completed in May 2025.
The brief was simple: design a space for the organization's day-to-day operations within a modest budget, providing a welcoming setting for tenants to drop in, desk space for permanent staff, and a place to host annual general meetings with the tenants.
Modest in scale but rich in intention, the new housing center reflects themes of personal growth and quiet renewal.
To best support the client throughout design and construction, Owain Williams Architects fostered a culture of positive challenge, encouraging dialogue and reflection to help the client make informed decisions and take ownership of the final design.
In doing so, they ensured the association was authentically represented, while subtly instilling an atmosphere of aspiration in a natural extension of the organization's mission.
The building receives the street, drawing it inward through a disproportionately large gate into a porch topped with a mirrored ceiling. Although external, this initial entry acts as a meaningful threshold, a deliberate yet subtle prolonging of the journey inward in a manner befitting a civic building.
Each morning, the charity unlocks and opens the wide gate, shifting the building from its defensible state into an open, civic space, as the porch becomes an extension of the public realm. In measured flow, visitors make their way into the building via this threshold before arriving at a small internal waiting area.
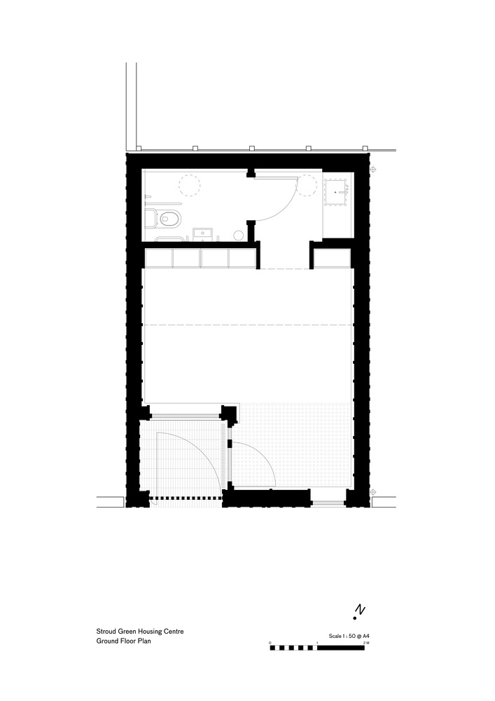
Inside, the open plan space is light and colorful. Teale vinyl flooring switches to mint green as it flows from the entrance area to the permanent desk space, leading into a yellow kitchen and an adjoining accessible toilet, complete with a green door and painted frame.
The design sought to fit the greatest variety of spaces into the smallest possible footprint, using a tall clerestory roofline, zoning, and material transitions to create a space that is greater than the sum of its parts.
The form of the housing center steps up in the center of the plan to allow for a row of north-facing clerestory windows, which draw in even, natural light. These windows are operable, providing natural ventilation to passively cool the building while also reducing solar gain and heat loss of heat through overglazing.
From this step, the ceiling curves gently downward at the rear, shaped partly by rights to light from neighboring properties, but also to soften the space and give a cosier feel to the kitchenette. Sun tunnels bring in additional daylight from the south without contributing to solar gain, further supporting the building's passive design principles.
Materials were selected for their hardwearing, availability, and cost-effective properties. Subtle but thoughtful details, such as half-height wall panelling and slatted, floor-to-ceiling storage, bring an unpretentious refinement to the interior.
At the heart of the project is a simple philosophy: this is a building for everybody, so accessibility was non-negotiable. Around 15% of the footprint is dedicated to a generously sized accessible toilet, a proportion that might seem bold in such a compact building, but was seen as fundamentally important to ensure true inclusivity.
A completely level threshold from the street reinforces this, with the building opening up as if to the street to make entry seamless and welcoming. In its way, the new housing center exemplifies what architecture can do when it listens first.
The building carries a clear sense of public purpose, a civic presence reinforced by the daily ritual of opening and closing its oversized gate, as though putting the building gently to work and then to rest.
Owain Williams Architects has created a space that feels generous without being grand, aspirational without being showy, and above all, deeply human. It proves that even the smallest projects can hold great meaning, and that sometimes, the most monumental gestures are the quietest ones.
Owain Williams, Director at Owain Williams Architects, said, 'Despite its small footprint, we wanted to give the Housing Center elements of a public building but delivered in an unassuming way.
The facade reflects elements of classical architecture, contributing due civicness – this is seen in the concrete plinth, timber panels as columns, and the articulation of a pediment. All small details that give the office, and hopefully its tenants, a sense of confidence.'























