ARCHITECTS
Studio Bo
DESIGN TEAM
Studio Bo
LANDSCAPE ARCHITECTURE
Klp
LEAD TEAM
Omar Benmoussa, Nada Benkhoui
ENGINEERING & CONSULTING > CIVIL
Cap
MANUFACTURERS
Panoramah!®, I-mesh
PHOTOGRAPHS
Alessio Mei
AREA
637 m²
YEAR
2025
LOCATION
Marrakesh, Morocco
CATEGORY
Residential Architecture, Houses
On the edge of a golf course in Marrakech, on a 1,400 m2 plot, stands a villa conceived as a silent presence, at once grounded and weightless, sensual and spiritual.
The project is rooted in the ochre landscape of the city, drawing from its materiality and light a raw, unpretentious nobility.
The architecture unfolds in two distinct strata: a solid ground floor in reddish terracotta brick, anchored to the earth and engaging in dialogue with it, and a lighter, more fluid upper level, almost in suspension, like a breath.
This mineral base serves as a pedestal for a hybrid volume above, both curved and angular, whose lines expand and deconstruct to open fully onto the golf landscape.
Facing the street, the house remains protected. Its façade, opaque and discreet, is punctuated by fine openings veiled with slender terracotta slats that filter the western light and preserve privacy.
The entrance occurs through a slit between two curved walls, a threshold, an interval, a moment of transition.
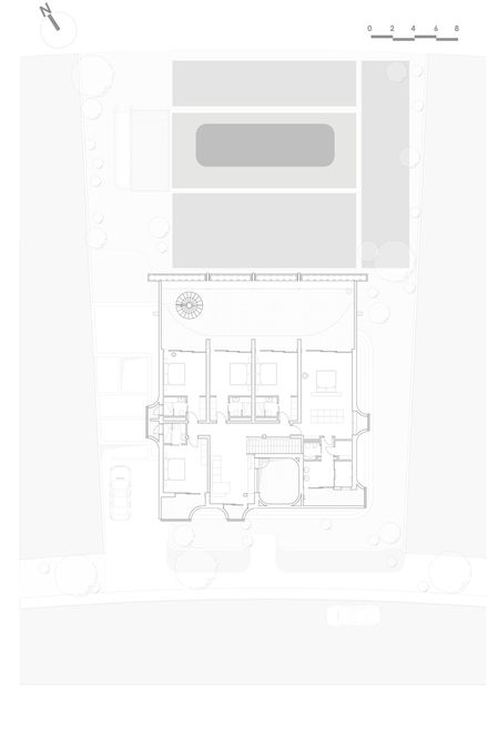
Inside, spatial fluidity is organized around a central core housing the vertical circulation and technical spaces.
The staircase, sculptural and deconstructed, seems to detach from the walls; each step is embedded in the mass, while the suspended handrail floats delicately, tracing a sensitive verticality through space.
The ground floor unfolds in three sequences: a dining room, a living area, and a fireplace corner gathered around a suspended fireplace.
The dining room, set apart by pivoting doors, converses with the rest of the space through a large curved opening that reinforces the fluidity of the plan.
The materials, zellige, tadelakt, Taza stone, and terracotta brick, are locally sourced.
Every detail, from the stone handles to the sculptural rain chains, reveals a commitment to uniting architecture and craftsmanship, matter and hand.
Upstairs, a meditation space open to the sky connects the house to the celestial.
It is a place of retreat and introspection, a silent pause where light becomes spiritual.
All around, lush vegetation forms an intimate green setting, an organic cradle that softens the geometry of the architecture and completes the dialogue between nature, structure, and the human body.












































