
Art Residence
ARCHITECTS
Jacobsen Arquitetura
LANDSCAPE DESIGN
Burle Marx
LIGHTING DESIGN
Studio Iluz
INTERIOR DESIGN
Paulo Jacobsen, Bernardo Jacobsen, Edgar Murata, Marcelo Vessoni, Marcela Guerreiro, Magu Marinelli, Eloisa Quadros, Ana Zuchetto, Amanda Bernarcci, Juliana Vital, Luiz Santini, Thais Madeu
DESIGN TEAM
Paulo Jacobsen, Bernardo Jacobsen, Edgar Murata, Marcelo Vessoni, Marcela Siniauskas, Pedro Junqueira, Andrea Mendonça, Marina Camison, Fernanda Morais, Leticia Hirata
STRUCTURES
Marata
PHOTOGRAPHS
Fernando Guerra | FG+SG
AREA
1878 m²
YEAR
2024
LOCATION
Brazil
CATEGORY
Houses
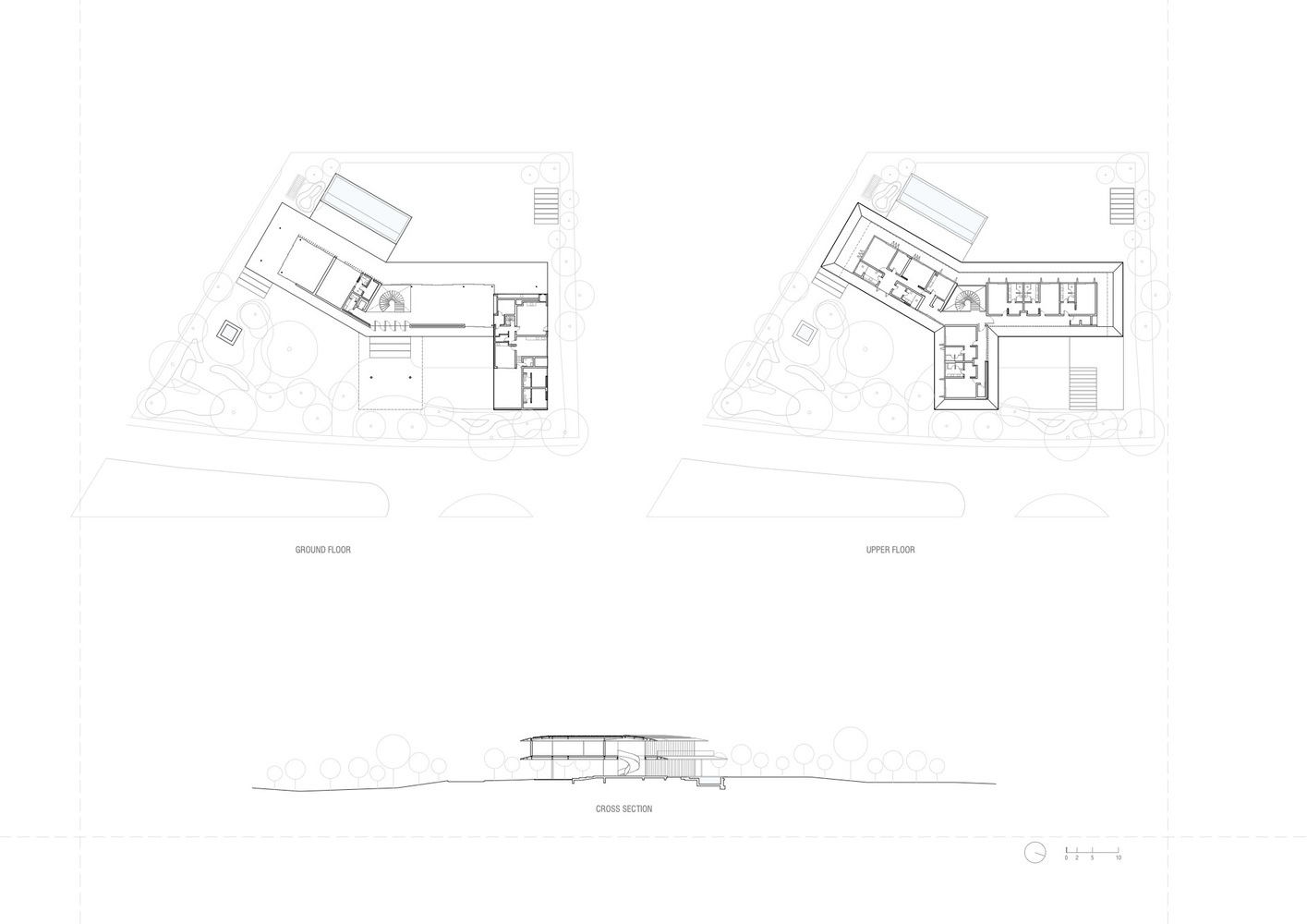
Located in the beach town of Paraty, Rio de Janeiro, and with direct access to the sea, the ART Residence does not reveal itself at first glance.
Among several original and preserved trees on the land, the precise and orthogonal lines of its facade dematerialize in the tortuous and organic movements of nature.
The visitor is welcomed by a welcoming porte-chochère, resulting from the cantilever of the volume above. The street facade is covered with stone slabs, which provide privacy to the interior of the house and create an interesting visual contrast with the landscaping.
The doors open onto a grand entrance hall, whose focal point is an imposing sculptural staircase in travertine and wood. From this point, the three main axes of the house are developed.
Continuing to the right are the social areas, with a living room, dining room and gourmet area, completely integrated with the veranda through large glass panels.
To the left are located the family room, gym and sauna, which open onto the pool and an extensive lawn that runs down to the sea. At the clients' request, an alfresco area was designed on the lawn, creating a pleasant outdoor dining space for the family.
To maximize the views of the sea and mountains, we opted for a second floor, where three axes accommodate the suites: one for the couple, the second for the children and the third for guests.
The family suites are connected by a generous balcony from which one can observe the activities on the lawn and the ocean horizon. The volume of the guest rooms becomes the cantilever of the portecochère, supported by a metal lattice structure.
The choice of a lighter wood-tone ceiling created an interesting contrast with the darker shades of the facade. In addition, double eaves provide greater protection from the elements, while careful landscaping creates areas for preserving old trees on the property.
Signed furniture, designer pieces and works of art make up the decor, carefully curated by the oMice in conjunction with the clients.
































