M. Sironi Academy Of Fine Arts
ARCHITECTS
Lerua Studio Associato Di Architettura
ENGINEERING
Ip Ingegneria
ARCHITECTURAL DESIGN LERUA STUDIO
Architect Fabiana Ledda, Architect Paolo Russo
CONSTRUCTION COMPANY
Abe
ARCHITECTURAL DESIGN COLLABORATORS
Studio Cst, Engineer Francesco Sanna, Architect Riccardo Onnis, Geologist Maddalena Moroso
MANUFACTURERS
Secco Sistemi, Amonn, Diasen, Fassa Bortolo, MARAZZI, PREFA, Schindler , marini
PHOTOGRAPHS
Aldo Amoretti
AREA
1888 m²
YEAR
2025
LOCATION
Sassari, Italy
CATEGORY
Educational Architecture, University, Other Facilities
English description provided by the architects.
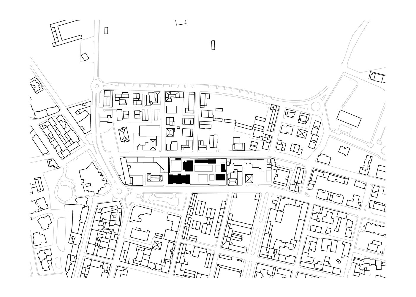
In the heart of Sassari, the redevelopment project for the Mario Sironi Academy of Fine Arts, located on Via Duca degli Abruzzi, represents a conscious and necessary architectural gesture, capable of reactivating the dialogue between the institution and the urban fabric.
This project goes beyond restoration, reshaping the complex's boundaries to make it permeable, welcoming, and contemporary.
The proposal is grafted onto a diverse set of buildings and a previously undefined open space, transforming them into a coherent, recognizable, and distinctive system.
The measured and respectful intervention restores a new legibility to the whole through a functional reorganization and architectural reinterpretation, in which the spatial relationships between interior and exterior are reimagined in light of a renewed centrality of the collective experience.
The restoration of the facades, the timely replacement of window frames, and the upgrade of systems:
these are technical operations, certainly, but imbued with a deeper design vision, oriented toward comfort, sustainability, and a concept of space that prioritizes openness, light, and connection.
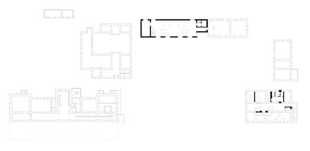
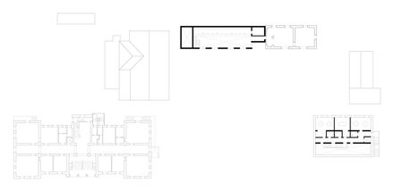
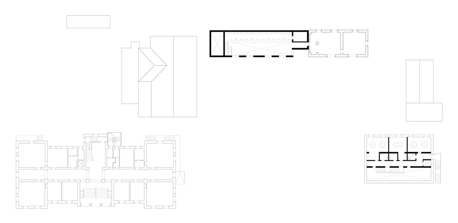
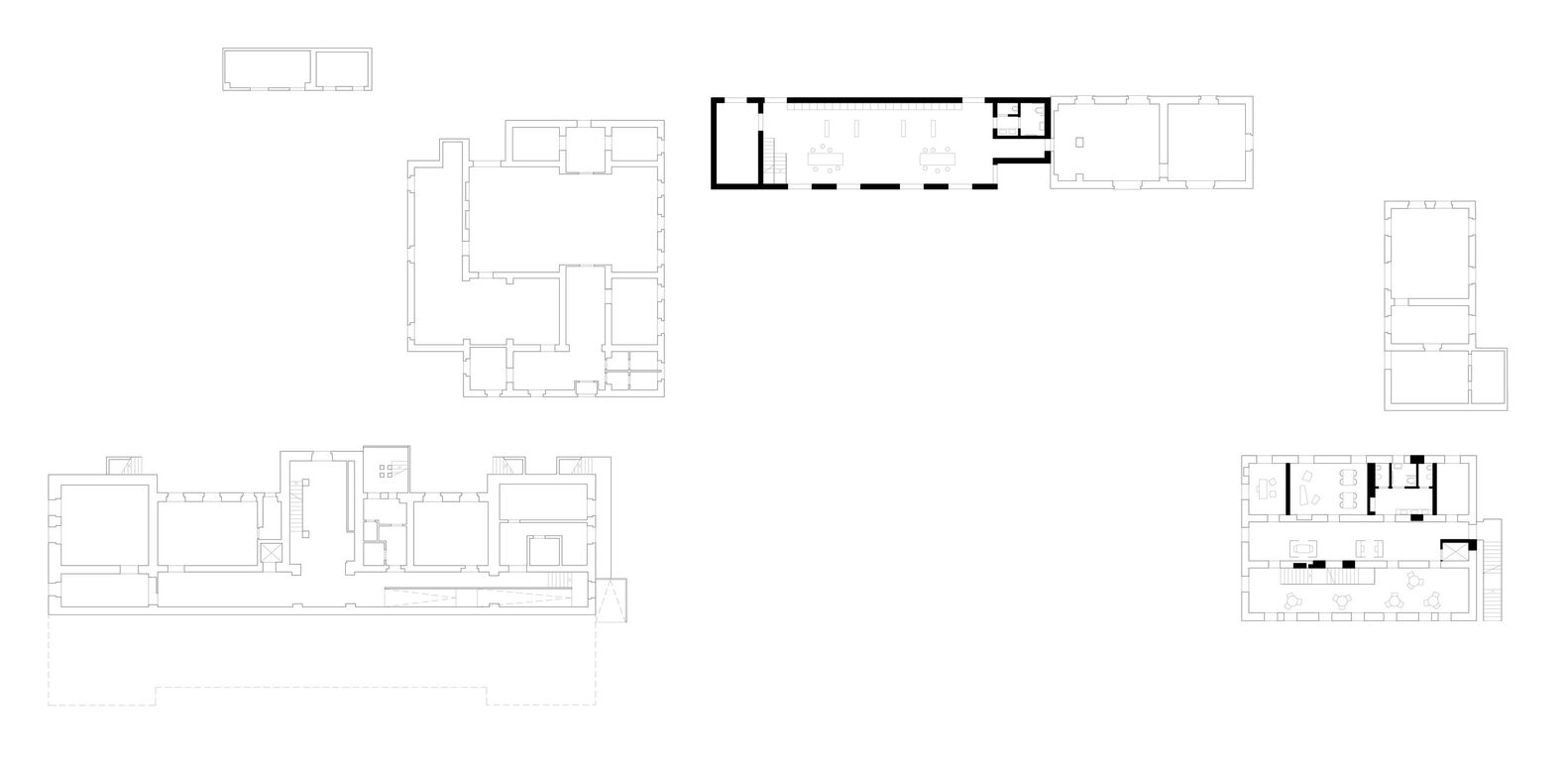
Particularly significant is the transformation of the former Medical Clinic:
from a closed container to a living, fluid organism, traversed by solid and double volumes that articulate sequences of spaces dedicated to reception and work.
Here, architecture becomes a narrative, a measure of collective living, where the verticality of the spaces introduces a new dimension.
Next door, the Engraving Pavilion expands, welcoming a new volume that dialogues with the existing structure without camouflage.
A contemporary insert in brick-red hues, it reinterprets the geometries and materials of the context with its own language, while maintaining a chromatic and formal coherence that facilitates its integration.
It is a calibrated gesture, which declares its contemporaneity without sacrificing continuity.
Outside, the new network of pathways and themed gardens creates open spaces that are not just transit hubs, but places for rest, meeting, and outdoor study.
Greenery becomes an active part of the composition, helping to define a new porosity between the Academy and the city, between the institution and everyday life.
Greenery becomes an active part of the composition, helping to define a new porosity between the Academy and the city, between the institution and everyday life.



















