
The West Bund Grand Theater
ARCHITECTS
Schmidt Hammer Lassen Architects
THEATER CONSULTANT
Theater Consultant: Theatre Projects
LANDSCAPE
James Corner Field Operations, Shanghai TIANHUA Architecture Planning & Engineering Ltd
ACOUSTIC CONSULTANT
East China Architectural Design & Research Institute (ECADI)
DESIGN TEAM
Chris Hardie (Principal in charge), Chao Chen (Project Director), Mai Zhang (Project Architect), Jing Lin, Bozhena Hoida, Xiao Sun, Tianda Ge, Yiwen He, Puze Huang, Juno Li, Yuqian Lu, Puchun Zhang, Joey Zhang, Jingjing Zhang, Fangzhou Zhu, Sebastian Correa, Jiaai He, Steven Morton, Rasmus Duong-Grunnet, Maria Vlagoidou, Tasha Ye Feng.
CONTRACTOR / BUILDERS
Shanghai Construction Group (SCG), Shanghai Building Decoration Engineering Group
LOCAL ARCHITECT
Arcplus Institute of Shanghai Architectural Design & Research, Shanghai Xiandai
FAÇADE CONSULTANT
EcoFace International Group
CLIENT
West Bund Group
MANUFACTURERS
Aluca, Dianyue, Huiquan, LOPO
PHOTOGRAPHS
RAWVISION studio
AREA
23177 m²
YEAR
2025
LOCATION
Shanghai, China
CATEGORY
Theaters & Performance
English description provided by the architects.
The West Bund is the most rapidly developing arts, culture, and commercial district in Shanghai.
Located along the banks of the Huangpu River just south of the city center, it represents a concerted effort by the Shanghai Municipal Government to create an iconic world-class urban waterfront comparable to the Paris Rive Gauche and London South Bank.
Formerly an industrial zone built out during the early 20th century, the current development is guided by a master plan that combines existing structures and new buildings with a pedestrian-oriented landscape that encourages a lively, bustling atmosphere.
When completed, the 9.4-square-kilometer West Bund will be the largest cultural district in Asia.
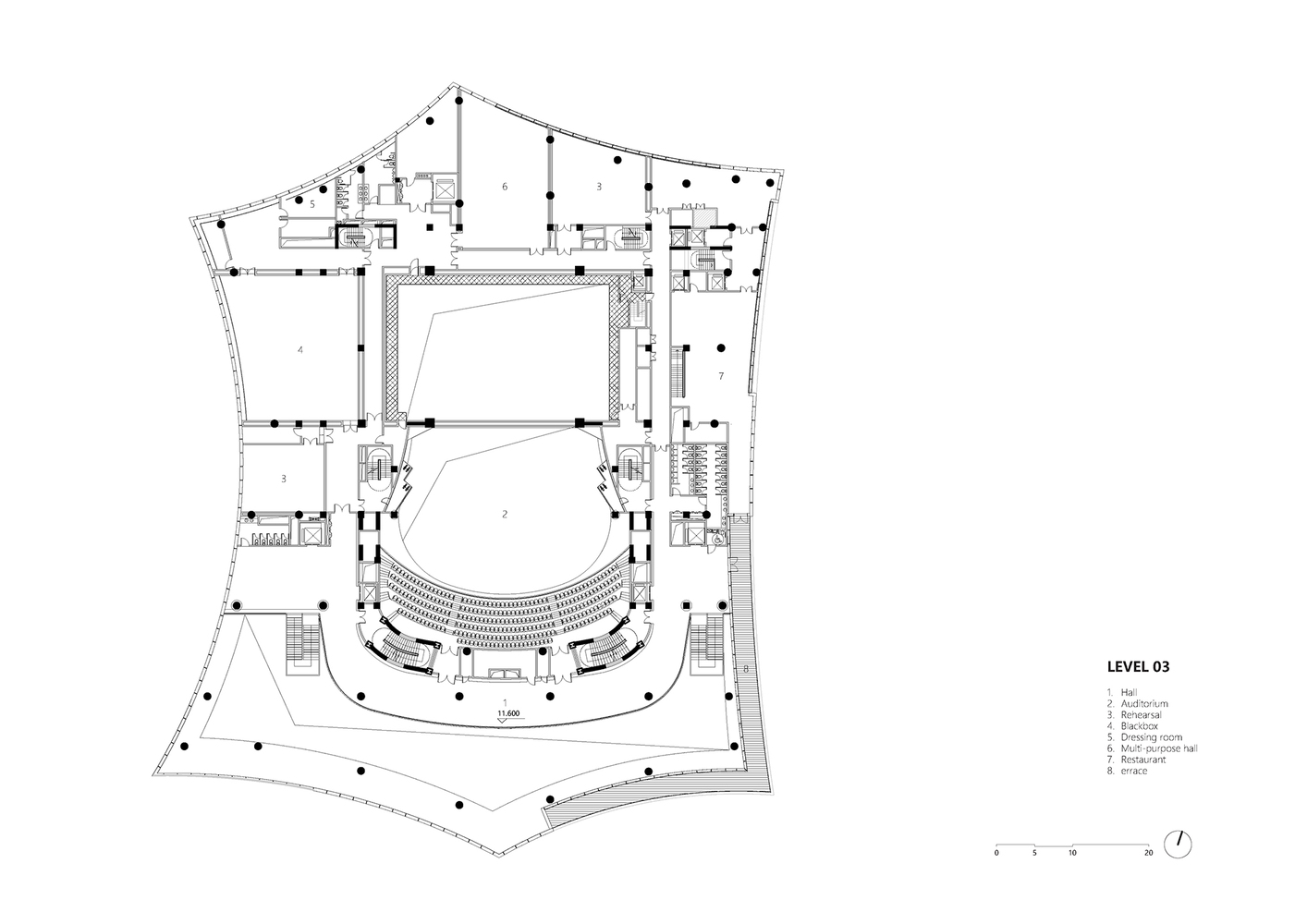
The West Bund Grand Theater is one of the district's anchor art venues, accommodating a 1,600-seat main auditorium and a 200-seat intimate black-box theater for experimental performances.
The new theater is conceived as one half of a yin-yang partnership with the newly opened West Bund Dome, a renovated and adaptively reused historic structure adjacent to the theater.
The dome is translucent, exuding light in the evenings, while the theater is monolithic and abstract.
The dome was once a pre-homogenization facility for China's largest cement production plant; the theater celebrates this heritage as a new concrete mass.
Glass Fiber Reinforced Concrete (GFRC) was designed in a series of horizontal organic forms that are composed to mimic the constant movement of the Huang Pu River.
The Huang Pu River is so important for Shanghai," says SHL Design Director Chris Hardie.
"So, having a location right on the riverfront is extremely privileged.
From there, you become acutely aware of how busy the river is. It is never still, always moving, slowly carrying boats that are of a similar scale to the Grand Theater building.
When you walk toward the river, the image of the water is powerful. We wanted the West Bund Grand Theater to represent this.
While the main auditorium and black box are designed to be world-class performance venues, the West Bund Grand Theater offers more than superb acoustics and sightlines.
A large outdoor plaza emphasizes the public nature of the project, and throughout the interior public spaces, expansive windows offer views across the river and toward the rest of the West Bund district.
Generous terraces, one on the roof and another halfway up the elevation, provide perches for theater goers to enjoy a moment outside between acts.





































