
Kimpton Las Mercedes Hotel
ARCHITECTS
Moneo Brock Studio
INTERIOR DESIGN
Pepe Deudero y Linette Nardi
AUTHOR ARCHITECTS
Belén Moneo, Jeff Brock
CONTRACTOR / BUILDERS
Aybar Constructora
DESIGN TEAM
Javier del Pozo, Federico Pérez, Laura Cerpa, Peter Rae, Laura Alonso, Francisco Blázquez, Gador Potenciano, Yaiza Camacho, Maite Rodríguez, Enrique González, Miguel de la Ossa
LIGHTING DESIGN
CA2L
LANDSCAPE DESIGN
Estudio PWP
OPERATOR
Iberostar
ELECTRICAL CONSULTANTS
Estel
CARPENTRY
Alumader
TECHNICAL ARCHITECT
Aparejadores ACC
STRUCTURAL ENGINEEING
Calter
BUILDING SERVICES ENGINEERING
Engineers Assesors
MANUFACTURERS
Ladrillerias Mallorquinas, Leds-C4, Porcelanosa Grupo, Tolder
BRAND
KIMPTON IHG
PHOTOGRAPHS
Sergio López
AREA
6389 m²
YEAR
2024
LOCATION
Santo Domingo, Dominican Republic
CATEGORY
Hotels
Founded in 1496 Santo Domingo is the oldest city in the New World and a historical landmark in Latin America.
As the capital of the Dominican Republic, its Colonial City has been declared a UNESCO World Heritage Site.
This iconic historic district, with a Renaissance layout dating back to the 16th century, is undergoing an ambitious transformation that goes beyond the mere restoration of a deteriorating environment.
It is a comprehensive effort to restore its essence, adapt it to contemporary needs, and turn the Colonial City into a model of coexistence between past and present.
Kimpton Las Mercedes is a hotel project that forms part of this ambitious revitalization plan for Santo Domingo’s Colonial City.
Located in the heart of this emblematic historic center, the new hotel exemplifies the trend toward a balance between preservation and modernity in the colonial district.
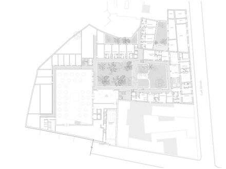
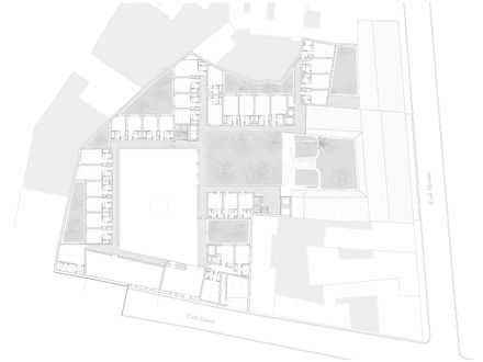
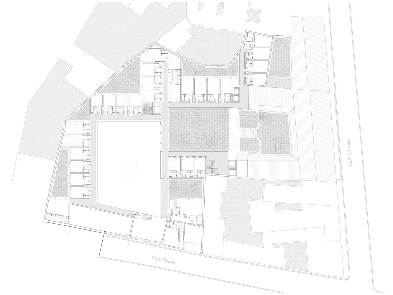
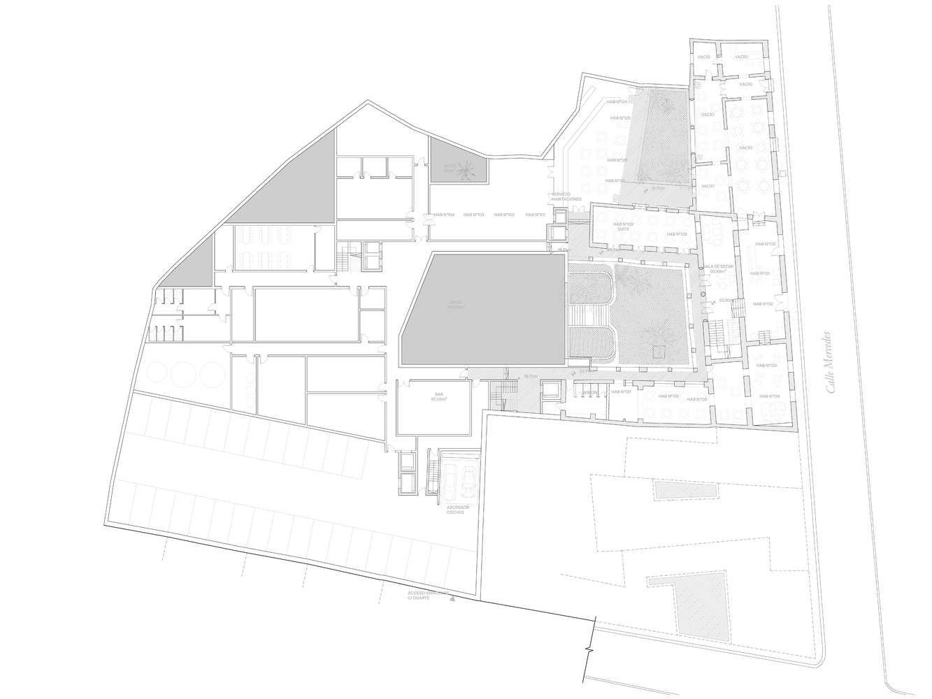
This architectural project reinterprets the rich heritage of the Colonial City, transforming a historic block through an interior public space deeply rooted in the local context.
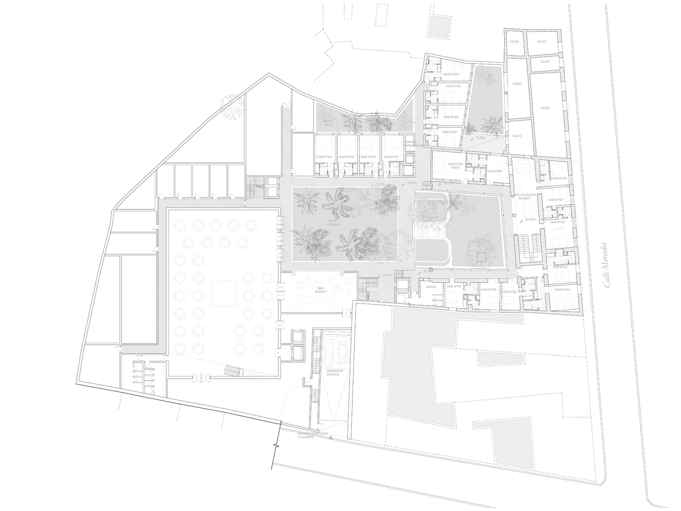
The design of this 130-room hotel respects the original facades of the building while introducing contemporary elements that harmonize with the urban surroundings.
New elevated structures, additional courtyards, and an architectural layout that avoids massive impact ensure integration with the historical scale of the area, contributing to the district’s regeneration.
The central courtyard, a key feature of the original structure, has been carefully preserved during the renovation.
This space, which retains its native vegetation, has become the heart of the hotel, providing a connection to nature and the colonial legacy.
The surrounding corridors maximize natural light and cross ventilation, creating a tranquil, tropical atmosphere.
All rooms are designed to offer balconies overlooking the interior courtyards, while some include private terraces with jacuzzis, elevating the comfort experience.
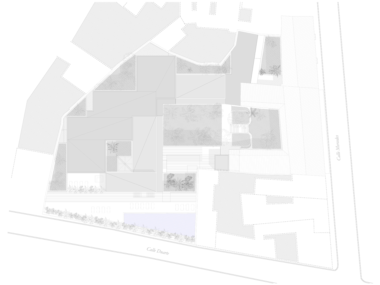
On the rooftop terrace, guests can enjoy a spacious solarium with a swimming pool, a gym, and other amenities.

This space offers spectacular views of the sea and the historic district, creating a unique visual connection with the cultural heritage of the Colonial City.
The hotel's interior stands out for its use of local materials such as travertine, wood, and ceramics, which contribute to a natural and authentic aesthetic.
Additionally, the carefully selected wood, with a low carbon footprint and insulating properties, reflects the project’s commitment to sustainability, adapting to the region’s tropical climate.
This hotel, designed to connect guests with the city’s cultural heritage, also offers a comprehensive experience with event and meeting spaces, restaurants, and a hall ideal for weddings and corporate gatherings.
With its blend of luxury, history, and sustainability, Kimpton Las Mercedes positions itself as a premier destination in Santo Domingo, offering guests a unique experience in one of Latin America's most distinguished historic centers.
































