ARCHITECTS
Ángel García Estudio
LEAD ARCHITECT
Ángel García
DESIGN TEAM
Francisco Espinoza, Felipe Rebolledo, Diego Alzaga
PHOTOGRAPHS
César Béjar
AREA
425 m²
YEAR
2024
LOCATION
Crucecita, Mexico
CATEGORY
Houses
English description provided by the architects.
The Red House is located in Bahías de Huatulco, Oaxaca, in a residential area a few minutes from the coast, in a completely urban environment with no sea views.
The property is surrounded by four houses on three of its abutments and opens to the west onto a main street with views of a natural area not yet developed.
There are three pre-existing trees on the site; in the front and a central position, there is an Alejo/Matapescado (Piscidia Carthagenensis), an endemic deciduous tree.
Very close to it grows a young guayacán with purple flowers (Guaiacum coulteri), a tree in danger of extinction and very slow growing, and finally, in the back there is a Cuahulote (Guazuma ulmifolia), an evergreen tree of medium size abundant in the low Oaxacan jungle.
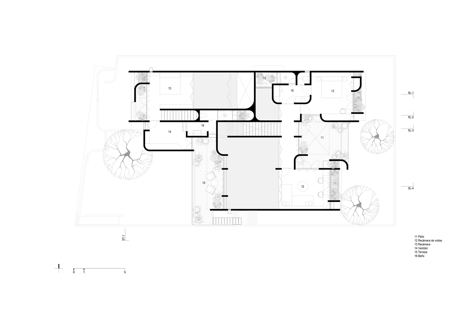
The project aims to create an architectural scheme that allows for three independent units for the same family: an individual area for the eldest son, an area for the parents, and a third space for visitors.
The objective was to provide compartmentalization and privacy between the units, through connection and flexibility.
The project strategy was to articulate these three units through exterior and semi-exterior spaces, respecting the existing trees on the property, and locating the main access between the Guayacán and Alejo trees. A corridor/gallery was created around the pool as an access, connection, and central circulation element.
An envelope was designed with two blind facades on the north and south sides of the property that block the views of the adjoining houses and two permeable facades on the west and east sides that are linked to the exterior through patios, terraces, balconies, and gardens.
The west and east facades function as devices made up of a series of wall fragments, windows, planters, flowerpots, built-in furniture, ironwork with shutters, balconies, and eaves that allow the building to be inhabited, privacy and ventilation regulated, and security, views, and sunlight controlled.
The house is conceived as an element of exploration and search for an architectural identity that reinterprets the memories and routines of the family that lives there, integrates the objects, furniture, and crafts acquired over time, and expresses the identity of the place with the use of local construction materials such as clay bricks, ironwork, and shutters, reflecting the warm and reddish tones of Oaxacan ceramics in the pigmented concrete walls.
The project does not pursue the aesthetic ideal of simplifying forms, spatial purity, and diminishing materiality.
On the contrary, the house seeks complexity, artisan tradition, the exploration of curves, the paths of the labyrinth, the collage of textures and natural materials, the superposition of layers, the whim of vegetation, the modulation of natural light, and above all, it attempts to reflect the warmth of home, domesticity, and the particular identity of the family that lives there.


























