Nativa House
ARCHITECTS
From
STRUCTURAL PROJECT
Iván Gorrostazo
CONSTRUCTION COMPANY
Insaco
LIGHTING PROJECT
Estudio Hofstadter Fregosi Y Asociados
LIGHTING
Lyte
CARPENTRY
Cosia Y Pombo
OPENINGS
Alushop
TEAM
Matías Carballal, Mauricio López, Santiago Alvante, Alejandra Arribeltz, Paula Bachino, Laura Castell, Pablo Courreges, Hernán Gómez, Emiliano Lago, Sebastián Lambert, Aldo Lanzi, Lucía Martinotti, Cecilia Mautone, Diego Morera, Victoria Muniz, Agustina Vigevani.
STONES
Laviere Vitacca
PHOTOGRAPHS
Aldo Lanzi
AREA
220 m²
YEAR
2024
LOCATION
Montevideo, Uruguay
CATEGORY
Houses
A vacant house in a residential neighborhood of Montevideo, Uruguay, encounters a family returning to the country after many years abroad.
The project for the new Native House is the result of the dialogue that begins after this encounter, where spaces, rituals, and technologies from different eras intertwine, tension, and coexist to create something new.
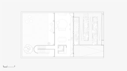
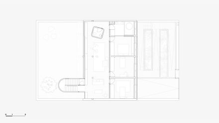
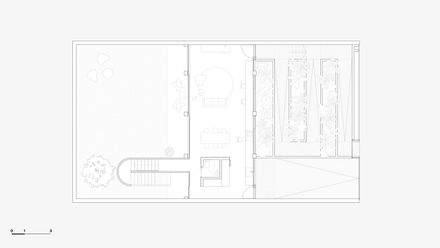
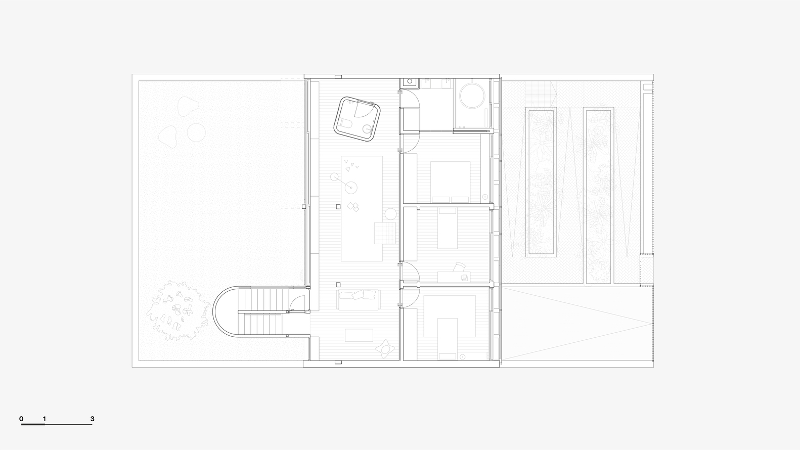
While the two floors of the original construction from 1956 were markedly different ― the upper floor oriented towards family and social life and the lower floor designated for services and garages ― the transformation project proposed to conceive them as spaces of similar everyday importance.
To achieve this, all the interior divisions, the staircase, and parts of the existing façade were removed to expose its simple structure and give prominence to the void.
Furthermore, access to the house, which previously occurred via a bridge connecting the street to the upper floor, now takes place by descending a ramp through a wild garden.
Thus, the lower floor opens up and links the front with the backyard.
This change in the way of moving through its spaces is reinforced by the incorporation of two devices:
a unique interior-exterior staircase that connects the two floors with each other and with the new semicircular greenhouse-workshop that appears on the rooftop.
Thus, the entirety of interventions provides a framework for a lively and affectionate second life for this house and allows us to imagine ways of living that value and enjoy reusing what already exists.





































