QUILOMBO DA GAMBOA LIBRARY PAVILION
Moradia Comum [Lanchonete <> Lanchonete]: Amanda Arcuri + Danilo Filgueiras + Gabriel Martucci
ARCHITECTS
Moradia Comum [Lanchonete <> Lanchonete]: Amanda Arcuri + Danilo Filgueiras + Gabriel Martucci
PROMOTION
Conselho De Arquitetura E Ubanismo Do Rio De Janeiro Cau-rj
COORDINATION
Amanda Arcuri, Danilo Filgueiras, Gabriel Martucci
INTERN
Mariana Guimarães
ENGINEERING & CONSULTING > OTHERS
Plínio Calil
PARTNERSHIP
Quilombo Da Gamboa + Rede Jubileu Sul
GENERAL CONSTRUCTION
Concreto Rosa
PHOTOGRAPHS
Estudio Quadrante
AREA
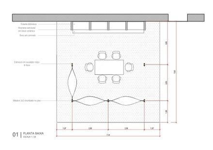
50 m²
YEAR
2023
LOCATION
Gamboa, Brazil
CATEGORY
Cultural Architecture, Library
The Pavilion Library of the Gamboa Quilombo was built from construction workshops, in the model of an experimental site, as part of the Common Housing project_Phase 1:
Ground, funded by the Technical Assistance for Social Interest Housing program of the Architecture and Urbanism Council of Rio de Janeiro (ATHIS CAU RJ), focusing on the dissemination of architectural culture.
The workshops focused on the construction of a collective space in the occupation, where various types of cultural activities open to the public already took place, as well as the dynamics of the families in the Quilombo.
The architectural project was developed after a collective debate on the program of the space and the most suitable architectural solutions within a participatory and educational project, in addition to an analysis of similar projects in Latin America, with the participation primarily of women living in occupations in the region.
The goal, in addition to the construction of the pavilion, was to experiment with different materials that could contribute to the construction repertoire of women who self-build their houses in occupations in the central area of Rio de Janeiro,
presenting low-cost and low-maintenance materials such as structural ceramic bricks and eucalyptus roundwood as alternatives to the standard construction of concrete and hollow brick masonry.
The Common Housing project, through an action against hegemony, seeks the co-production of community spaces in the territory of Little Africa,
legitimizing and recognizing the authenticity of the spaces created by non-architects, whose spatial dynamics, in turn, contribute to our practice in the field of architecture and urbanism.















