
St. Louis Symphony Orchestra's Powell Hall
ARCHITECTS
Snøhetta
ARCHITECT OF RECORD
Christner Architects
CONSTRUCTION MANAGER
Bsi Constructors
PROJECT LEAD AND DESIGN ARCHITECT
Snøhetta
THEATRE PLANNING CONSULTANT
Schuler Shook
MANUFACTURERS
POHL, 9Wood, Dawson, Interstate Brick, Kawneer, Series Seat
ACOUSTICS DESIGN
Kirkegaard
PHOTOGRAPHS
Sam Fentress
AREA
64000 ft²
YEAR
2025
LOCATION
St. Louis, United States
CATEGORY
Concert House, Extension
Beginning in 2019, Snøhetta, in collaboration with Christener Architects, Schuler Shook, BSI Constructors, and Kirkegaard, led the expansion and modernization of the St. Louis Symphony Orchestra's historic performance space, Powell Hall.
To ring in the hall's centennial in 2025, the organization embarked on an ambitious 64,000-square-foot expansion with Snøhetta as design architect and landscape architect.
The project will allow the concert hall to be more fully accessible and open to the community, creating a facility that supports and nurtures the creative process from idea to performance.
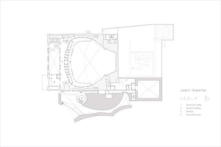
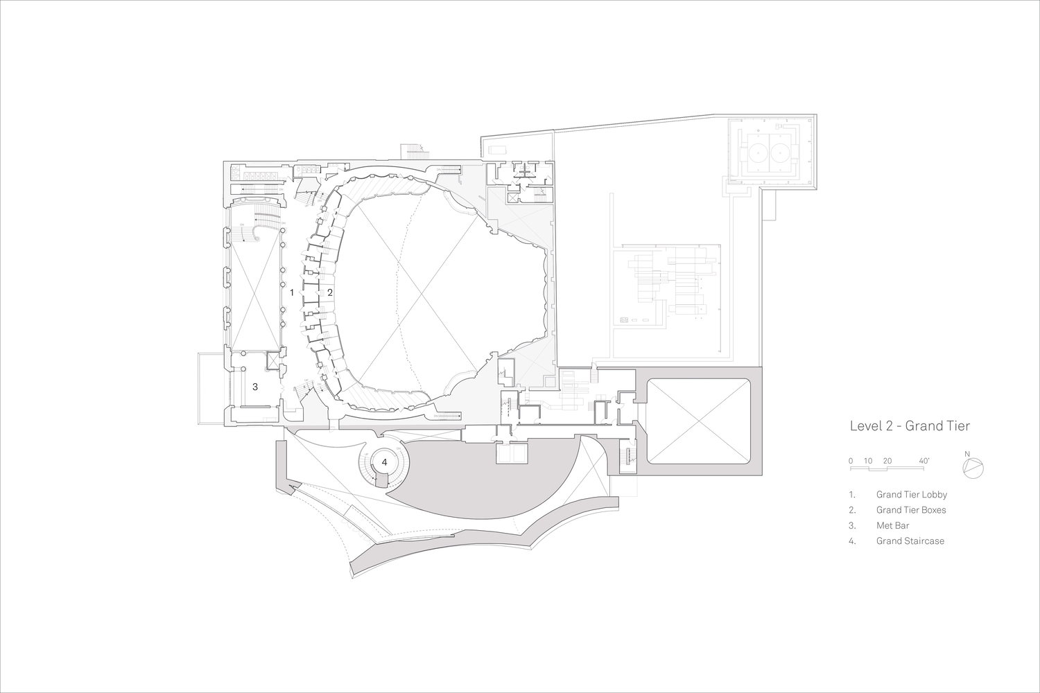
At the renewed Powell Hall, a collection of public spaces will work in concert with an expanded lobby and back-of-house to provide universal accessibility to the public, as well as educational facilities and improved back-stage spaces that enhance all aspects of community use of the concert hall.
Drawing on the spatial language of historic concert halls and the instruments within, the entry is shaped as a series of canted shells assembled from raked masonry, creating a front-of-house addition defined by simple inclined surfaces and arched openings.
The arched urban windows offer a sense of joy and creative energy within, giving a glimpse of what lies inside even before entry.
Inside, a suite of gathering areas situated within a triple-height space include terraces that overlook one another, allowing visitors to both see and be seen while attending performances.
Similarly inspired by the lyricism of music itself, Snøhetta designed a renewed public plaza at the corner of Grand Boulevard and Samuel Shepard Drive that brings the activities of the concert hall outside into a welcoming, sunlit square.
Urbanistically, the space focuses energy among our neighboring arts institutions and creates a dynamic new public space that serves many functions—from a space for gathering before events, to a space that integrates vehicle drop-off further east, to a plant-filled garden for the enjoyment of nature for all.
In other areas of the site, fluid circulation and arrival zones move people quickly to their destinations while also offering additional space that can be used for flexible programming. A series of routes throughout the plaza provides accessible pathways from multiple directions. Towering planting groves frame the entries, extending a sense of welcome to visitors.
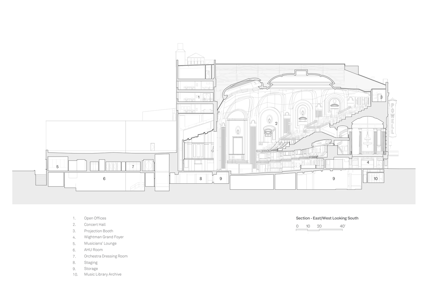
A back-of-house expansion along the eastern side of Powell Hall provides state-of-the-art spaces for staff and musicians, community events, educational activities, and other collaborative programming while serving as a hub for innovation across artistic disciplines.
The expansion creates modernized rehearsal spaces for SLSO ensembles, expanded backstage rooms, new media and recording suites, and storage areas for musician and guest artists.
The reconceptualized St. Louis Symphony Orchestra signals a renewed commitment to music, collaboration, and community—setting a new standard for concert halls beyond and establishing a resonant dialogue with the past.





















