
Thoravej 29
ARCHITECTS
Pihlmann Architects
BRANDING
Studio C
WAYFINDING
Borg Brückner
CLIENT
The Bikuben Foundation
CLIENT ADVISOR
Emcon A/s
ENGINEER
Abc Consulting Engineers
INTERIOR CONSULTANT
Sara Martinsen
CONTRACTOR
Hoffmann A/s
ELECTRICIAN
Elcon A/s
GARAGE DOORS
Hörmann
METAL WORK
V-steel A/s
PLUMBING FIXTURES
Vm Elektro, Børma, Duravit
MANUFACTURERS
Duravit, Archival Studies, Best A-V, Bgb, Børma, Convert, ELCON, EVERS, Ecofoss, Emil Nielsens Smedeværksted, Fischer Gardiner, Fischer Lighting ApS, Habila a/s, Heartsteeling ApS, Hormann, Hydro Building Systems Lüdenscheid, Jeld-Wen Denmark A / S, Kvadrat, Ludvig Svensson, Lysiplex, +7
LIFECYCLE PROJECT / LEED
Kristoffer Negendahl, Ph.d, Technical University Of Denmark
BUILDING INTEGRATED ART
Minae Kim, Santiago Mostyn, Martine Syms, Wu Tsang
PHOTOGRAPHS
Hampus Berndtson
AREA
6336 m²
COMPETITION
2021
YEAR
2025
LOCATION
Copenhagen, Denmark
CATEGORY
Museums & Exhibit, Adaptive Reuse, Renovation
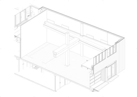
Floor slabs tilted into staircases, facade elements reworked into pavement, fittings transformed into furniture – the transformation of Thoravej 29 allows the building to recycle itself.
It reflects a pragmatic approach to the available resources, reassessing the value of the existing by treating the building as its own material bank.
Originally built in 1967 by architect Erik Stengade, the former factory building most recently served as a municipal disability center for the City of Copenhagen.
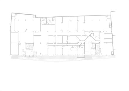
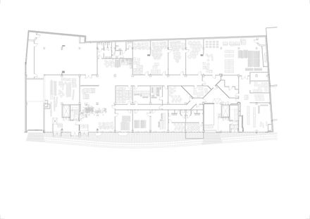
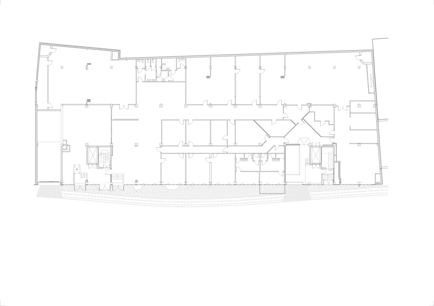
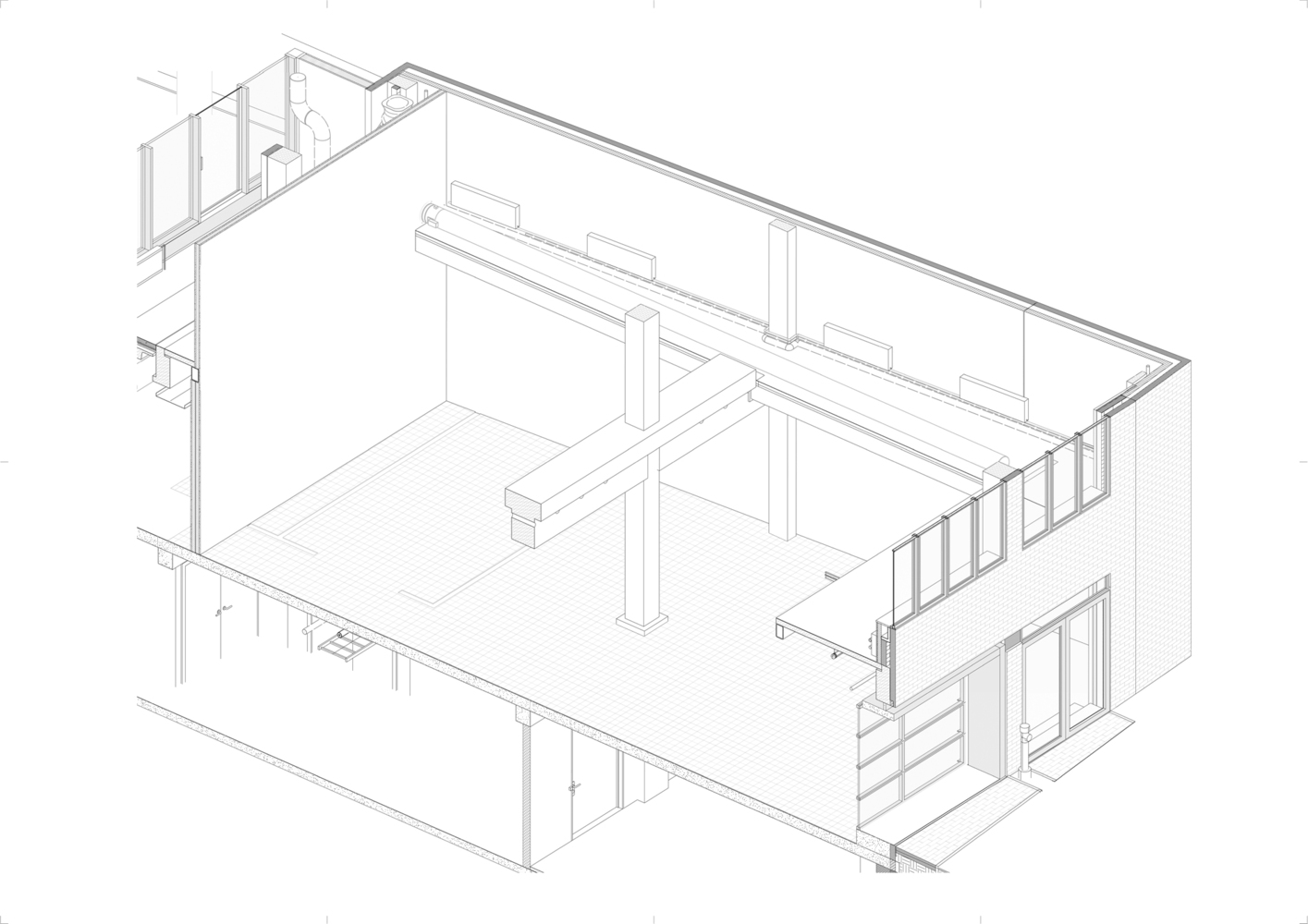
During the transformation, it was stripped down to its core: a column-beam structure with TT-slabs and facades marked by horizontal window bands. The new program required fundamental changes to the building's anatomy.
Lightweight walls and built-in furnishings were removed, while other elements were relocated.
Everything dismantled in the process was stored with the intention of being reused in the final project – even components typically considered insignificant were treated as potential resources to be reintegrated.
An external analysis shows that the transformation achieved a reuse-or-recycling rate of 95% (by weight) of existing materials, which led to a reduction in carbon emissions by up to 88% and a 90% decrease in construction waste compared to new construction.
The process involved careful dismantling and reintegration of structural elements, surfaces, and interior components.
The logic of reuse extended beyond carbon metrics into the building's material articulation and spatial configuration.
The degree of processing varies – some elements remain exactly as before, while others have been resurfaced, shredded, compressed, repositioned, or reinstalled.
The transformation is guided by the inherent physical properties of each component, rather than its conventional or aesthetic value.
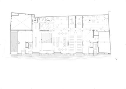
The building's distinctly horizontal organization has been reconfigured by converting load-bearing TT-slabs into broad staircases and integrated furniture.
This intervention weaves the floors together, creating spatial variation and shifting vertical thresholds. The listed facade facing Thoravej, once closed off, has been opened.
The upper levels have been preserved, maintaining the area's vanishing industrial character, while the ground floor is now connected to its surroundings.
Large windows and transparent garage doors establish a direct link to the public realm, while bricks removed in the process have been reused in the paving weaving the building into the urban fabric.
These material remnants are encountered throughout, in ways both direct and discreet, recognizing the building's heritage as part of a cyclical system.
Through the pragmatic reuse of materials, its legacy is not only preserved but rather reintegrated into the novel spaces.
As a result, an informal architecture follows, marked by subtraction and adaption rather than addition.
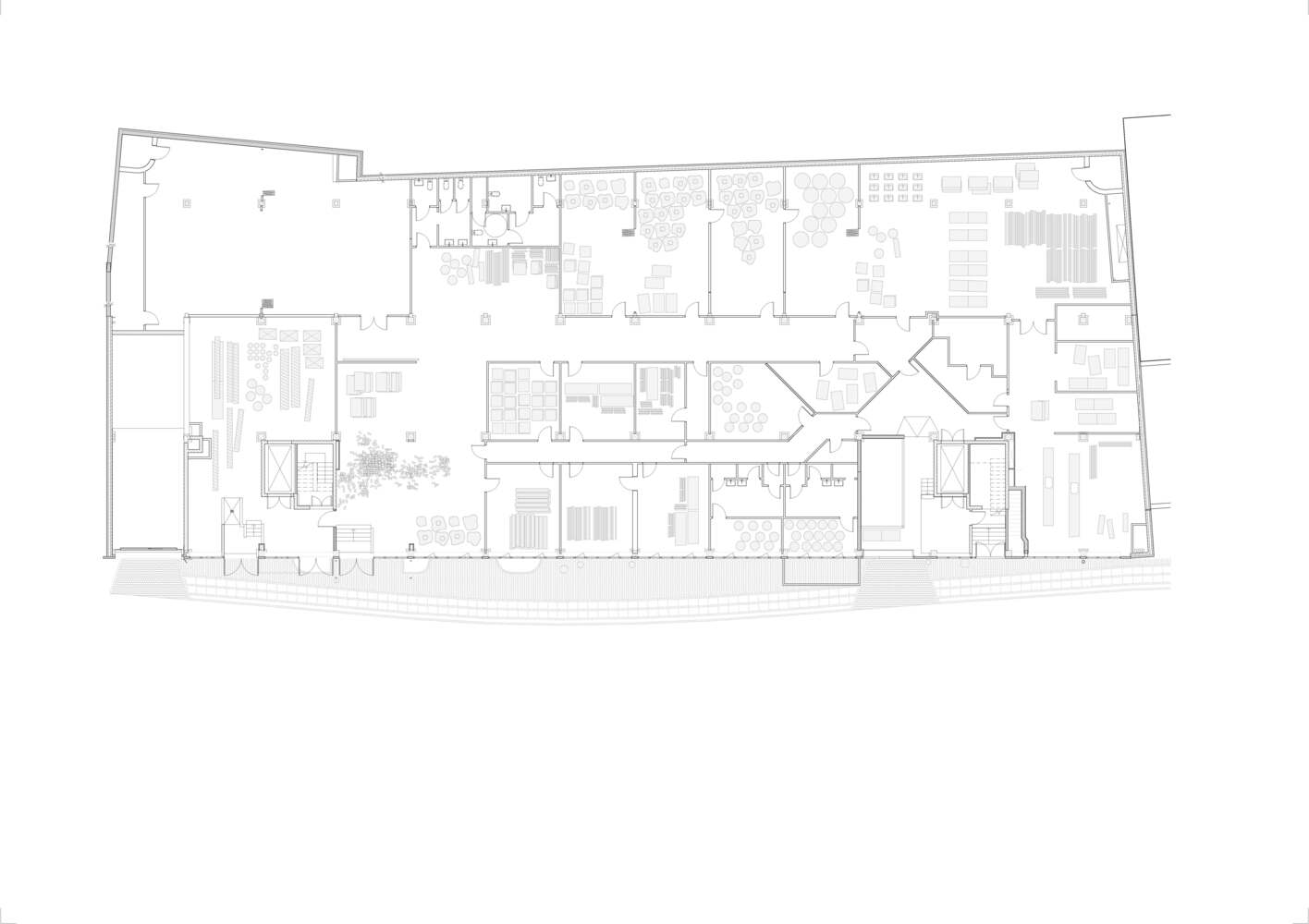
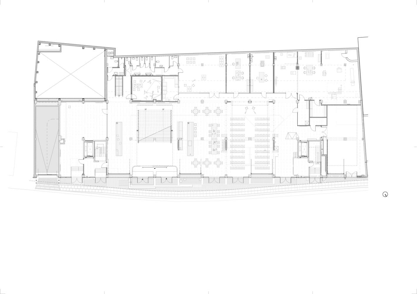
The project won first prize in an invited competition organized by The Bikuben Foundation in 2021. Today, Thoravej 29 houses stages, galleries, exhibition spaces, studios, workshops, offices, meeting rooms, a production kitchen, canteen, and café.
It is home to a community of 150 people across 30 different organizations.
The building has been awarded 'Building of the Year 2024' by Licitationen, was honoured at the Copenhagen Municipality Building Awards 2025, received Denmark's most important Renovation Award 'Renoverprisen' in 2025, and has been recognized as a finalist for the Architectural Review's 'New into Old' Awards 2025 and the Danish Design Awards 2025.























































