ARCHITECTS
Anonym
LEAD ARCHITECT
Phongphat Ueasangkhomset
ENGINEERING & CONSULTING > STRUCTURAL
Wor Consulatants
DESIGN TEAM
Parnduangjai Roojnawate, Kamolchanok Somsang
PHOTOGRAPHS
Dof Skyground
AREA
1200 m²
YEAR
2024
LOCATION
Bangkok, Thailand
CATEGORY
Residential Architecture
Pridi 41 House is located on an 800-square-meter plot of land on the corner of Pridiphanomyong Road, surrounded by a residential neighborhood and a twenty-meter-high, low-rise apartment building that faces the entire plot.
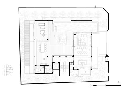
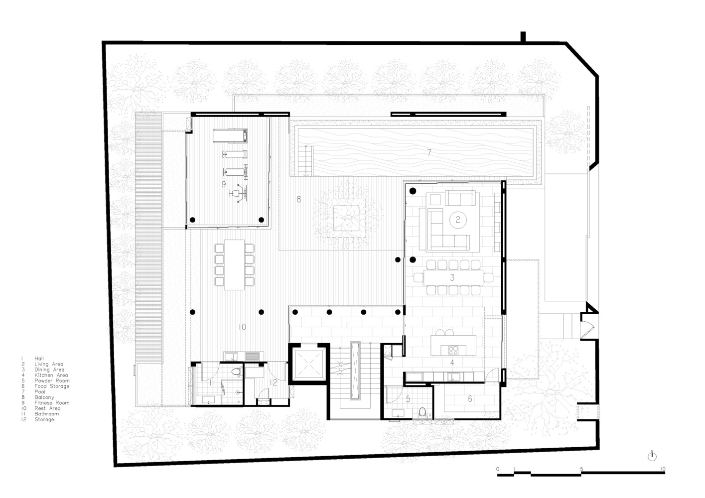
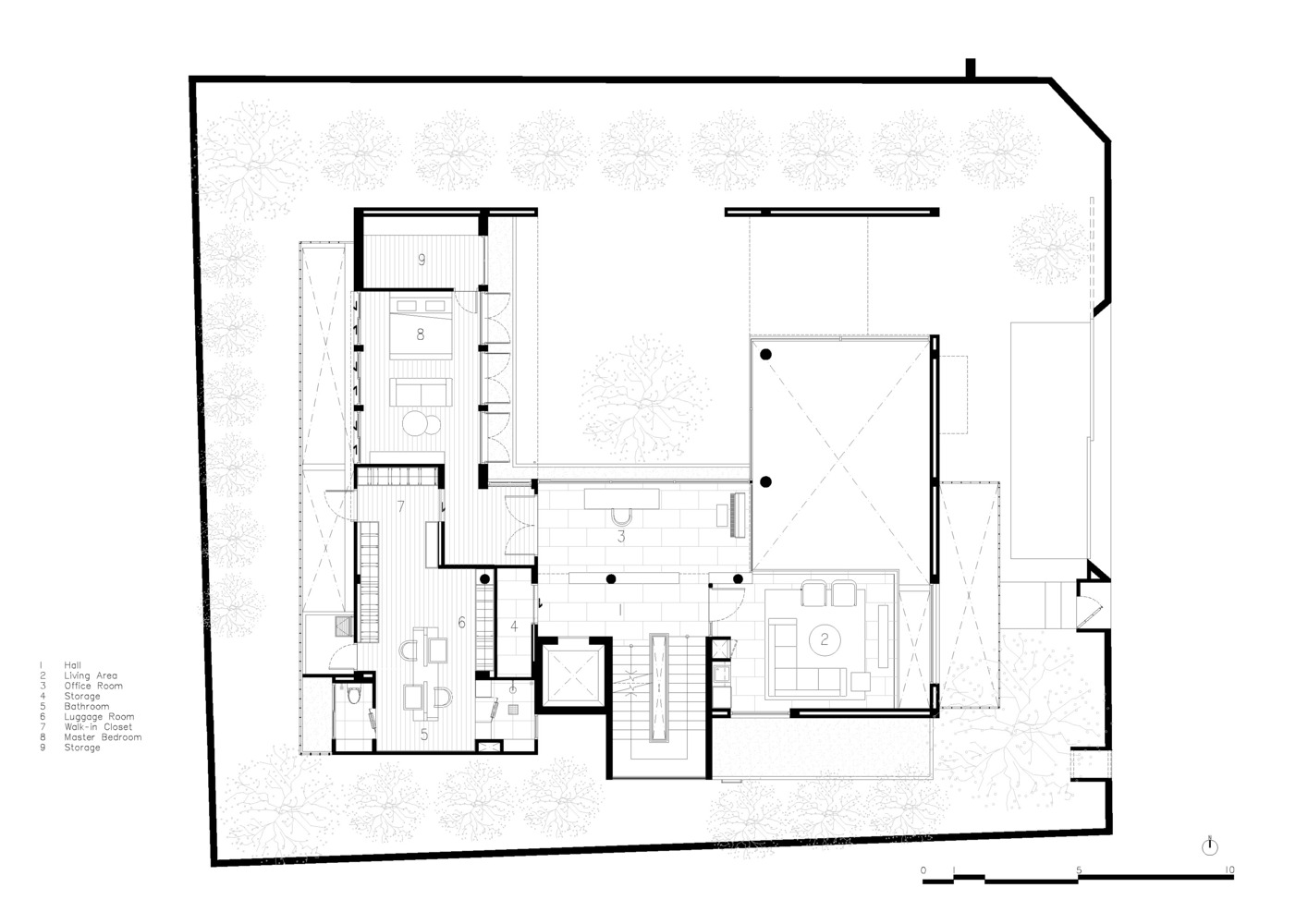
The common area, which includes the living room, dining area, kitchen, exercise room, and swimming pool, is located on the second floor, conforming to the functional requirements of the residents.
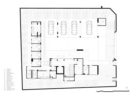
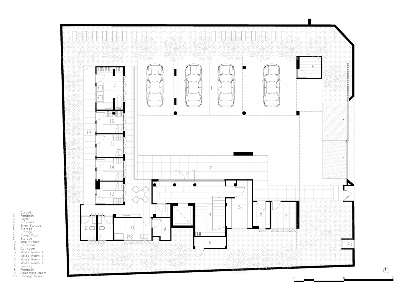
This allocation intends to ensure the efficacy and functional demands for back-of-house facilities such as the shoe storage room, storage room, Thai kitchen, rooms for the four housekeepers, kids' room, room for the entire system work, and a parking space for 6–8 cars. The zoning was realized as a vertical circulation defined by the elevator and stairwell core.
To shield the living spaces from any possible visual intrusion from the 20-meter-high apartment complex, the system work and storage are positioned to the south.
Meanwhile, the layout allows other functional spaces to gain access to the view on the north side of the property.
The design incorporates a large outdoor living space on the second story, allowing family members to relax while enjoying the presence of growing trees visible from every room in the house.
The swimming pool spans virtually the whole length of one side of the house, flanking the living room, fitness room, and outdoor dining area, providing pool view access to almost every area and significantly enhancing natural airflow.
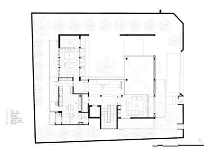
The main living area's double-space volume extends to activity spaces on the third and fourth floors, which also boast spacious, high ceilings.
The connection between these two functional areas is a deliberate attempt by the design team.
The deliberate connection between these two functional areas by the design team creates living spaces that feel more home-like because of the way certain parts of the house are visually connected.
The facilitated spatial flow, as well as how occupants use and interact with the spaces without interruption, produce a sense of connectedness in which spaces and people are not completely detached from one another.
The master bedroom opens up to early sunlight from the east with an unobstructed view of the trees and swimming pool. To the west, aluminum laths are installed to block the afternoon sun and create more privacy.
The same material can be found in the children's bedrooms on the fourth level, where it provides the needed privacy for the restroom and screens the heat coming in from the east.
Despite the fact that the primary living area is located on the second floor rather than the ground floor, Pridi House was materialized with the purpose of providing the occupants and living spaces with the best thermal comfort possible.
The curated perspectives bring a wonderful dynamic to the living experiences while offering solutions to the site's privacy concerns. With the walls protecting the home from the north, passersby are unable to see the people or activities taking place within.
It is the simplicity that design provides within the context of urban living, where thermal comfort is crafted through well-calculated orientation, ventilation, green spaces, and negative spaces, all of which are cohesively and naturally integrated into the entirety of the house.









































