Kampung Mrican Phase 1 and Microlibrary Pringwulung
ARCHITECTS
SHAU Indonesia
LEAD ARCHITECT
Florian Heinzelmann, Daliana Suryawinata
LEAD TEAM
Florian Heinzelmann, Daliana Suryawinata
PROJECT MANAGEMENT
Instansi Direktorat PKP
ENGINEERING & CONSULTING > OTHER
Pauline Boedianto
ENGINEERING & CONSULTING > MEP
Ruang Jelajah
ENGINEERING & CONSULTING > CIVIL
KOTAKU and DLH Kabupaten Sleman
GENERAL CONSTRUCTING
DIWONGSO AGUNG KONSTRUKSI
DESIGN TEAM
Aditya Kusuma, Aprilea Ariadi, Ben Kurniawan, Hoseo Viadolorosa, Muhammad Ichsan, Muhammad Arkan Haqqi, Zaky Abdullah, Bonaventura Rah Abisca, Arif Hida
PHOTOGRAPHS
Instansi Direktorat PKP
AREA
4353 m²
YEAR
2024
LOCATION
Yogyakarta, Indonesia
CATEGORY
Urban Design, Library, Community
Kampungs (villages) represent a distinct urban form in Indonesian cities, characterized by high-density, low-rise buildings.
Kampung Mrican in Yogyakarta is in proximity to two large universities and therefore provides residential rentals too.
Improving kampungs demands context-sensitive, acupunctural design rather than top-down planning, ensuring the preservation of original fabric and identity.
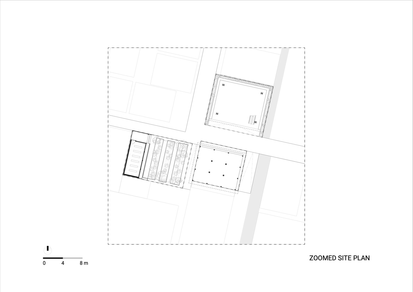
In collaboration with with PKP Directorate under the Ministry of Public Works and Housing, SHAU designed a library, playground, public space, flood-control post, a community garden, a bridge, and a sidewalk system.
The aim is to enhance living conditions by upgrading infrastructure, improving pedestrian networks, rebranding the village, and incorporating educational and play elements.
The planning process involved kampung residents. Urban and social analyses guided site selection, with the residents' active participation in the design.
The walkway along the river was a successful outcome of negotiations that necessitated a setback from the existing residences.
Safety features, like flood-control posts and fences, were designed using an interpretation of local batik patterns, integrating green plants and street lighting.
Sidewalks display historical Javanese texts conveying environmental and educational messages.
The signages provide a contemporary identity with local context.
The urban gardening community received upgraded facilities. They produce eco-enzyme products, an organic recycling practice.
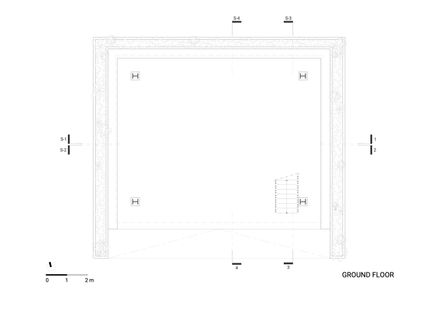
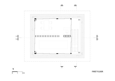
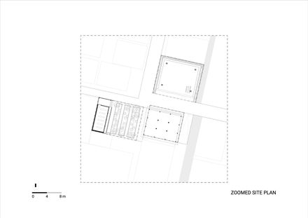
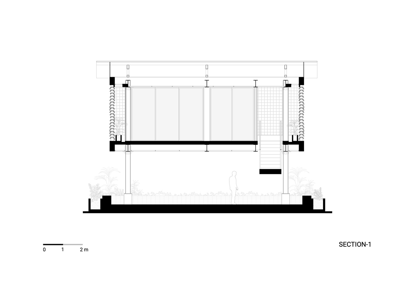
Microlibrary Pringwulung was designed to allow various functions underneath the volume on stilts, including weddings, local events, and motorbike parking.
Its terracotta facade plays with batik pattern motives from Yogyakarta, filtering sunlight and heat while allowing cross-ventilation.
A single custom terracotta shingle is used and placed into five different positions on a steel mesh for easy construction.
The terracotta is manufactured merely a few blocks away. The microlibrary, a renovated Joglo community space, and an upgraded urban farm form an activity hub in the village.
The playground combines cultural and play activities, integrating traditional games into the plaza above the wastewater treatment facility.
It features swinging seats, merry-go-rounds, a slide, and a terracotta 'Wayang' (shadow puppet) figure of Gatotkaca, a favorite local hero from the traditional literature, which also corresponds with the street name.










































