Refugio Calfuco
ARCHITECTS
Tomás de Iruarrizaga
LEAD ARCHITECT
Tomás de Iruarrizaga
PHOTOGRAPHS
Federico Cairoli
YEAR
2022
LOCATION
Valdivia, Chile
CATEGORY
Cabins & Lodges
English description provided by the architects.
This small refuge of about 50 m² is located near Valdivia, on the Pacific coast.
It sits in the middle of the dense and humid Valdivian rainforest.
The client wanted a small cabin to spend holidays, and the main challenge was to reinterpret the deeply rooted concept of the traditional cabin.
We proposed a very narrow tower, raised above the ground on concrete supports, that seeks northern light and uses the minimum possible ground surface.
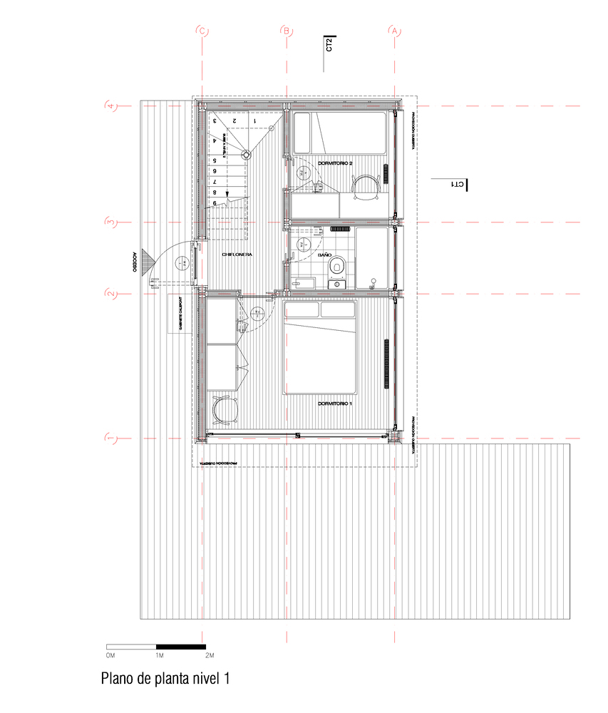
On plan, the small rectangle measures four meters wide by seven meters long and fits perfectly between a group of trees, rising ten meters above ground level to reach their treetops.
The construction is divided into two very compact floors: the first level features a small entryway that doubles as a corridor connecting the bedrooms, the only bathroom, and the staircase.
The second level consists of an open-plan space with a living area and a kitchen, which together feel like a noble and generous space opening to the landscape.
The interior dimensions range from the minimum heights required to move comfortably to those that respond to the scale of the surrounding landscape.
The form is conceived as a compact and sharply defined volume — a prism with acute angles that contrasts strongly with its surroundings.
Its interiors, made of laurel wood, are warm and tactile; everything feels like part of a built-in furnishing, much like the interiors of boats, where ribs and keels are exposed.
The roof is gabled, but with a ridge beam placed diagonally across the volume, resembling a fishbone structure.
The entire structure was cut and assembled on site, using only traditional carpentry tools and techniques, without any advanced technology.

































