Centre de Congrès Rabat
ARCHITECTS
Bofill Taller de Arquitectura
LANDSCAPE DESIGN
Vivian Rotie
ACOUSTIC CONSULTANT
Peutz & Associes
ENGINEERING CONSULTANT
ROYTH
FURNITUR
BD Barcelone Design
LIGHTING CONSULTANT
380-750NM
DESIGN PRINCIPAL
Hernan Cortes
TEAM MEMBERS
Lucia Alija, Nicolas Architector, Sara Atristan, Artur Akopov, Gianluca Basile, Laurie Bello, Cristian Camacho, Luis Carpio, Alexandra Cohen, Sara Cui, Nemesios Frangos, Yamila Gianonne, Patricia Gomez, Azeddine Guerouani, Javier Irigaray, Zineb Idrissi, Samia Joulali, Renata Keller, Lina Kakaletsi, Katarzina Kretek, Achraf Lahmadi, Chungin Lee, Martiño Lorenzo, Ferran Montesinos, Stanislau Naudeau, Olivia Pazos, Gabriele Plinio, Javier Pino Fernandez, Giuliano Scigliano, Minghei Seol, Vivian Sirito, Hind Soubat, Michele Tota, Joaquin Traverso, Clara Vila, Macarena Velasco, Smita Waghmarae
INTERIOR DESIGN
Graciana de Bernardi
MANAGEMENT
Javier Guardiola
SITE SUPERVISOR
Polentzi Barrera
SIGNANGE
SIGNES
ENGINEERING CONSULTANT
JESA Studio
MANUFACTURERS
BD Barcelona Design
PHOTOGRAPHS
Gregori Civera, Max Farago
AREA
11500 m²
YEAR
2024
LOCATION
Rabat, Morocco
CATEGORY
Auditorium, Learning, Institute
English description provided by the architects.
As a relatively young institution, the Université Mohammed VI Polytechnique solidified its identity with the architecture of its second campus in Rabat.
Phase one of the masterplan opened in the autumn of 2024 and includes a conference centre hosting events of all different types, capacities, and participants, e.g. faculty lectures, industry conferences, and public performances.
Beyond the provision of these facilities, the brief wanted the building to contribute to the overall character of the university and the quality of life on its campus.
The Centre de Congrès is located between the first and second phases of the masterplan. It acts like a hinge joint, fitting together the two "arms" of the campus – an avenue of buildings and a more condensed cluster – to take people from one side to the other.
Gesturing towards this idea of passage is a series of porticos along the edge of the site.
Here, the same bright tiles are used for paving and cladding, then continue into the building for a natural progression from the patio into the lobby.
Within this space, decisions over the material treatment and furniture design have been given as much attention as has the urban strategy – a "total design" across scales.
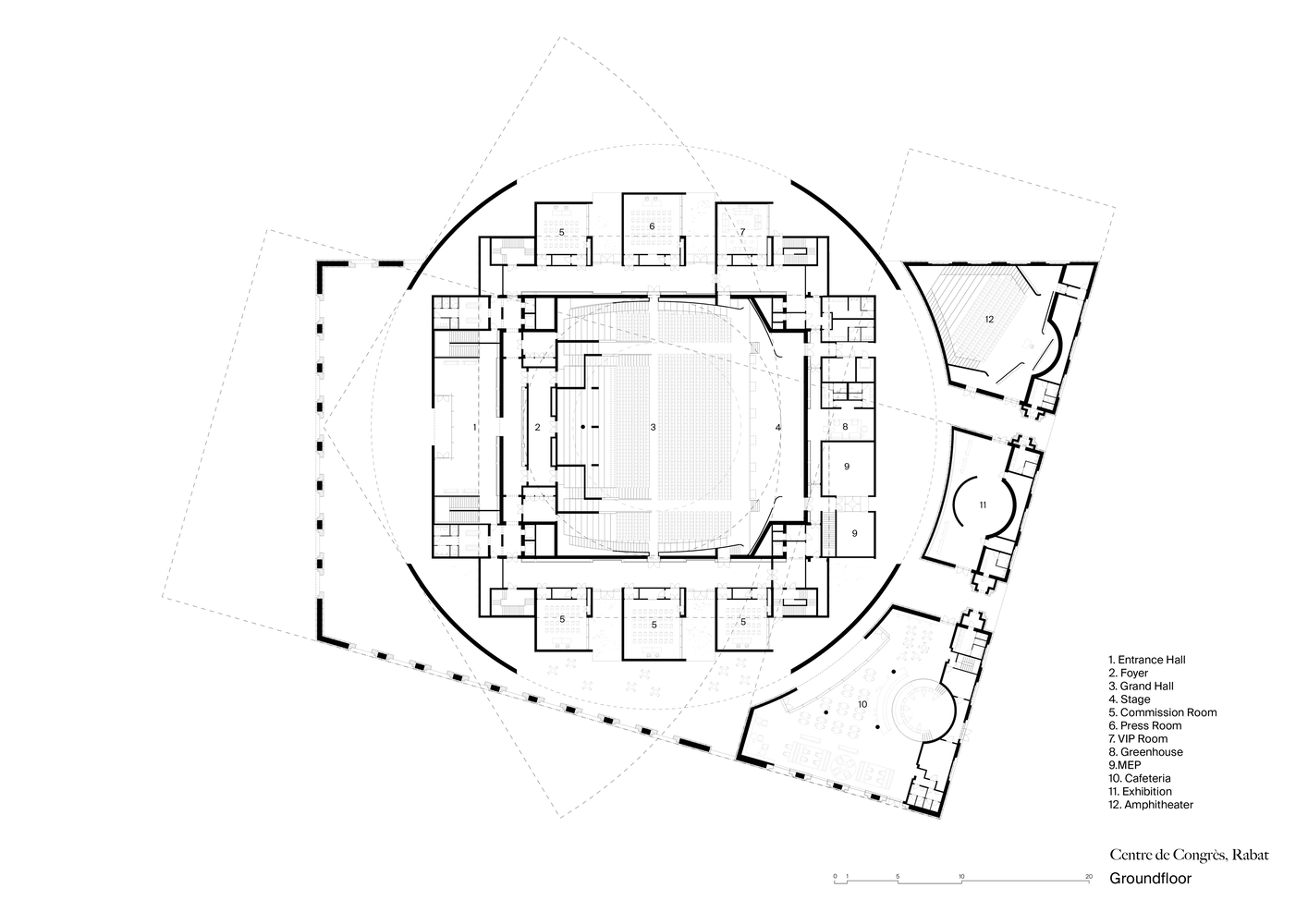
Defining the building plan are two pure geometries, the circle and the square.
The circle, a sweeping free-standing wall, forms a ring around the main auditorium, the square.
The space between the two forms accommodates various smaller auditoriums, meeting rooms, bars and cafes, circulation, and services.
Room is also made for seating and assembly in the exterior courtyards, which enjoy views of the surrounding playing fields and wooded areas.
Grand arches are carved into the circular wall such that they touch the ground only at the corners of the building, remaining open elsewhere.
The effect is one of invitation to the Centre de Congrès, and what aims to be a dynamic, generous space for a rich combination of people and activities.























