
Flower House
ARCHITECTS
Craig Steely Architecture
PHOTOGRAPHS
Darren Bradley
DESIGN TEAM
Craig Steely Architecture
YEAR
2023
LOCATION
San Francisco, United States
CATEGORY
Residential Architecture, Houses
We embraced adapting and reusing the architecture rather than demolishing the existing, celebrating the building's history and location.
Our reimagining of the building doesn't obliterate the past, but it isn't subservient to it either.
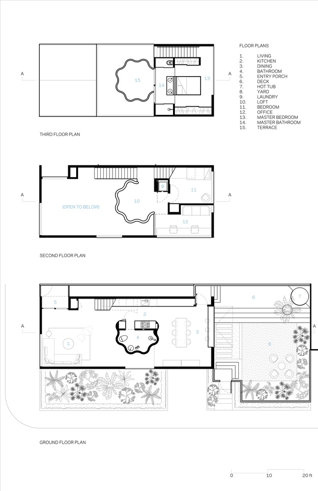
Space in the open plan is demarcated inside and outside of a free-standing flower-shaped tower. Furniture and art selection by Studio Ahead.

T +1 415 8647013
Craig Steely Architecture
8 Beaver St, San Francisco, CA 94114, United States



























