
Sports Center For Überlingen School Campus
SPORTS CENTER FOR ÜBERLINGEN SCHOOL CAMPUS
Wulf Architekten
ARCHITECTS
Wulf Architekten
PROJECT MANAGEMENT
Hitzler Ingenieure
LANDSCAPE ARCHITECT
Planstatt Senner
CONSTRUCTION MANAGEMENT
Architektur Holzer
STRUCTURAL ENGINEERING
Wh-p Gmbh Beratende Ingenieure
BUILDING PHYSICS
Wolfgang Sorge Ingenieurbüro Gmbh & Co. Kg
WAYFINDING SYSTEM
Wulf Architekten Gmbh, Donebyghosts
MANUFACTURERS
Agrob Buchtal, Geberit, Kalzip, Lamberts, Lamilux, Duravit, Grohe, Hewi, Benz Sport Gmbh, Cws, Diaplan System, Farbe, Gerflor, Glamox Ig420 25000 Lumen, Ideal Standart, Kollektion, Lamberts Gmbh, Okalux Glastechnik Gmbh, Okalux K, Pro Metall, +7
PLANNING TEAM
Ingmar Menzer, Michael Bertsch, Seda Ersal, Oleksandra Kolesova
COMPETITION TEAM
Kai Bierich, Michael Bertsch
CLIENT
Grosse Kreisstadt Überlingen
ELECTRICAL PLANNING
Klett Ingenieur Gmbh
AREA
5600 m²
YEAR
2020
LOCATION
Überlingen, Germany
CATEGORY
Sports Architecture
English description provided by the architects.
For the school campus in Überlingen on Lake Constance, a master plan was developed for the grounds of the city's secondary school and high school.
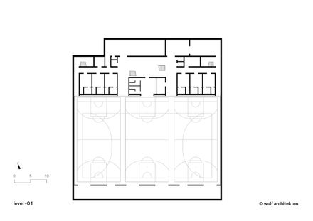
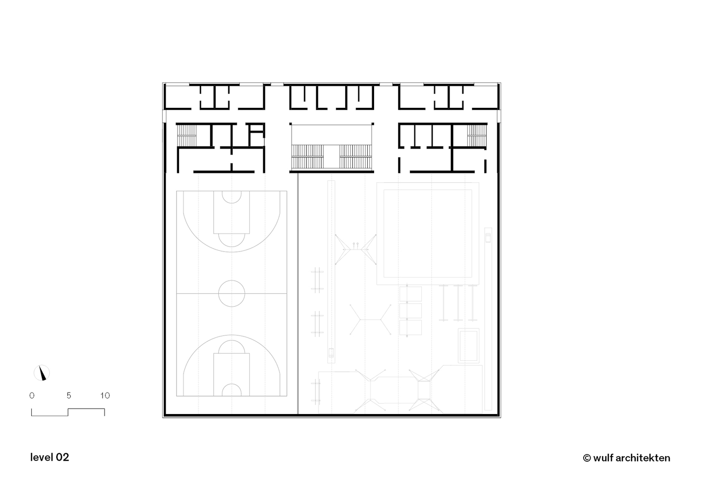
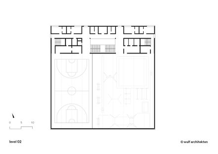
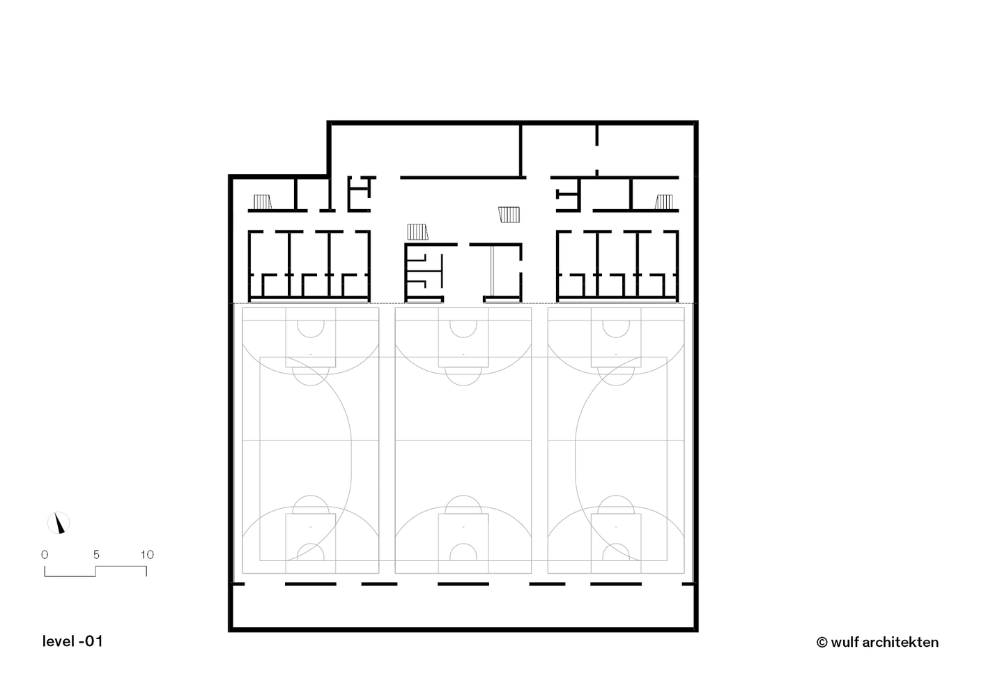
Its central component is a new sports center that consists of a three-court gymnasium, a gymnastics hall, and a ball sports hall.
The sports center has an elegant appearance thanks to the freestanding building's facade of white expanded metal.
The distinctive folded roof gives structure to the built form and establishes ties to the neighboring, smaller-scale residential buildings.
Thus it fits into the surrounding roof landscape while simultaneously forging a distinctive identity.
Inside, the dominant materials are exposed concrete and white expanded metal.
Generously dimensioned glazed openings let ample daylight into the building and help create an amenable indoor environment.
The base of the new building houses the lobby, bleachers, and three-court gymnasium, while the upper floor accommodates the halls for ball sports and gymnastics along with ancillary spaces.
The openly designed building is accessible from the north, east, and west.
The glazed ground floor forms a transparent juncture to the public space with the adjoining schools and sports fields.
The sports center is a contemporary facility tailored to the needs of athletes and is ideally suited for competitions and other sporting events, thus enabling it to enrich Überlingen's sports landscape.






















