
Pointe Living Apartment
ARCHITECTS
Luigi Rosselli Architects
LANDSCAPE CONTRACTOR
Precision Landscape
LANDSCAPE DESIGN
Dangar Barin Smith
STRUCTURAL ENGINEER
Partridge
DESIGN ARCHITECT
Luigi Rosselli
INTERIOR DESIGN
Atelier Alwill
PROJECT ARCHITECTS
Edward Birch, Kristina Sahlestrom, Simon Hassall, Jeffrey Blewett
DEVELOPER
Primo Development Sydney
CUSTOM BRASS LIGHTING
Oliver Tanner
PHOTOGRAPHS
Martin Mischkulnig
AREA
1145 m²
YEAR
2025
LOCATION
Edgecliff, Australia
CATEGORY
Sustainability, Residential
English description provided by the architects.
Set between an underground station on Sydney's rail network, and a busy thoroughfare that connects the city to the harbourside suburbs and beaches to the east, Point Living is a nine-storey apartment development designed as a model of hybrid housing that provides comfortably appointed accommodation with the scale benefits of a single residential dwelling, but with a level of convenience that would appeal, in particular, to downsizers.
Replacing a single home, the ten new residencies this building provides are a step towards the sort of denser urban environment required to begin to tackle a housing crisis that is not only having an impact locally, but also nationally and globally.
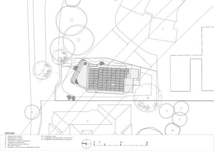
Constructed on a constrained site, with apartments to the west and east, the building is designed as a slender infill at a height that respects the scale and context of its neighbours.
Its form, appearing as a central spine with a ribcage of concrete beams radiating outwards from it, provides an eye-catching street presence that tapers and twists away from the adjoining buildings, ensuring privacy and maximum solar access to each of the ten apartments' north facing balcony 'ribs'.
Internally and externally the layouts, details and material selections seek to challenge the repetitious nature of the standardized plans that often characterize medium to large scale apartment developments, instead employing floorplans with subtle variations between floors, and details and materials customized to the tastes and lifestyles of each of the apartments' inhabitants.
Elements such as rough combed finish rendered walls, stylized exposed off form concrete ceilings, curved glass balustrades and double edge concrete beams with mirrored inserts contribute to a development with a level of detail reminiscent of the interwar apartment buildings that characterize the locality.
Within the building, residents and guests enter from its strong sandstone base via a serpentine landscaped path, reaching a communal open lobby formed with a curved brick screen stacked in a triangular format.
Within the apartments, each features handmade brass lighting by a local artist, Oliver tanner, and other architectural touches including specialist paint finishes, stone and joinery curated by Interior Designer Romaine Alwill of Atelier Alwill.
In addition to this consideration for privacy, uniqueness, and practical solar access often sorely lacking in many multi-residential developments, the design also addresses a common concern of many when contemplating apartment living; equitable access to high quality outdoor environments.
In addition to the generous balconies common to each unit, shared communal gardens and facilities including BBQs, dining areas and an undercover swimming pool provide environmental and social benefits that foster a sense of cohesion between residents.
Both the apartments and the pool area are oriented northwards to give much access as possible to natural light for the living spaces during the winter months, while large covered balconies and louvered windows protect the building from the harsh sun during the summer.
All apartments have at least three exposed facades with large operable windows, as well as open central hallways that flow out to open air entry lobbies, offering natural cross ventilation to every apartment.
An array of sixty-six solar panels installed on the roof provide renewable energy.
Reuse and recycling was also widely employed, with the existing swimming pool on site repurposed as a water tank, and sandstone blocks retained from the old home and cut from the basement carpark excavation forming the building's solid base.
The gate from the former dwelling was also saved and reinstalled in the communal area as a memory of the site's recent history.






































