Pavilion of Estonia Let Me Warm You Biennale Architettura 2025
Pavilion of Estonia Let Me Warm You Biennale Architettura 2025
Keiti Lige + Elina Liiva + Helena Männa
ARCHITECTS
Elina Liiva, Helena Männa, Keiti Lige
CO ORGANISER
Estonian Museum of Architecture
COMMISSIONER
Johanna Jõekalda
CURATORS EXHIBITORS
Keiti Lige, Elina Liiva, and Helena Männa
ORGANISER
Ministry of Culture of Estonia
PRODUCTION
Mari-Liis Vunder
CREATIVE TEAM
Märten Rattasepp, Kirill Havanski, Aadam Kaarma, Joosep Kivimäe
COLLABORATORS
Neeme Külm (Valge Kuup Studio), Margus Tammik, Robert Männa, Markus Puidak, Randel Pomber
SUPPORTERS
Ministry of Culture of Estonia, Cultural Endowment of Estonia, KMT Prefab OÜ, Swisspearl Group AS, PK-Salong, Luminor Bank AS, Brightlux Group OÜ, RAITWOOD, AS Craft drinks company MULL°, Rothoblaas, AT Prateko OÜ, Inmarx Partners OÜ, Estonian Academy of Arts/ Erasmus+, LIFE IP BuildEST, ESSVE Estonia AS, Sokisahtel OÜ.
PHOTOGRAPHS
Joosep Kivimäe
YEAR
2025
LOCATION
Venezia, Italy
CATEGORY
Pavilion
The Ministry of Culture of Estonia presents the installation and exhibition "Let me warm you" www.letmewarmyou.com curated by architects Keiti Lige, Elina Liiva, and Helena Männa, the Pavilion of Estonia at the 19th International Architecture Exhibition of La Biennale di Venezia (May 10th - November 23rd, 2025).
The Pavilion explores whether current insulation-driven renovations are merely a compliance measure to meet European energy targets or if they can serve as an opportunity to enhance the spatial and social quality of mass housing districts.
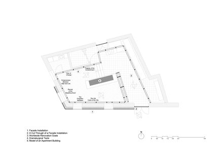
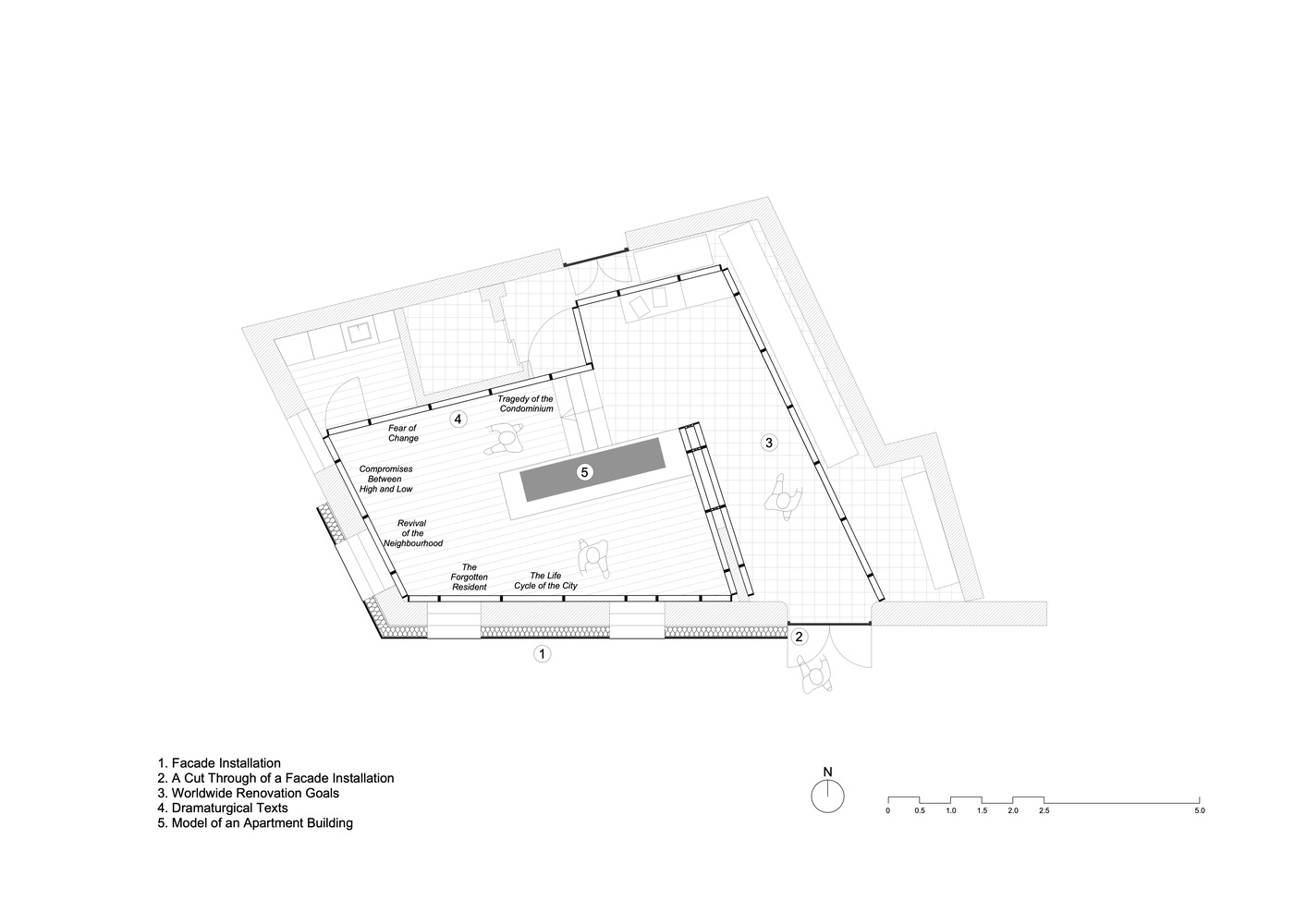
To highlight this issue, the Estonian Pavilion will cover the facade of a Venetian building with insulation panels, the same practice used in Estonia for mass housing.
The palazzetto is located in Riva dei Sette Martiri 1611 in the waterfront between Corso Garibaldi and the Giardini, within the Castello neighborhood (Address: Riva dei Sette Martiri 1611, Castello, Venice).
On the ground floor of the same building, a room, wrapped in plastic film, will host an exhibition showing how social dynamics within different stakeholders have an effect on spatial solutions.
"With this project, we question whether insulation is just a bureaucratic checkbox for meeting EU targets or a real chance to tackle social and spatial challenges.
It exposes the clash between bold global ambitions and the everyday realities of people navigating collective decisions." — assert curators Keiti Lige, Elina Liiva, and Helena Männa.
In order to cope with climate change, one half of the world is installing ever-thicker insulation layers, while the other half is using increasingly powerful cooling systems.
As Europe races toward its transition to climate neutrality by 2050, Estonia has an ambitious goal, pledging to upgrade all the apartment buildings pre-2000 to at least energy efficiency class C.
This sweeping renovation effort is part of a larger European movement to modernize aging housing stock in response to the climate crisis.
However, insulation should not be treated as a mere quick fix, a 'bandage,' but rather a meaningful upgrade in quality of life. Given the high costs and long-term impact of these renovations, the real challenge is finding a balance between ambitious climate policies and the everyday needs of the people who live in these spaces.
Installations - The installation, mounted directly onto the existing building's façade, will use the same materials and design elements typically found in Estonian renovations.
Set against the ornate architecture of Venice, this stark contrast serves as a powerful visual statement.
In Estonia, Soviet-era apartment block renovations often proceed with little to no architectural input, reinforcing a problematic disregard for the character and potential of these spaces.
By juxtaposing a fiber cement-clad façade with Venice's rich historic fabric, the installation aims to spark a dialogue between inhabitants and architects about the cities and spaces we aspire to live in.
Exhibition - On the ground floor of the palazzetto, an exhibition will delve into the social forces shaping renovation decisions.
In Estonia, where most apartment buildings are privately owned, renovation choices are often driven by financial constraints, leaving little room for spatial improvements beyond insulation.
The exhibition space (an existing apartment) itself will be wrapped in plastic film, symbolizing the relentless push for renovation while exposing how technical fixes often overshadow the deeper connections and real needs people have with their homes.
At its centre, a model of a Soviet-era housing block brings human interactions to the forefront, using theatrical dialogues and exaggerated spatial outcomes to depict how different relationships and interactions have their impact on space.
By shining a light on the complexities of collective living and renovation decisions, the exhibition invites visitors to reflect on the tension between policy-driven energy goals and the lived realities of those affected by them.
The exhibition is accompanied by a catalogue that captures the tragicomedy of an apartment building in six scenes. Based on real people's stories, it explores themes ranging from the fear of change to the revitalization of the neighborhood.
The Biennale Architettura 2025 is curated by architect Carlo Ratti under the theme "Intelligens. Naturale. Artificiale. Collettiva.", and will be about the built environment as one of the largest contributors to atmospheric emissions, placing architecture among the main culprits in the degradation of our planet.
As the climate crisis accelerates, architects must offer solutions, substantial and non-cosmetic, effective, and quick to achieve.
In this sense, the Estonian exhibition responds to Ratti's call for pavilions: "This year's head theme offers good ground to discuss what happens to architecture when the Architect is excluded from the process. Renovation processes that are planned by residents themselves according to their best knowledge provide a good example of how collective intelligence, or lack of it, affects our spatial environment.
The Estonian Pavilion gives the message that the architectural quality of the living environment should not be overlooked in renovation processes," explains Johanna Jõekalda, advisor on architecture and design at the Ministry of Culture of Estonia, Commissioner of the Estonian Pavilion.
With "Let me warm you", visitors to the Biennale Architettura 2025 will actively engage with the pavilion and the building. By rethinking renovation strategies, Estonia could set an example for Europe: transforming outdated housing not just for energy efficiency, but for a more sustainable and livable future.


































