
Karratha Senior High School Technical Learning Facilities
Karratha Senior High School Technical Learning Facilities
iredale pedersen hook architects
ARCHITECTS
iredale pedersen hook architects
LEAD ARCHITECT
iredale pedersen hook architects
LEAD TEAM
Adrian Iredale
STRUCTURAL
Pritchard Francis
SERVICES
Hydraulics Design Australia
ELECTRICAL
ETC
MECHANICAL
HMWC
LANDSCAPE ARCHITECTURE
UDLA
DESIGN TEAM
Finn Pedersen, Martyn Hook, Mary McAree, Tom See Hoo, Ben Moffit, Rebecca Angus, Takara Putland, Kim Valas, Tyron Nohr, Shiqi Yu
ACOUSTIC
Gabriels
PHOTOGRAPHS
Peter Bennetts
AREA
1909 m²
YEAR
2024
LOCATION
Karratha, Australia
CATEGORY
High School
English description provided by the architects.
Karratha Senior High School is in a region D, cyclonic area, a hot semi-arid climate subject to intense rainfall and wind during regular cyclones.
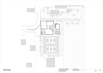
It sits at the base of ancient hills on a flood plain that discharges into Nickol Bay and connects to the Yaburara Heritage Trail, including culturally significant Aboriginal sites.
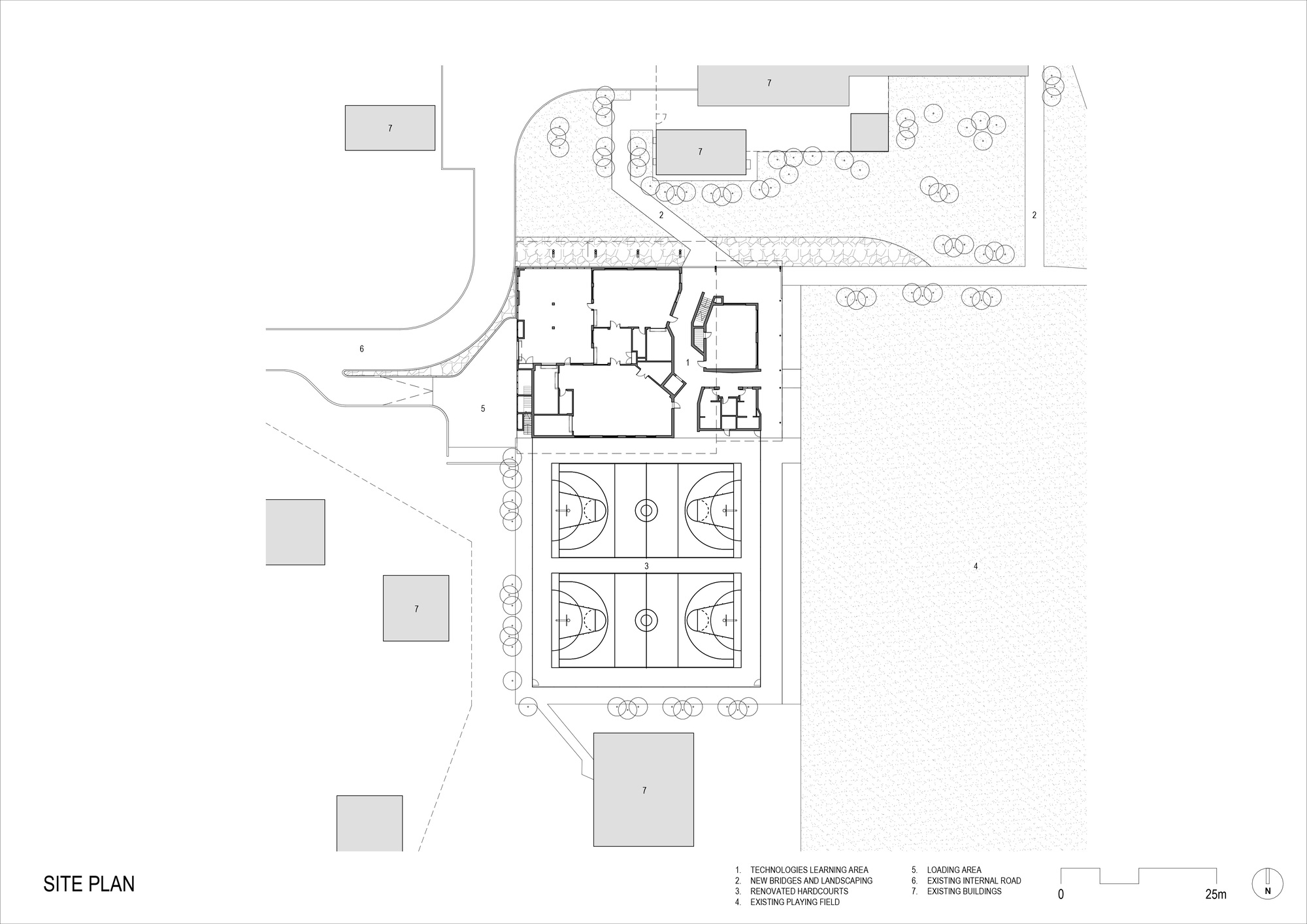
We developed a master plan, maintaining the existing courtyard approach while introducing a focus to the surrounding ancient landscape and sites of cultural significance.
Culturally important sites were identified and embedded in the design. Previously disturbed sites would be rehabilitated as community meeting spaces, and remaining undisturbed sites enriched with passive protection, art, and cultural interpretation.
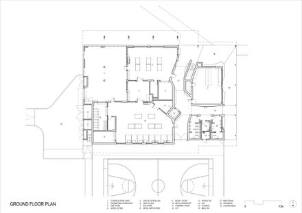
The new technical learning facility attaches to the existing external playing courts, providing undercover viewing spaces, changerooms, and cool spaces to rest between exercises.
An existing rock swale was transformed into a landscaped recreation space for the school and the public.
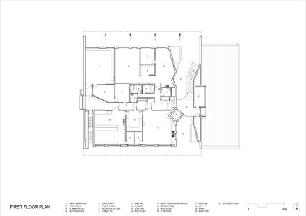
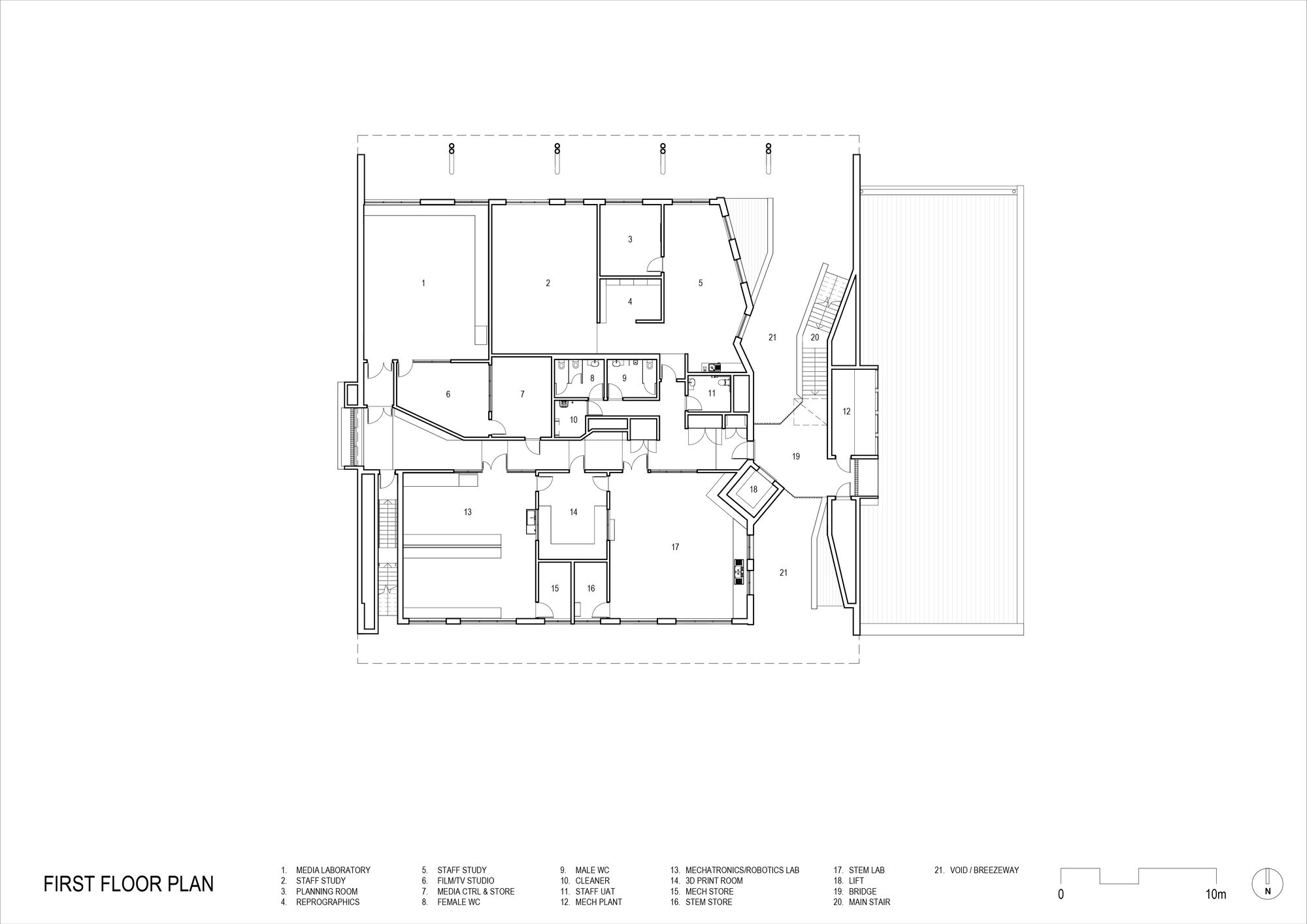
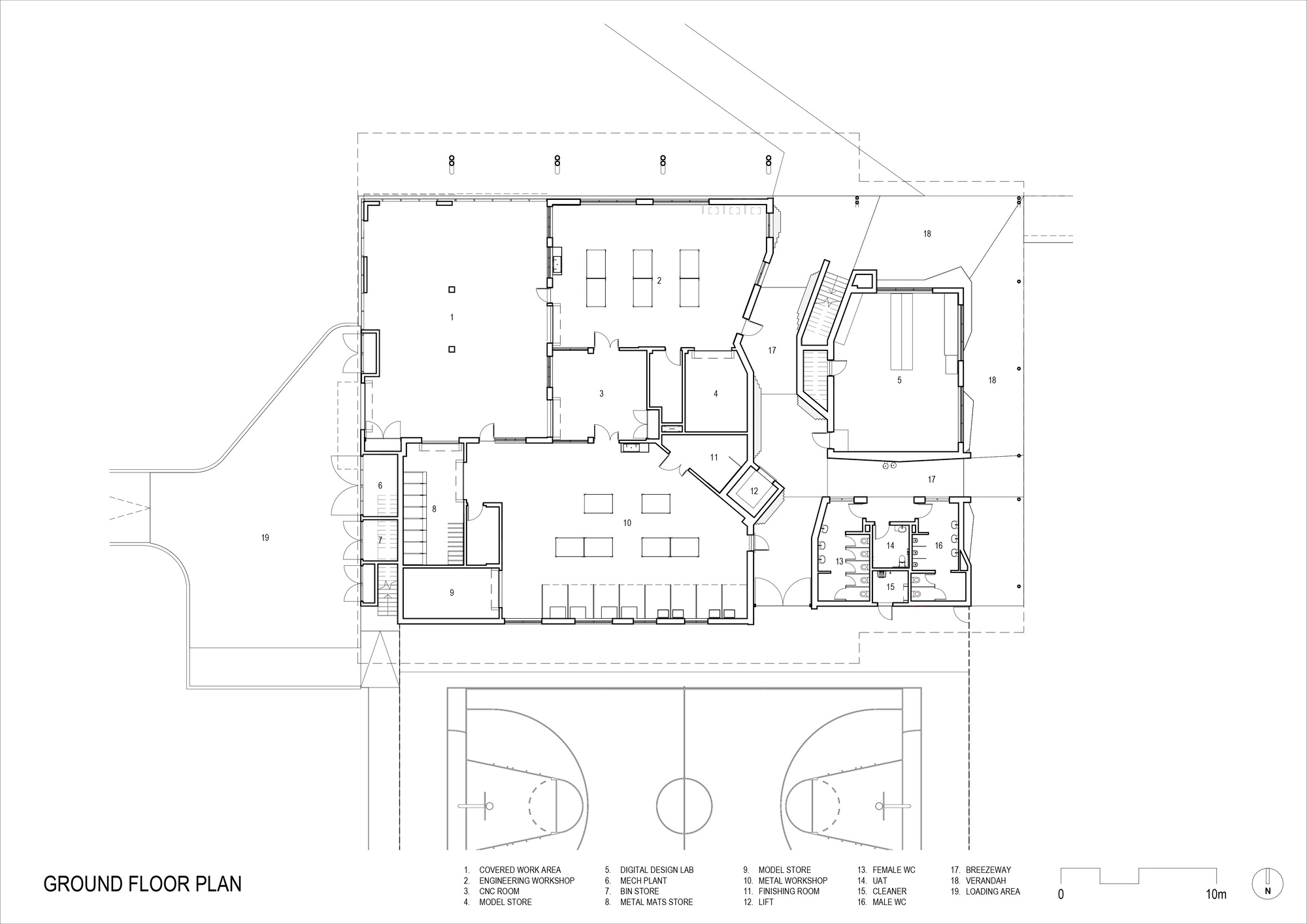
The Technical Learning facility includes a variety of spaces, requiring significant internal and external servicing, acoustic separation, and passive safety surveillance.
Two storeys achieved a compact footprint without eroding valuable external recreational space. The economic plan allowed additional external spaces to be introduced. A large central undercover breezeway connects disparate uses while focusing views on the distant ancient hills.
A unique brick blend references the iconic, local eroded gorges such as Karijini, utilising different colours to form strata, shadow, and tumbled to create texture and a sense of eternal ongoing erosion.
Extruded brick seats allow spaces to rest, gather, and contemplate in a naturally cooled environment.
All spaces focus views to the surrounding landscape, providing natural light balanced with creating a concentrated environment, as the German architect Hans Scharoun once stated, "young people want to be inspired, not taught".
Such views enable an awareness of the natural environment unseen by other school spaces, allowing students to situate themselves in a broader context.
Applied colour, pattern, and symbols progressively unfold to provide meaning and enrich experience. Super-sized abstracted tools reference the function of manual arts spaces with colours matching machinery.
An upper-level east-west axis focuses views to the distant horizon, interrupted by a sequence of coloured portals extruded from the adjacent learning spaces, encouraging glimpses into teaching spaces while welcoming students upon entry.
Construction in remote and extreme climatic regions requires design strategies that simultaneously create multiple benefits and outcomes.
Opportunistically transforming structure into shading and seating, swales into recreation space, creating inhabitable breezeways that reference important regional places, maximising view and natural light, considering durability and long-term weathering.
These are economic considerations but also embody climatic, environmental, and socially sustainable outcomes, providing a long-term strategy for the development and growth of the school.
The connection of recreation to technical learning and the provision of multi-use exterior spaces extends the brief beyond expectations.
This building creates learning environments that enable the individual student to reflect and to situate themselves in the environment and landscape, to view the broader horizon, and to be part of a community.
































