Trévoux 84 Housing Units
ARCHITECTS
Tectoniques
PROJECT MANAGEMENT
Jca Développement
ARCHITECT TEAM
Solenn Augé, Loris Bied, Thomas Blot, Willy Caraman, Violaine Charlot, Léo-paul Chorel, Rémi Davallet Pin, Thomas Delaire, Pablo Giovanni, Étienne Girard, Justine Goussard, Vanille Josephine, Alexandre Jozan, Manon Jusselin, Marie Le Pechon, Lucas Lebel, Anne Levallois, Lisa Louison, Claire Mallet, Elise Marcel, Tiziana Minchella, Lucie Petit, Amélie Pontet, Florent Quintard, Lucie Rossignol, Raphaëlle Ruiz, Nicolas Serreli, Michelle Trarbach, Laure Villedieu
STRUCTURAL ENGINEERS
Elsa Alaux, Aymeric Broyet, Romain Guinard, Simon Hanisch, Étienne Louis, Paul- Émile Rinaudo, Marianne Schroeder, Niels Tourres (Apprentice), Nibras Zara
YEAR
2024
LOCATION
Trévoux, France
CATEGORY
Master Plan, Apartments
Text description provided by architect.
The project is part of the Orfèvres eco-district, developed by SERL as part of a development concession for the town of Trévoux on the banks of the Saône. This new 10-hectare district lies to the east of the historic town center, in a quiet, predominantly residential environment.
It is designed to promote connections with the existing urban fabric and landscape, soft modes of transport and to limit the presence of cars.
The neighborhood is built around a public park that extends to the south along the former railroad line that linked the city to Lyon Croix Rousse. Lot B4, on which Tectoniques is working, directly overlooks this park.
While the layout and massing of the buildings comply with town-planning requirements, they are above all guided by a bioclimatic strategy.
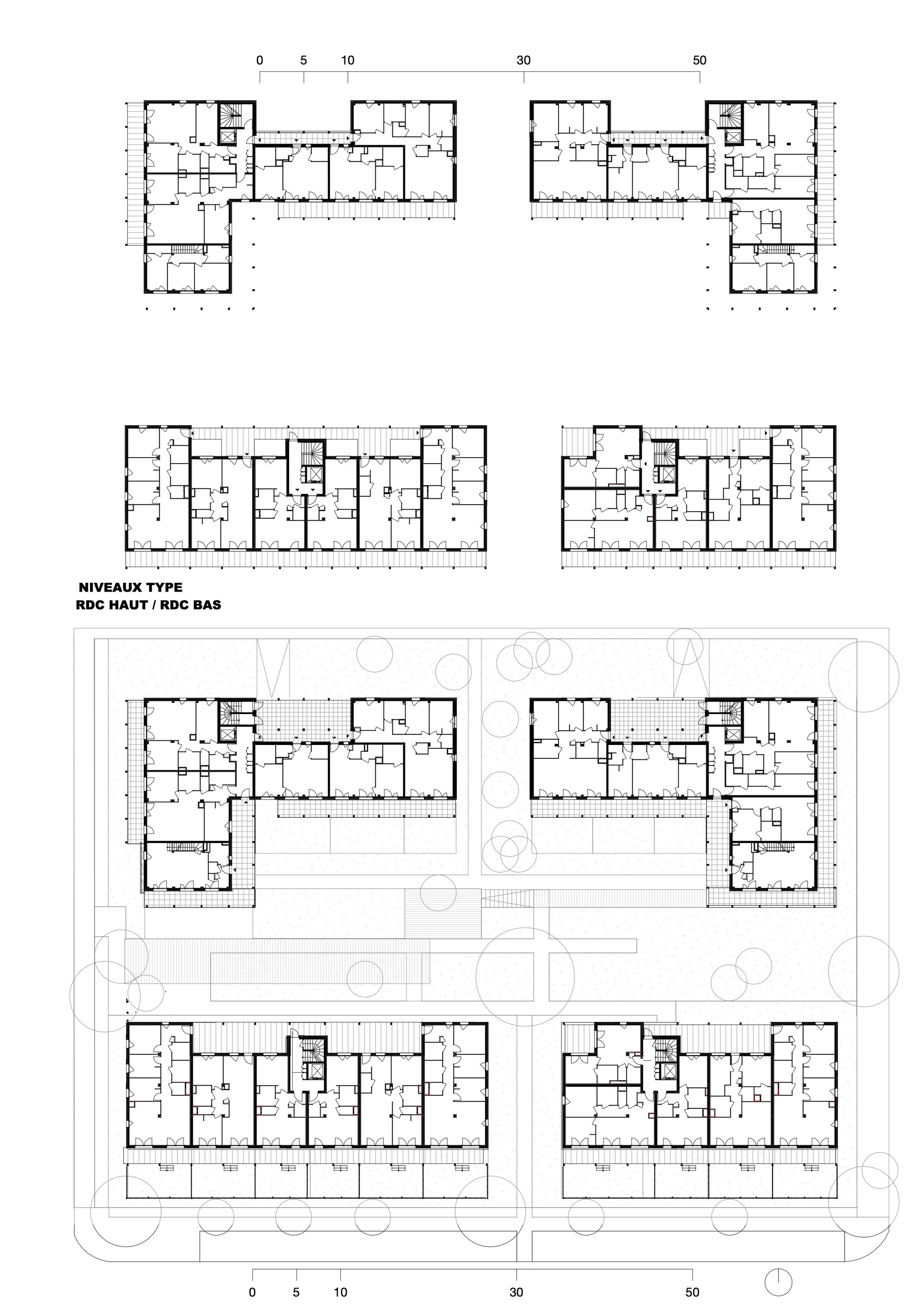
In keeping with the topography of the site and the necessary link between city and park, the four buildings are arranged in a progression of heights, from R+2 on the south side of the park to R+4, with an emergence of R+5 on the north side of the city.
This composition ensures that the dwellings receive plenty of natural sunlight and open up views over the park and the wider landscape. The lower buildings form a homogeneous backdrop to the park. The open, landscaped character of the site means that transitional spaces between the street and the dwelling must be finely articulated.
The heart of the block is laid out as a garden, criss-crossed by alleyways and enhanced by communal terraces. Parking spaces are recessed into the northern slope and are naturally lit and ventilated.
In the center of the block, a guesthouse, built with materials reused on the site, is available to ZAC residents on a shared-rental basis.
The halls are open-air, sheltered outdoor spaces, in line with the pedestrian walkways.
Thanks to the courtyard layout, all units have through- or triple-opening views. On the upper floors, the corridors are offset from the facades to preserve the privacy of the rooms.
The homes are based on principles that promote comfort, health and quality of life: abundant, controlled natural light, through-ventilation, simple, easy-to-furnish volumes, clear day/night division.
Wrap-around balconies, 1.80 m deep, run the full width of the home, extending the living areas. The post-and-slab system allows spaces to be partitioned very freely.
An all-wood solution was adopted for the 2nd family buildings (high floor <8m) on the south side, while a mixed wood-concrete solution was preferred for the 3rd family B buildings on the north side.
Tectoniques favors the hybridization and collaboration of processes over an overly systematic approach.
The architecture of the complex is simple and explicitly transcribes the construction method used, with a clear expression of the façade structure through the exoskeleton of the balconies.
The perimeter balconies of the four buildings are supported by a wooden exo-structure partially clad in metal. The grid is deliberately narrowed to refine the cross-sections of the load-bearing elements.
The posts take center stage, verticalizing the composition of the facades. This structure gives the facades a beautiful depth of field and a highly graphic interplay of lines and cast shadows that soften the massiveness of the built blocks.
The metalwork elements (railings, dividers, mud flaps, deflectors and fascia plates) are lacquered in bright colors that contribute to the identity of the ensemble and evoke certain references to modernity.



















