La Géode Cinema
ARCHITECTS
loci anima
LEAD ARCHITECT
Françoise Raynaud
PROJECT DIRECTORS
Xavier Maunoury & Vincent Laplante
CONSTRUCTION PROJECT DIRECTOR
Halima Temam
SITE ASSISTANT
Elie François
STRUCTURAL ENGINEERING
Khephren
INGÉNIERIE FAÇADE ENGINEERING
Bollinger
GROHMANN FLUID ENGINEERING
ALTO
INGÉNIERIE ECONOMIST
AXIO
ACOUSTICIAN
Peutz
SAFETY CONSULTANT
Studio Fahrenheit
VIDEO MAPPING & SOUND
Moment Factory
CONSTRUCTION PROJECT COORDINATOR
Batscop
MANUFACTURERS
A&T, ADM, D3A, Flipo, HTI, Imax, Les établissements Giffard, Manganelli Technology, Transform
PHOTOGRAPHS
Adrien Daste & Loci Anima
AREA
3000 m²
YEAR
2024
LOCATION
Paris, France
CATEGORY
Cinema
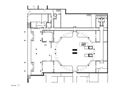
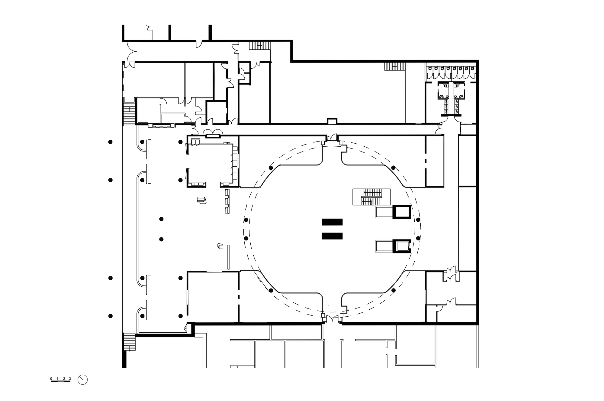
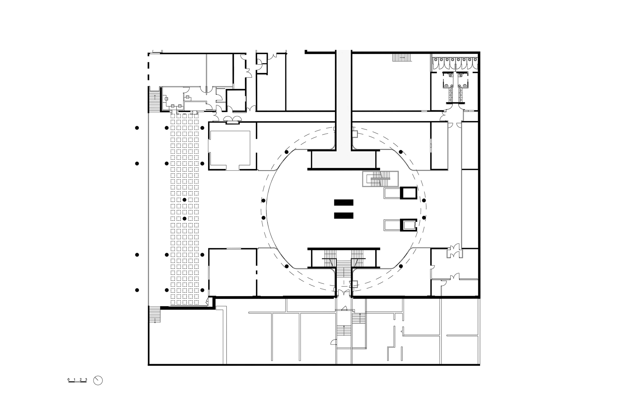
In the 19th arrondissement of Paris, within Parc de la Villette, the architectural firm Loci Anima (led by Françoise Raynaud) delivered in December 2024 the renovation of La Géode and its hemispherical cinema, originally designed by Adrien Fainsilber, for Universcience (owner) and Pathé Cinémas (concessionaire).
While the IMAX screen was already immersive, it is now the whole cinema that has been transformed into a fully immersive experience.
Even before entering, the dichroic façade invites visitors into a realm of illusion, where natural light seems to flow through a coffered ceiling.
This façade echoes the aesthetics of contemporary stained glass, playing with light and reflections.
Its raw, geometric design evokes a monolithic stained-glass effect, where transparency and color blend seamlessly with architectural rigor—an ode to the cinema itself.
Loci anima designed the renovation as a multisensory experience, engaging both sight and taste.
From the confectionery area onwards, architecture and illusion merge to plunge visitors into a delicious dreamlike world, before leading them into a vast circular space animated by shadows and light.
The interior of La Géode, an architectural and technological marvel inaugurated by Adrien Fainsilber in 1985, features an inverted mushroom-shaped concrete structure, supported by a central pillar of just 4 m2.
The addition of a platform to accommodate the IMAX projector and another to fill the pit in the hall had to respect this delicate structural balance, which seems to defy gravity.
Loci anima has enhanced the spectacle of this brutalist masterpiece – in the spiritual sense, a concrete cathedral – by stripping it of all conventional cinema elements. In reality, the show has already begun.
A 360° projected image on the walls encourages visitors to explore the space, where the architectural heritage is once again highlighted through light. Two panoramic elevators and an 11-meter floating staircase pierce through the building, leading from the hall to the entrance of the auditorium.
A foyer allows visitors to observe the spherical structure close up _ This is not for the faint-hearted. The auditorium is now equipped with a new 1,000 m2 hemispherical screen, specifically designed for a new 4K laser projector, complemented by an IMAX 6.0 sound system.
The seating capacity has been reduced from 400 to 286 custom-designed seats, offering six different reclining angles to enhance spectator comfort.
However, before the screening even begins, visitors embark on a virtual discovery of Parc de La Villette, as the geodesic dome itself becomes a window to the outside world—one last illusion to enrich the journey.
The interior renovation of La Géode achieves a perfect symbiosis between structural materials and virtual imagery, integrating video mapping and spatialized sound, right up until the return to reality.
























