
Franklin Village
ARCHITECTS
Sauerbruch Hutton
LANDSCAPE ARCHITECTURE
Idealice
ARCHITECTS TEAM
Louisa Hutton, Matthias Sauerbruch, Juan Lucas Young, Vera Hartmann, Jürgen Bartenschlag, Daniel Adler, Sibylle Bornefeld,thomas Braun, Katja Correll, Christiane Delucchi, Anita Fabbiano, Larissa Götze, Philipp Hesse, Judith Larsen, Arthur Martinevski, Tanja Mähler
ENGINEERING & CONSULTING > STRUCTURAL
Pirmin Jung Deutschland Gmbh, Schmidt & Laabs Ingenieurgesellschaft Mbh
ENGINEERING & CONSULTING > SERVICES
Iba Gebäudetechnik
ENGINEERING & CONSULTING > BUILDING PHYSICS/FIRE PROTECTION
Pirmin Jung Deutschland Gmbh
ENGINEERING & CONSULTING > TIMBER CONSTRUCTION
Oa.sys Baut Gmbh
LOCATION
Germany
CATEGORY
Residential Architecture
Text description provided by architect.
This project is part of the redevelopment of Benjamin Franklin Village in the north-east of Mannheim, a former residential area of the US Armed Forces stationed in Europe, built in the 1950s.
Surrounded by an extensive park, a district for around 10,000 people is being developed through conversion and densification, accommodating a variety of uses ranging from work, care and training to cultural, leisure and local recreational facilities.
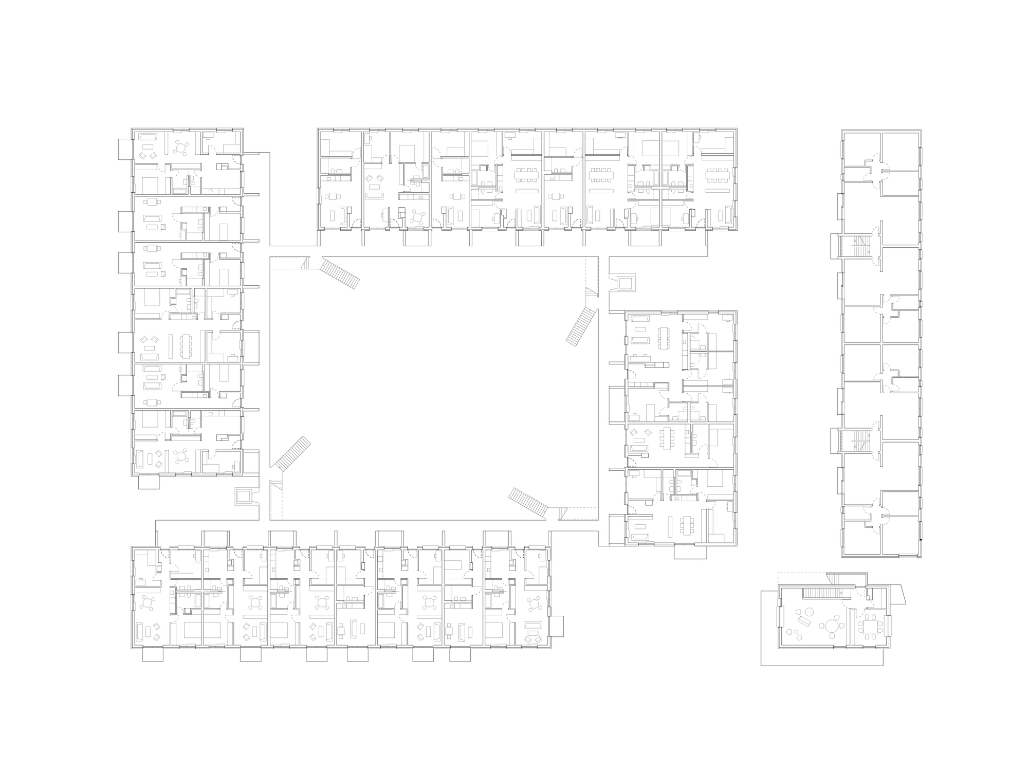
The design embodies the principles of target group diversity and social integration. Four new buildings with a range of residential typologies are grouped around a shared courtyard; from cluster housing to typical family living to small individual apartments.
They are connected via column-free walkways suspended and set slightly apart from the façade, which provide wide terraces for the residents to inhabit and experience spontaneous everyday encounters.
The color scheme of the soffits and bulkheads further accentuates these special outdoor 'rooms'.
Such communal spaces are the heart of as well as a catalyst for a culture of solidarity. As an "extended living room" with kitchen, lounge, co-working space, workshops and a roof terrace, the Quartiersforum creates a focal point for togetherness in the neighbourhood.
The buildings have a timber frame construction with timber composite floors. Furthermore, an existing building along the north-east edge of the site was renovated and extended by adding two floors in timber construction.
The grid of the timber frame allows for a high degree of floor plan variability.
Each type of apartment was arranged with two different sizes, so that north-south oriented layouts with reduced depth make better use of daylight.
A variety of apartment sizes, which correspond to the spatial requirements of different housing and living needs, could be implemented cost-effectively while offering options for future adaptations.

















