
Red Village Observatory
ARCHITECTS
Tag
CLIENTS
Renhe Development Company
DESIGN TEAM
Bai Siyang, Yu Yichen, Xin Yuxi
LEAD ARCHITECTS
Wang Yanze, Wu Guanzhong
PROGRAM
Planetarium / Science Center / Cultural Center
COLLABORATORS
Xuhui Architecture And Urban Planning Design Institute
YEAR
2024
LOCATION
Panzhihua, China
CATEGORY
Planetarium
NEW GROWTH OF RED VILLAGE
Outside Yishala Village are layers of terraced fields piled up with cobblestones, and inside the village are courtyard dwellings built according to the envelope of the mountains.
The intense sunlight in the Panxi Valley passes through the gaps between the roofs, casting distinct geometric light and shadows in the narrow, winding, and undulating village alleys.
This is the first visual impression upon entering Yishala, and it serves as the design prototype for the observatory space. Firstly, the design compresses and "backfills" the auxiliary spaces, and restores the height differences of the mountainous terrain in the environment by steps.
Then, the functions are disassembled into four small-scale units distributed in a staggered pattern. These units are connected in series through stairs, corridors, and bridges, translating the vivid charm of tradition with modern architectural language.
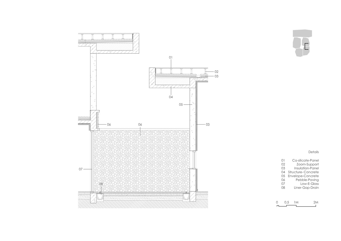
ROUGH CONCRETE
The construction requirements for plain concrete are relatively high. Most domestic projects are subcontracted to professional teams to achieve a delicate and refined effect.
Unfortunately, the limited investment in the village observatory makes it difficult to subcontract again, so it can only be managed by the local construction team. The unattainable refinement has instead given rise to doubts about refinement: why does this "rough guy" of concrete have to be dressed up like a "little girl"?
Therefore, minor flaws that do not affect structural safety, such as different coloration, uneven joints, and small surface defects, are all retained as they are without repair. The rough red concrete looks as if it was born from the Panxi Valley, being willful, free, and rugged.
SUNLIGHT IS MATERIAL
The concrete walls on the facade of the observatory are the perfect canvas for sunlight. The roofs overhang irregularly outward. Through the angular misalignment between the roof and the wall, a sharp shadow forms on the facade.
The roofs are horizontally separated from each other forming gaps, and then the gaps are vertically extended by taking advantage of the space height differences. The light bands outlined by the gaps are projected onto the walls and floors, and their shapes change as time passes.
Most of the public spaces in the observatory are semi-outdoor environments. The spaces only need openings, not windows.
Therefore, the design uses irregular openings to emphasize that these are openings rather than windows. The wall of the multi-function front hall is torn open with a full-height opening facing east, and many small round holes are embedded inside the solid concrete wall.
In the early morning, through the opening, visitors can see the sunlight crossing the Daliang Mountains and shining onto Yishala village. The sunlight passes through the small round holes and forms dancing light spots on the red concrete wall.











































