MANUFACTURERS
Kuraray, Louis Poulsen, Agc Glass Plaza, Daiken, Jfe Galvanizing & Coating Company, Lixil , Panasonic, Technos Japan Corporation, Tokushu Kenhan Corporation, Velux
YEAR
2024
LOCATION
Japan
CATEGORY
Houses
Text description provided by architect.
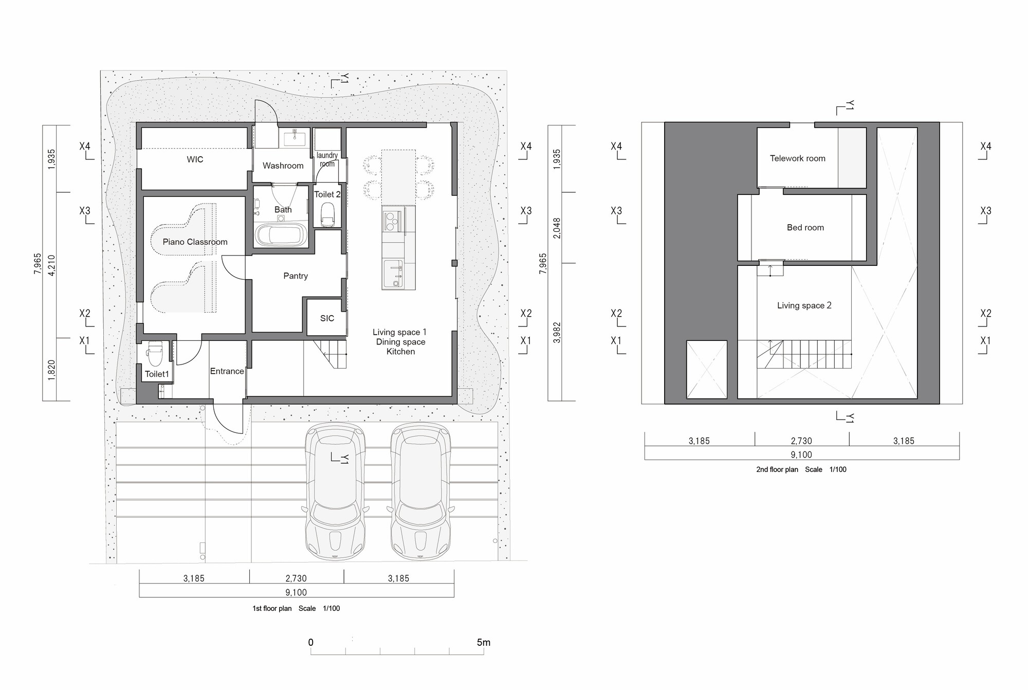
In Japanese, "IEIE" generally means "a row of houses." The house named "IEIE" is for a couple with piano lessons, built in a land readjustment residential area in Urayasu.
This is a house in which functions normally located outside the house, such as a piano school and telework, are included within the house.
The house is not directly open to the neighborhood, but rather, like most houses, it is closed to the neighborhood, and we attempted to design a space where people can feel the town as our image in the house, and where the image of the town is continuously connected.
In a town, in addition to the shape of the house, the streetscape is created by color and light, balconies, windows, and other elements of buildings.
Because of their complexity, we do not perceive them individually but only vaguely. We attempted to create such a vague perception of the town as a whole within the "IEIE".
Specifically, we created a composition in which several house shapes exist within one large house.
We tried to create fluctuating phenomena as a whole by having the house shapes perceived uncertainly through the light from the edges and clear lines of sight. Although people live in the house, as if they live in a town.
The exterior walls are also covered with horizontal metallic steel sheets, which reflect light from the sky in different ways over time, creating an appearance of shifting shadows on side joints.
The structural plan that small house-shaped frames support large house-shaped frames is designed to accommodate the changing needs of the residents without specifying their lifestyle.
Structural walls are placed only on the perimeter and on the sides that form a small house shape so that we acquire a similar cross-section no matter where they are cut. This allows for flexible adaptation if the way people live changes in the future.




























