Hotel El Zarzo
ARCHITECTS
Alh Taller De Arquitectura
MANUFACTURERS
Anticuario De La Construcción
LEAD ARCHITECTS
Santiago Arango, Camilo Arango, Juan Francisco Arango
MANAGEMENT
Oblicuo
LANDSCAPE DESIGN
Forestpa
CONSTRUCTION
Alemol
YEAR
2023
LOCATION
Colombia
CATEGORY
Hotels
Text description provided by architect.
Over the years, Medellín, and especially Provenza, has become one of the epicenters of tourism in Colombia. As architects, we have the great responsibility of providing value not only aesthetically but also environmentally and socially in every intervention we undertake.
Hotel El Zarzo was born from the idea of responding to the area's hotel demand, going beyond merely offering more rooms to the tourism sector. With this project, we aim to create a small oasis in the middle of the city.
The project is located in Provenza, very close to other important and nationally and internationally recognized hotels.
The great challenge was to have a differentiating element, so we opted to design a boutique hotel with very few rooms, focusing on details and always aiming to create a warm and welcoming atmosphere in all spaces.
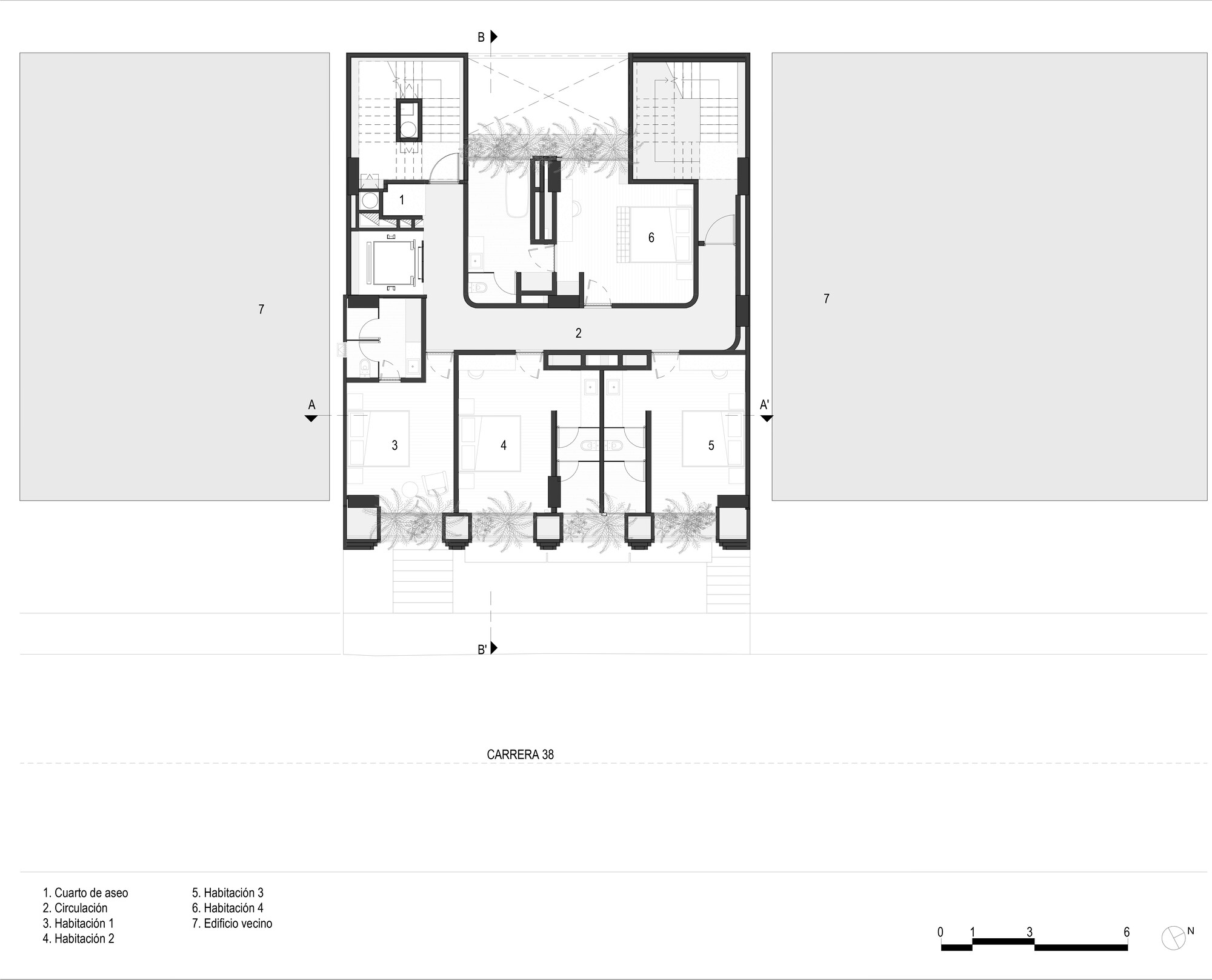
The hotel has seven levels, distributed as follows: a basement level that serves all technical needs, a first level with a restaurant and lobby, four levels of rooms, and a rooftop terrace with a bar.
The bar, inspired by a vintage style, has the option of being open or closed thanks to a retractable fabric pergola, allowing the space to change over time and host different activities.
The building is located between two party walls, so for the natural ventilation and lighting of the spaces, we could only rely on the eastern and western facades.
We started from the premise of placing the hotel's service areas, such as shafts, elevators, and stairs, towards the party walls to maximize the facades and ensure that each room has a direct connection to the exterior.
The first and last levels of the project are spaces we are giving to the city, with a restaurant and a bar open to the public, allowing not only hotel guests but also visitors to enjoy them.
The large facade frames different views; each level has variations in its windows, incorporating arches and porticos that enrich the interior space. From inside, every window offers a view of a garden, and beyond that, the city and the mountains.
The use of materials in their most noble form and the careful integration of vegetation make the building an additional connection point in the city's ecological network.
The slabs become a vast container of more than a hundred tropical species. The programmed drip irrigation system provides the minimal and necessary amount of water to this small ecosystem in a rational and efficient way.
This intervention also helps maintain thermal comfort inside the building, reducing the need for air conditioning and, therefore, the building's carbon footprint.
With Hotel El Zarzo, we seek to deliver an architectural work that meets current needs while considering environmental factors, aiming to generate a positive impact on the city and future projects.






















