Vila do Chapéu Square
ARCHITECTS
Henry Teixeira Arquitetura E Urbanismo
LEAD ARCHITECTS
Henry Teixeira
LOCATION
São Gonçalo Do Amarante, Brazil
CATEGORY
Public Space
Text description provided by architect.
HT Arquitetura e Urbanismo has been designing and building a wide variety of projects and skateparks over the last few years.
In this case, we have a very specific solution for the design of the central square of the "Vila do Chapéu" gated development, located on Taíba beach, 74 km from the city of Fortaleza, capital of the state of Ceará, Brazil.
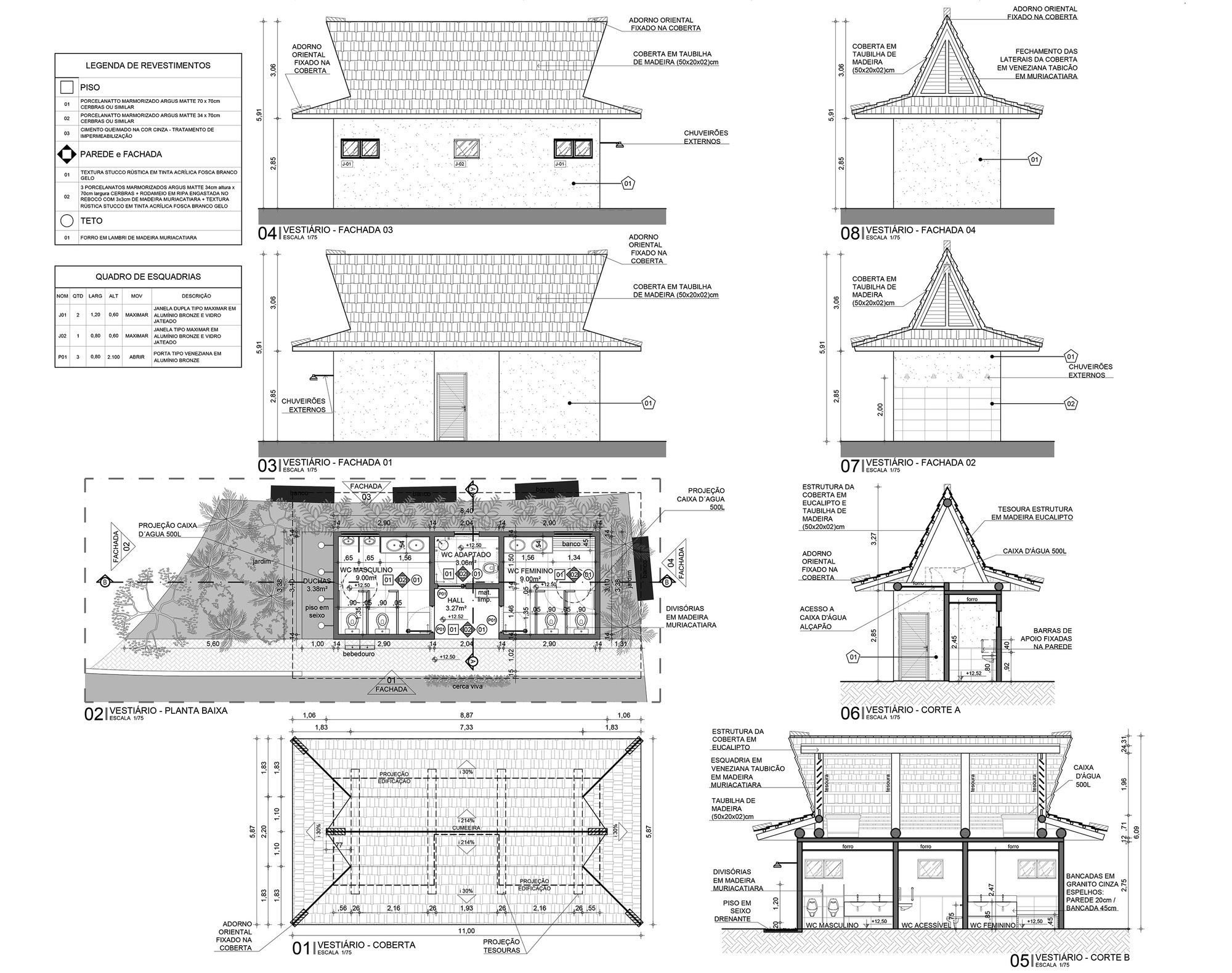
The space has 2 skateparks, 2 beach tennis courts, communal toilets, 1 coconut grove, 1 children's playground and a gym.
Morro do Chapéu is one of the beaches of Taíba, which is a tourist destination in the Brazilian state of Ceará.
It has 10 km of beautiful beaches, with a wide strip of sand, dunes and sandstone reefs, many cliffs, natural pools and is populated by a native population that exploits fishing and tourism.
With this in mind, the design solution was inspired by the exuberant nature that exists there and seeks to integrate with it.
The design solution focused on creating a meeting point for users to integrate with the space, as it is a famous surfing break.
In this way, there was an integration between skateboarding and surfing, where the 2 tracks are designed for "carver skateboarding", but without restricting the use of all sports such as bmx or rollerblading. .
In this way we have a small track, focused on learning, in the wave format and a large track for the more advanced user in the snake format
To complement the sports for the users, two beach tennis courts and a gym were designed, which were made with sand from the land itself, using a natural transition from the site, in rolled pebbles, to the concrete floors that dominate the general setting.
In the specific case of the gym, a wooden equipment solution was adopted, in this case for better performance against the sea air and to fit in with the natural style of the sand floor.
Designed in the shape of a surfboard, the overall design also includes play areas such as a leisure slope, a children's playground, as well as open walks and a coconut grove.
Together with the sports areas, these items complement the appropriation and use of the space by an entire family, given that the space is a tourist and leisure destination.





















