Trofa Town Hall
YEAR
2023
LOCATION
Trofa, Portugal
CATEGORY
Municipal Building
Text description provided by architect.
The rehabilitation and the extension of the former “Indústria Alimentar Trofense” buildings into the Trofa City Hall.
Trofa is the youngest municipality in Portugal and was the only one that did not have an institutional building.
For more than 25 years, the City Council occupied scattered spaces in the city, in a precarious situation.
The building site is in the south of the urban centre. An incomplete and old area of the city. occupied by an Industrial complex.
The plot covers 6,200.85 sqm. Is a strip measuring 28 by 200 meters parallel to the abandoned railway line.
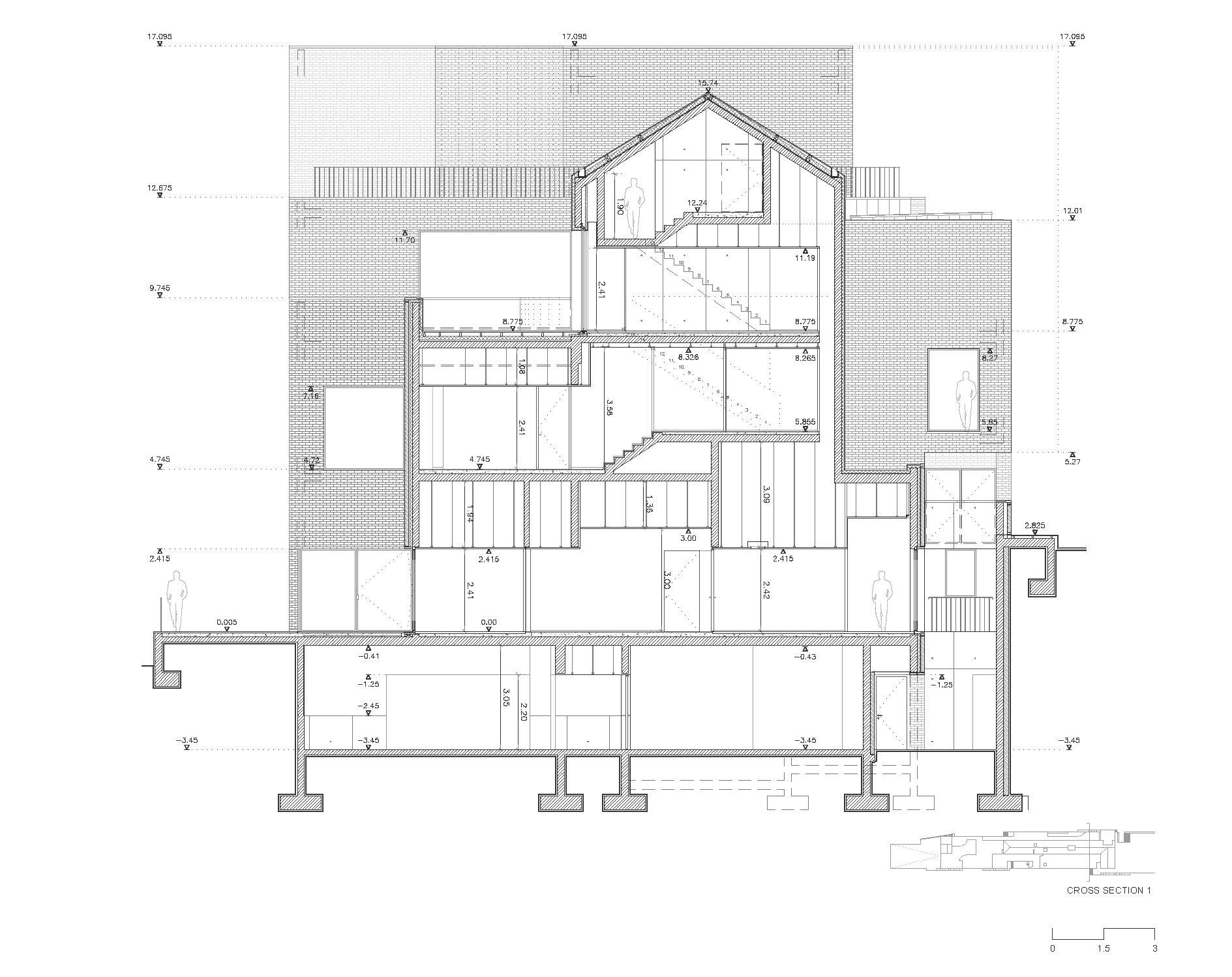
The reuse of the industrial complex required a considerable increase in area and an underground floor.
We decided to preserve just the seminal building. The new building proposal reduces itself to a series of 5 juxtaposed narrow parallelepipeds divided into 3 floors.
The first parallelepiped is used for the longitudinal circulation in the building. Two more blocks on each of the tops of the old building constitute the central mass of the City Hall, where all the municipal services are located.
The third parallelepiped attached to the west façade has lost its configuration to integrate the old building and to preserve its dialogue with the landscape.
It is a space, the public space, allowing visual contact between the different levels.
The fourth block, located on the south top, has the same role and the same free space. The fifth in the underground is for parking, technical services, and storage.
The result is a building with 6.700 sqm a footprint of 1.996 sqm and a maximum height of 17.14 m.
The building is a synthesis. The budget was limited. Public buildings are not properly maintained.
Maintenance is expensive and is not sustainable. The essential can resist the time. Each element is a structural entity, whose subtraction compromises the whole.
Materials and construction technologies were selected based on durability, energy efficiency, low maintenance requirements and constructive economy.
























































