Sainte-Croix Gymnasium
ARCHITECTS
Bsaar, Erbat Sa, Mue Atelier
WORK MANAGEMENT
Erbat
DESIGN + EXECUTION
Arnaud Schelstraete & Frédéric Garrigues (Atelier Mue) Et Benoît Schelstraete (Bsaar)
CIVIL ENGINEERING
Chabloz Et Partenaires
ELECTRICAL ENGINEERING
Louis Richard Ing. Conseils Sa
ACOUSTIC ENGINEERING
Ecoacoustique Sa
HEATING AND VENTILATION ENGINEERING
Efficience Thermique
FIRE ENGINEERING
Rgp Concept
AREA
1500 M²
YEAR
2021
PHOTOGRAPHS
Cyrille Lallement, Arnaud Schelstraete, Chaboz Et Partenaires Sa
LOCATION
Sainte-croix, Switzerland
CATEGORY
Gymnasium
Text description provided by architect.
The new Sainte-Croix gymnasium is set in a landscape-quality but constrained site, between a school building and a remarkable garden overlooking the mountains.
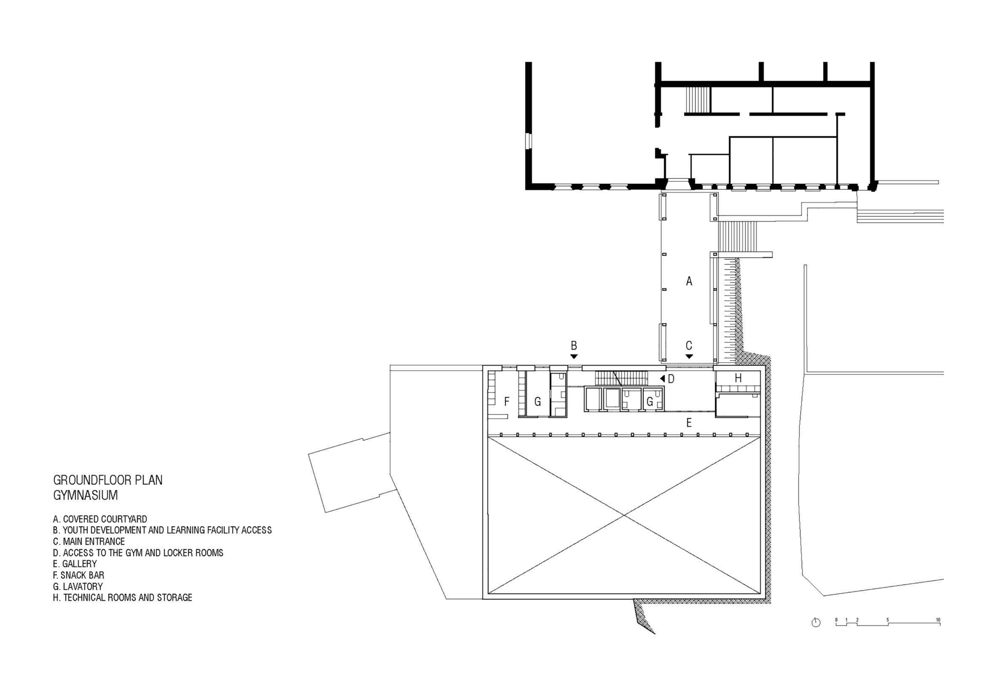
Thanks to building compacity and relevant construction detailing, the architects of the project proceeded to provide in a single place a sports hall and a youth development and learning facility, both for schoolchildren and local inhabitants.
In order to preserve the existing assets of the schoolyard and its adjoining garden, the project aims to blend in humbly with the surroundings.
Designed as a pavilion in the heart of the garden, the building takes advantage of the natural terrain slope to reduce the impact of its emerging volume.
In addition, the choice of wood material roots the project in the park, while a concrete pedestal follows the terrain slope as it reaches the public street downhill, turning into seating for walkers.
The materiality of the project also intends to highlight local wood resources, thanks to synergies between all those involved in the wood sector (forest owners, forest rangers, timber industry and carpenters).
The framework rationality as well as the vertical setting of the exterior cladding and its pre-greyed finish all vouch for a seek for efficiency regarding the performance of available tree species.
The large volume of the sports hall is spanned by trapezoidal underslung beams, while solid wooden slabs complete the structural system over the 6 m span housing additional premises and the youth development and learning facility.
The gymnasium, on the south side of the building, benefits from a triple orientation whose panoramic openings call for the scenery to enter the sports hall.
On the north side, a 6-metre-thick volume receives all the additional premises such as locker rooms and storage, as well as the youth development and learning facility on the upper floor.
Overhanging the massive volume of the sports hall, it benefits from natural daylight from the south and a view of the great landscape of the county.
































