
Meadows Primary School
ARCHITECTS
Project 12 Architecture
LEAD ARCHITECTS
Aimee Goodwin And Louis Gadd
GENERAL CONSTRUCTING
Alchemy Construct
LANDSCAPE ARCHITECTURE
Simon Ellis Landscape Architect
LEAD TEAM
Aimee Goodwin, Louis Gadd
PHOTOGRAPHS
Derek Swalwell
AREA
1270 M²
YEAR
2022
LOCATION
Australia
CATEGORY
Schools
Text description provided by architect.
Meadows Primary School is a proudly multi-cultural school in Broadmeadow, in Melbourne's northern suburbs.
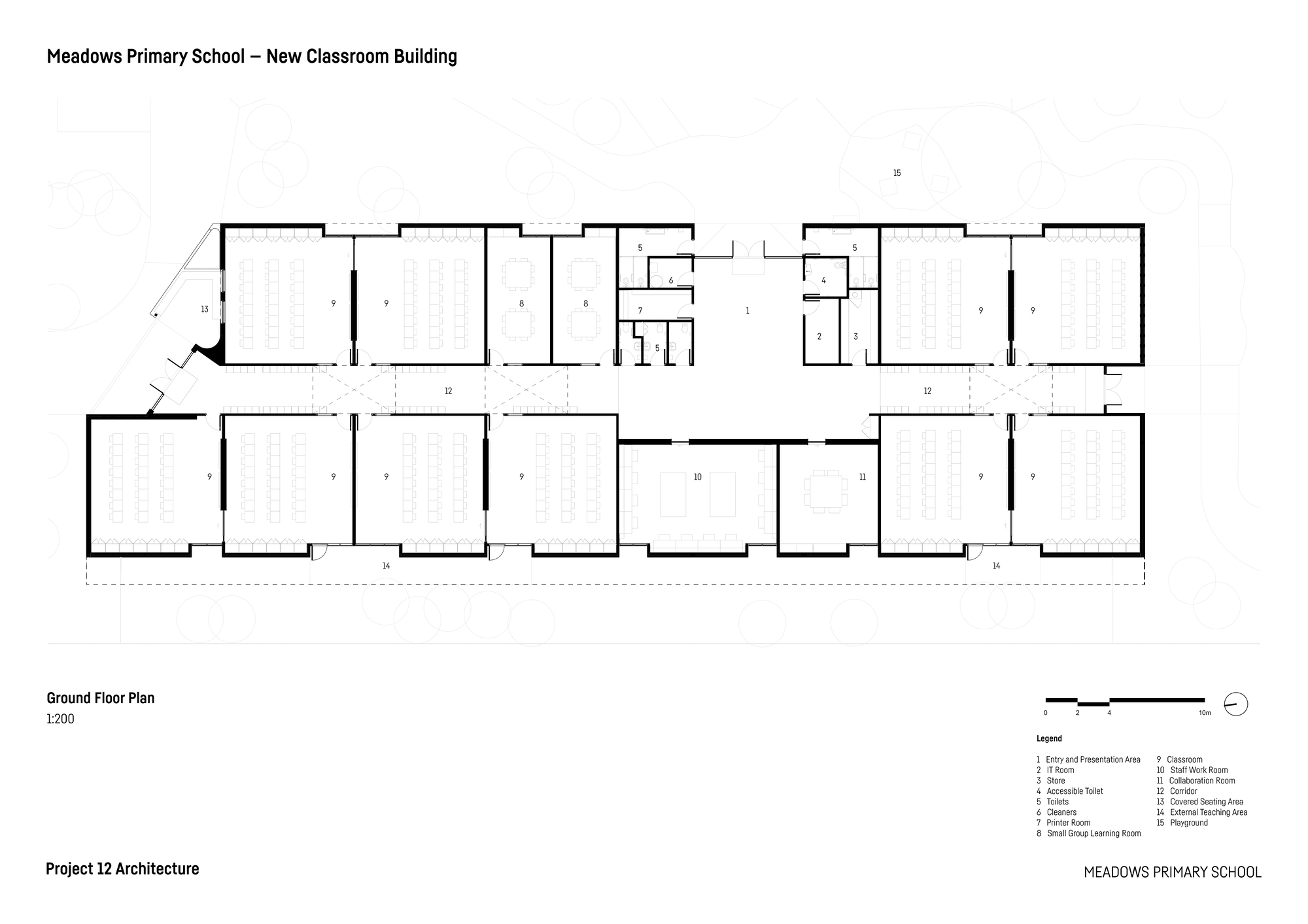
Project 12 was commissioned to create a new 10-classroom building for 200 additional students, that incorporates support spaces, consultation/wellbeing rooms, staff work areas, and student and staff amenities.
As part of the project, a range of learning spaces throughout the campus were also upgraded to offer separate classrooms, flexible teaching spaces, and consultation rooms to better meet the school's needs.
From day one, Project 12 worked closely with the school to understand the specific academic, social, and emotional requirements of its students and he broader school community to ensure the design and proposed works best support their needs.
Consideration was given to 71% of the student population recognized as having English as an Additional Language (EAL), students with refugee status (6%) and limited exposure to formalized schooling, and may have experienced traumatic events in their lives.
The design solution included rational, calm, secure learning spaces and way-finding features with sensitivity to acoustics, ample space for the display of visual learning aids, and the ability for classrooms to operate in discreet and collaborative learning modes.
Project 12 Architecture worked openly, collaboratively, and effectively with the School, VSBA, and consultant team throughout the project, delivering the New Classroom Building in less than six months.
The school has been occupying the New Classroom Building since April 2022 with an overwhelming sense of pride in the welcoming spaces for the school and the broader community.
The school has confirmed that the new teaching environments are providing calm and positive spaces which are already improving student outcomes, seeing students more engaged and more connected with their peers.
'At Meadows Primary School, Project 12 Architecture puts the needs of their client first and foremost – providing a rational and calm architecture that fosters student academic, social, and emotional requirements.
In doing so, they have created a simple and elegant outcome that puts the school's needs before design ego.
The well-crafted exteriors are balanced with a hard-working internal plan. The corridors quietly delight with playful use of color and natural light.
There is integrity in the approach throughout, and the result is highly commendable.'
















