
Yngsjö Retreat House
ARCHITECTS
Johan Sundberg Arkitektur
ASSOCIATE ARCHITECT
Staff An Rosvall
CHIEF ARCHITECT
Johan Sundberg
PHOTOGRAPHS
Markus Linderoth
YEAR
2023
LOCATION
Yngsjö, Sweden
CATEGORY
Houses
Text description provided by architect.
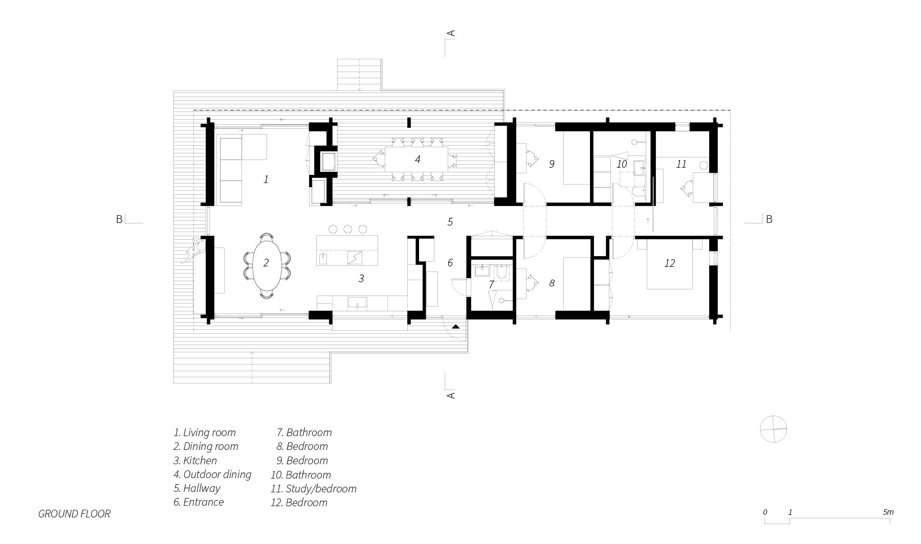
Nestled among the undulating pine-covered hills in Yngsjö, just by the shores of the Baltic Sea, stands a summer retreat designed for a family of four.
The landscape here embraces a lack of meticulously landscaped gardens, opting instead for the dominance of the natural forest setting, where small-scale structures blend seamlessly amidst the trees.
Comprising a singular volume-oriented in a north-south direction, the house features a recessed section in its central part, facing west and hosting a sheltered terrace basking in the evening sun.
The southern section, encompassing the entrance, kitchen, and communal areas, effortlessly connects to the ground with a fluid transition to the surrounding nature.
Meanwhile, the northern half, housing more private spaces, gracefully hovers above the terrain on slender pillars, establishing a direct connection with the treetops through expansive bedroom windows.
Clad in larch panels rhythmically interrupted by vertical pilasters, the house's facade exudes a harmonious aesthetic.
The floating structure's underside is concealed with triple-layered larch panels. Inside, the rooms are grounded by oak floors, trimmings, doors, and bespoke carpentry.
The interior ceiling and its overhanging sections boast a unified, slender-profile larch surface, which has a calming and sound-absorbing effect throughout the entirety of the house.



































