ARCHITECTS
Schwember García-Huidobro Arquitectos
LEAD ARCHITECTS
Fernando García-Huidobro, Álvaro Schwember
LIGHTING DESIGN
Fernando García-Huidobro / Schwember García-Huidobro Architects
STRUCTURAL DESIGN
Patricio Bertholet / Patricio Bertholet Engineering
PROJECT MANAGER
Fernando García-Huidobro / Schwember García-Huidobro Architects
PROGRAM / USE / FUNCTION OF THE BUILDING
Housing
INTERIOR DESIGN
Francisca Varela / FVM decoración
DESIGN TEAM
Fernando García-Huidobro, Álvaro Schwember, Facundo Forchino, Catalina Bórquez
YEAR
2022
LOCATION
Cunco, Chile
CATEGORY
Houses
This house is located on the shores of Lake Colico, in the rainy forests of southern Chile.
Here, long rainy winters and a brief, warm summer are experienced.
The house is situated on a steep lake shore, the southern shore, which is the ideal orientation for the southern hemisphere, as the sun and views coincide.
The land, in turn, has a 40% slope, and its soil consists of a thick layer of vegetation and alluvial fillings.
The two main requirements requested by the client were: 1) To design a house on stilts to separate it from the soil's humidity.
Given the soil's low capacity, this is achieved by default. 2) To avoid rainwater gutters to avoid maintenance and consider generous eaves that protect windows from rain.
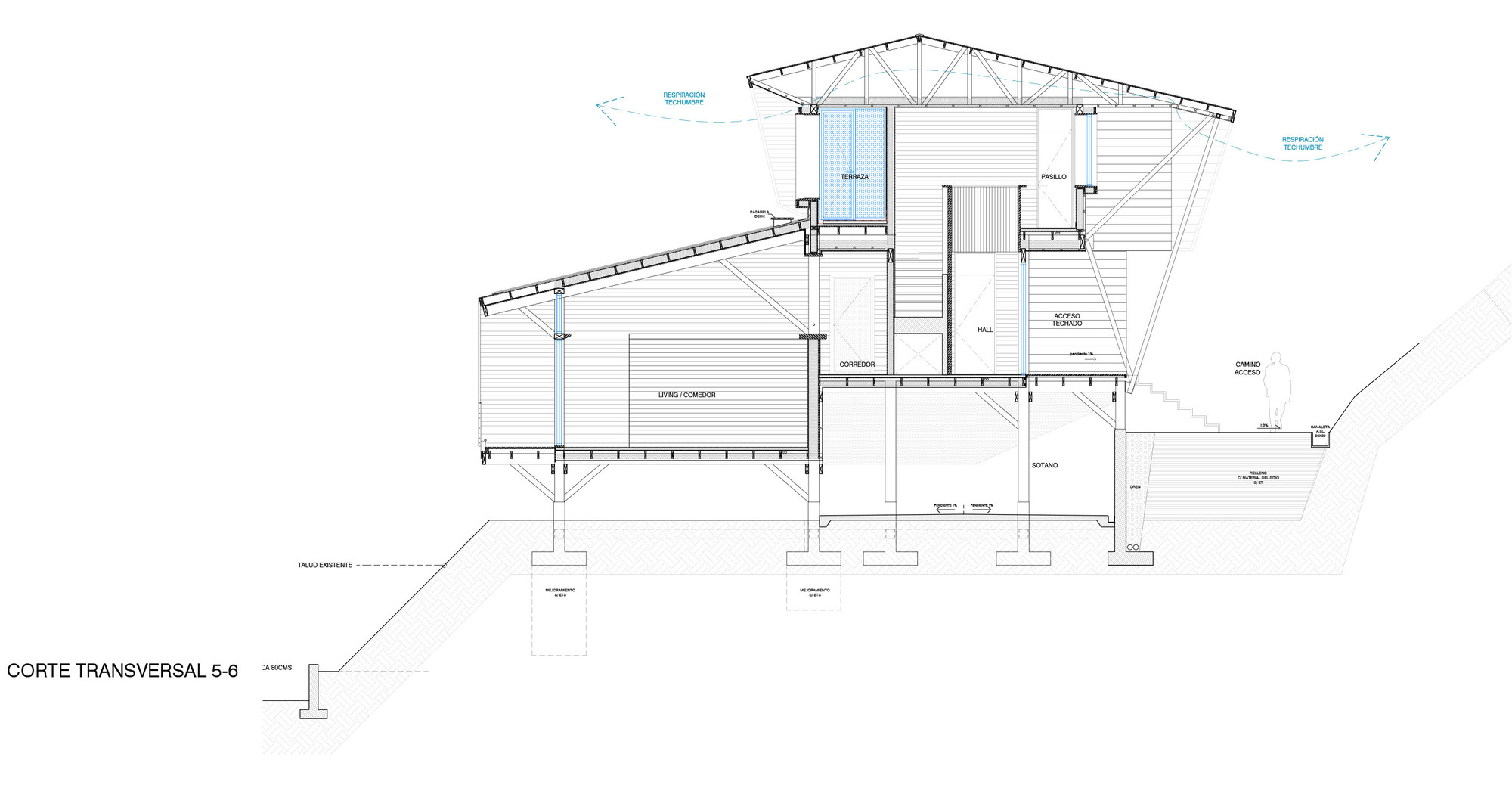
The low bearing capacity for foundation, the high slope of the land, and the requirement for a house on stilts led us to propose a four-level house.
Rather, four half-levels that integrate the life unfolding in the house in a fluid manner.
This integration, sometimes visual, sometimes pedestrian, seeks to build a continuum in family life. On the other hand, the four half-levels also help separate situations that seek distance.
These four levels are: The "earth" level, which is the space generated between the natural soil and the elevated floor of the house.
This level was given sufficient thickness to accommodate covered outdoor activities, such as a play area, covered parking, and storage rooms.
Then, half a floor above, the "fire" level is proposed, where the family gathering spaces are located, such as the living-dining room, game room, kitchen, and barbecue area.
Subsequently, half a floor above, the "middle" level is organized, which integrates the access hall, visit area, and service area. Part of this level is visually integrated into the collective level, overhanging it, and gaining views of the lake.
Finally, the upper level, the "dream" level, corresponds to the family bedrooms, which face north and the distant views.
Structurally, the house is founded on a linear retaining wall against the hill and on the stilts that penetrate 3 meters under the natural soil.
From level 0 upwards, the house is structured entirely in laminated wood pillar and beam frames.
At the façade level, the focus has been on decomposing the volume with different treatments in the façade cladding, so that an 11-meter-high house does not seem like a building.






































