ARCHITECTS
Mora Hughes Arquitectos
LEAD ARCHITECT
Eugenia Mora, Tom Hughes
PHOTOGRAPHS
Luis Abba
AREA
900 M²
YEAR
2021
LOCATION
Las Compuertas, Argentina
CATEGORY
Winery
Text description provided by architect.
The project is located in Las Compuertas, Mendoza, Argentina, on a long, narrow site with privileged views of the mountains.
In response to the client's desire to build a sustainable winery that would leave the smallest possible carbon footprint, the architects proposed a design based on recycled materials and disused elements, integrating them into a functional and aesthetically unique construction.
The initial task was to identify reusable elements that could be sourced locally and in sufficient quantities.
Reclaimed old rafters from a derelict adobe warehouse, discarded shipping containers, and oil drilling pipes, among other salvaged materials, were recovered and transformed into the skeleton and essence of the building.
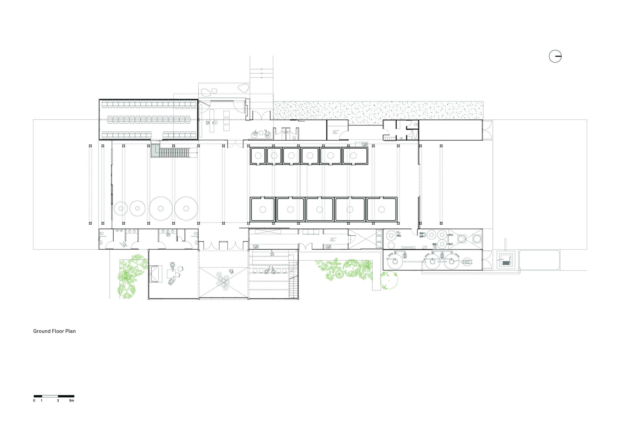
Oil borehole pipes formed the main columns of the structure, strategically arranged in a grid to support the roof of the central nave.
These columns were constructed by connecting four tubbing pipes with intermittent sections of larger diameter pipes at the center.
The old wooden rafters were then carefully dismantled and reinterpreted; with the pendentive now facing downward, they lend a modern and distinctive style to the roof.
Surrounding the central nave, the shipping containers were utilized as enclosures, creating functional areas such as the wine shop, tasting rooms, warehouses, and offices.
This modular design optimized space usage and upheld the principles of recycling throughout the project.
The project's development was a continuous challenge, as materials had to be sourced from "chacaritas" or rescued from demolitions.

As a result, the construction process was frequently interrupted, demanding on-the-go design adjustments and modifications to accommodate the available resources.
Each recovered element narrates its unique history:the wood repurposed from the mezzanine of the old winery now serves as a partition within the containers.
At the same time, aluminum panels from the former ceiling of the iconic Hotel Aconcagua have been reimagined as elegant cladding.
Additionally, remnants of solid wood from the winery's construction have been cut into uniform strips, creating a warm and cohesive finish that fully envelops the tasting room.
The final result is a winery that harmoniously combines the new and the old, with unique details that highlight the creative reuse of materials, responding efficiently to the functionality required by the winemaking process.
The sustainable and collaborative approach between the studio and the client not only reduced the environmental footprint but also gave the project an authentic and coherent character with its surroundings.

























