
The Monsoon Cabin
ARCHITECTS
Studio Archohm
PHOTOGRAPHS
Biju Gopal, Bizou
DESIGN
Mridu Sahai Patnaik, Partner
PRINCIPAL ARCHITECT
Sourabh Gupta
DETAIL DESIGN AND EXECUTION
Rajdatta Dewang, Design Search Studio, Jay Mali & Prashant Komnak, Diosity
AREA
1400 Ft²
LOCATION
Kanhe, India
YEAR
2024
CATEGORY
Houses
OFF THE GRID
Almost everyone is seduced by the idea of a refuge in a natural setting on a mountain by a river. Idyllic locations where accessibility is hard, a small cabin in the form of a cocooning sanctuary adapting to the landscape, a respite from the daily chaos of urban living.
Be it in a forest, a rural setting, on a mountain, or near water, being remote is of the essence. The monsoon cabin is built in a carefully chosen location, which not only keeps away from farming land and woodland but also has limited access to transportation. The challenge of constructing and living remotely, adds to the charm of this seemingly inaccessible space.
SITE
As the crow flies, 135 km from Mumbai and 54 km from Pune, the monsoon cabin sits on a virgin estate on the western ghats in the state of Maharashtra, India. Also known as the Sahyadris, older than the Himalayan range, the Ghats feature a unique biosphere and they influence the Indian monsoon weather pattern.
These gentle green hills and low mountains run for more than 1,600 kilometers along India's southwestern coast. The Ghats act as a key barrier, intercepting the rain-laden monsoon winds that sweep in from the south-west during late summer. Moderating the tropical climate of the region, and being situated on the windward side of the range, the site presents one of the best examples of the monsoon system on the planet.
Along the site, flows the holy Indrayani River originating from a village nearby in the Sahyadri mountains. Fed by rain, it flows east through Hindu pilgrimage centers making it one of the most sacred rivers of the state. Therefore the orographic monsoon rain and the river, form the primary design consideration of the cabin.
DESIGN ELEMENTS
Rain is an incredible sensory experience. It's relaxing to watch and hear raindrops fall in seemingly random patterns. The cabin is built around it, to enjoy rain and to protect from it, all in its compact 140sqm of space.
Greens all around, in the hills and the ground form the visual melange of this object in space. The cabin is a modest single-storeyed structure featuring a stacked A-frame box on top, oriented towards the riverview of the site. It is conscious of its footprint, building only what is necessary on this untouched terrain.
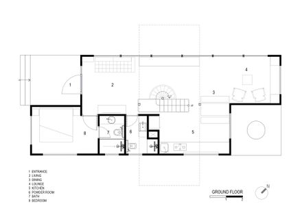
The ground floor features an open kitchen and living room with windows that frame panoramic views of the terrain. A guest room is tucked away at the entrance corner to afford a certain degree of privacy.
The staircase in the middle anchors the living space, with a folded wooden staircase on one side acting like a mini seating and ascending into a half spiral metal stairway to access the master suite above.
The Living room features fun furniture that adds a smile and lends a unique experience of viewing the scenery or reading a book. The kitchen is a single-wall cantilevered feature with basic amenities curated into a single slab.
As one makes its way to the upper floor, a unique scale unfolds. A single-bedroom suite with a bed and bath that seamlessly opens up to alternate views of the meandering river.
Skylights dot the sleeping space to not only bring sunlight into the interior but also allow a feast of stargazing at dusk. Minimal and restrained, the space is almost ascetic in its aesthetic and is designed as an intimate private space.
All in all, the cabin is designed around moments, choreographed, and scenic with the landscape outside. One can sit by oneself and enjoy the rain or can sit together and watch the rain. One can lounge, sleep, cook, eat, bathe, and be one with nature. The cabin affords all sensory experiences deprived in today's modern urban life.
MATERIALS
The cabin's materiality holds functionality and maintenance at the core. The structure is made of steel with metal sheets cladding the insulated cement walls, for high durability against the challenging weather conditions of rain and winds.
The interiors are fluidly blended in with the architectural ensemble. The metal sheet continues on the inside as a weathered choice for a rain-prone site.
Part industrial, part rustic, the metal is in sharp contrast with the greens outside yet complemented by the neutrality of the matt black floor and light wooden ceilings and in-built furniture on the inside, which lift the mood of the space.
During the day, no artificial light is needed due to the reflective interior surfaces. During nighttime, mindful lighting is uplifted by the mirrored metal.
WHY DO CREATIVES BUILD CABINS?
Going off the grid is seemingly higher for creative professionals - designers, architects, photographers, filmmakers, and artists. Creative people have an urge to "get away" to get inspired.
The architecture of such spaces is all about the outside - the landscape where they are situated. Be it the seaside jewels of Villa E1027 designed by Eileen Gray or the modest wooden cabana designed by Le Corbusier, in South France.
No matter the scale, one can make meaning of space. And in this case, even a cabin could become a world heritage site.
DREAM BIG, BUILD SMALL
In 2022, on an annual architecture tour to Scandinavia, I saw a 'tiny' house read summer cabin - designed by BIG Architects (ironic) x LiveKlien at the Utzon Architecture Centre in Aalborg. The key takeaway was - "Dream big, Build Small".
In an Indian context, this is especially true for building in remote locations - where people invest in building huge villas and farmhouses to monetize the idea of a retreat, if we continue to build the way we do, there will be no sanctuary left to get away to. Why must we build more than necessary?















