Layered House
ARCHITECTS
Smxl Architects
LEAD ARCHITECT
Sangmin Lee
MANUFACTURERS
Dunn Edwards, Guzzini, Kohler, Marazzi, Vintage Wooden Maru, Wonil Windows
ELECTROMECHANICAL ENGINEERING
Senc
STRUCTURAL ENGINEERS
Archfeel Structure Engineering
CONSTRUCTION
Seono Construction
INTERIOR DESIGNERS
Ohio Company
STAFF
Jeongin Kim
LOCATION
Seodaemun-gu, South Korea
CATEGORY
Houses
Text description provided by architect.
Located at the border between Yeonhui-dong in Seodaemun-gu and Namgajwa-dong, the Layered House sits along a relatively quiet and peaceful main road.
The building's scale was determined by the widening of the road at a dead-end and the setback requirements due to sunlight restrictions from the north.
The client, known for their distinctive style and strong sense of individuality, envisioned a space where the light shifts throughout the day from morning to evening, filling the house and allowing family members to sense each other's presence from any corner.
Thus, the design concept focused on blurring the boundaries of spaces, enabling flexible use of areas that can be adjusted in size depending on purpose and function.
Instead of strictly defining areas as a 'living room' or 'hallway,' the intention was to create a collective space where living areas and passageways are subtly differentiated, forming a seamless and interconnected home.
INTENDED LIGHT, UNINTENDED LIGHT
The client wished to experience the passage of time in sync with the outside world through the constantly shifting movements of light and shadow.
To achieve this, the south-facing facade features a series of identical windows, maximizing the amount of intentional light entering the house.
Meanwhile, the side windows were arranged irregularly, allowing unintentional light to scatter throughout the space.
The design aimed not to stand out alone in the everyday neighborhood streetscape, but to blend naturally with the surrounding urban scenery.
LOOSE BOUNDARIES AND FREE FLOW
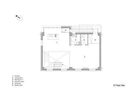
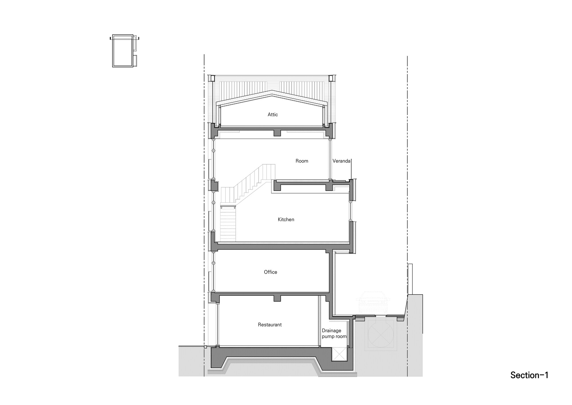
The house is composed of three floors, a fourth floor, and an attic, with an interior that avoids strict physical divisions, instead embracing spaces with loose boundaries.
These gentle boundaries make the space flexible, allowing it to flow seamlessly as one open area. From the entrance to the attic, the circulation unfolds like a leisurely stroll, and the substantial depth of the interior creates new perspectives through the solid staircase.
The wooden staircase, delicate like a sculpture, carries tranquil light down into the depths of the house, filling every corner with a soft glow.
Additionally, the repeated play of light through the windows, the furniture that defines spatial boundaries, and the carefully placed decorative items together create countless layers. In the summer, the sounds and shadows of plane tree leaves outside the window will further enrich this space.





































