
Training Center Residence and Workshops for Apprentices
Training Center Residence and Workshops for Apprentices
Atelier Tequi Architects
MANUFACTURERS
Keim, Knauf, Millet, Obersurfaces, Piveteau Bois
ENVIRONMENTAL DESIGN
Biotope
ACOUSTICS
Méta Atelier
SIGNAGE
Orlic Cochet
PROJECT DIRECTOR ARCHITECT
Louis Téqui - Atelier Téqui Architectes
LANDSCAPE
Freddy Charrier
PHOTOGRAPHS
Florent Michel – 11h45
AREA
10926 M²
YEAR
2024
LOCATION
Bordeaux, France
CATEGORY
Workshop, Higher Education
Text description provided by architect.
The new Maison des Compagnons du Devoir et du Tour de France is located in the changing Jallère district to the north of the city of Bordeaux, in a context of clearings and wooded areas.
The site was occupied by administrative offices for the Assedic du Sud-Ouest funds, built in 1978 by the architect Raymond Mothe, designer of the Jacques Thibaud Conservatory and the Bordeaux airport terminal.
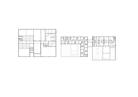
THE PROJECT: THREE VOLUMES, TWO BUILDINGS
The central building is preserved and restructured to accommodate the reception and administration center, composed of offices and coworking spaces.
A central patio is created, which contributes to the bringing of light into the heart of the building. Some of the rooms of the accommodation center are positioned on the two upper floors.
The new extension replaces the southern part, and includes on the ground floor the common living spaces (cafeteria, kitchen, dining room) and the training workshops for the food, bakery and pastry trades.
The rest of the rooms are located on the four upper floors, connected to the existing building by glass walkways above the hall.
The new workshop building is located at the north-east corner of the plot, in order to form a built front along Avenue de la Jallère and to make its access more independent.
It consists of a conference room and double-height building trades training workshops on the ground floor, as well as classrooms on the mezzanine.
The roof is treated in the form of sheds, a reference to the image of the factory of the industrial era. The glass roofs provide abundant, zenithal light, allowing optimal and comfortable working conditions.
The landscaping of the two hectares of the site allows the creation of vegetable gardens, a city stadium, a wooded park, as well as wooded walks leading to the entrance square.
VALORIZING WHAT ALREADY EXISTS
The intervention on this site poses as a prerequisite the fabrication of a project with the "already-there", by reusing as much as possible the existing structures, while establishing continuity with the new built volumes.
Thus, the envelope of the preserved building is composed of large prefabricated concrete panels, drawing a systematic frame that is highlighted by the fineness of the concrete sections.
The filling is therefore removed, and replaced by an alternation of wooden panels, made up of battens on the visible side and wooden joinery of the same dimension.
THE PRESENCE OF WOOD
The facades of the new building extension are built using the timber frame wall technique, covered with cladding with vertical battens.
This frame made of solid wood pieces echoes the concrete frame of the existing building.
The same materials are used on the facade of the new workshop building, further qualifying this volume dedicated to manual work and apprenticeship.
The vertical slatted wood cladding is used on the upper part of the volume, blending harmoniously into the surrounding vegetation, while the concrete base makes it possible to standardize all the volumes of the project.
The wood warms the light color of the concrete and matches the very green environment of the site.

















































