ARCHITECTS
Biome Environmental Solutions
LEAD ARCHITECTS
Sharath Nayak, Ravi Umraniya
TECHNICAL TEAM
Mahendar.r
ENGINEERING & CONSULTING > STRUCTURAL
Pramod Rai
GENERAL CONSTRUCTING
Narayan M.c
PHOTOGRAPHS
Ravi Umraniya
AREA
3859 Ft²
YEAR
2022
LOCATION
Naladi, India
CATEGORY
Lodging
Text description provided by architect.
The site is located in a large coffee estate in Naladi village, Coorg district in Karnataka. The building is a part of a larger wilderness collective development project.
When the present owners took over this estate, parts of the estate had been taken over by nature. The site of the bungalow was discovered within this wilderness at the ruins of an old staff quarters.
The Blyton bungalow is a 6-bedroom shared home that is used by members of the collective on a time-share basis. The idea of a shared home was to reduce the amount of construction on a site that is ecologically sensitive.
Each member building their own home would have led to changes in the topography, hydrology, and ecology of the place, which did not seem justified for a home that is used for a few days a year.
The brief also included shared living spaces and a pantry for warming food and preparing short eats.
The aspiration from the developers was to develop the layout in the manner of the local homesteads, which starts with the construction of a small home, and other buildings being added around as the family and its needs grow, eventually forming a cluster of buildings.
This arrangement afforded that we could allow independent access to each of the bedrooms while maintaining proximity to the common living spaces.
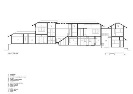
The main house is a courtyard home with two bedrooms and the living and dining spaces arranged around the courtyard. A skylit, windowless staircase block separates the main house from the service block which contains the pantry, store, and caretaker's quarters.
This block has independent external access. The staircase leads to two rooms, one a suite on top of the living-dining and the other to a bedroom with a mezzanine space, which is located above the kitchen-staff room.
The last two bedrooms are arranged as an outhouse with two floors, separated from the main block by an external courtyard.
The choice of materials and techniques was one driven by ecological concerns and pragmatism. This began by considering local workers and skills, leading to the choice of laterite as a walling material.
The roof was done using the services of Master Plannery, an agency that specializes in ferrocement work and has a production setup a couple of hours away from the site.
The interior decor is simple and spartan and the place is furnished just enough to allow for basic comforts during a 2-3 day stay.
The building generates part of its power needs from solar panels, and hot water is generated using a Gujrat Boiler, that uses abundantly available biomass as fuel.
















